オーパスホームズ千駄木(旧:アパートメンツ千駄木)
♥お気に入りオーパスホームズ千駄木(旧:アパートメンツ千駄木)
♥お気に入り










オーパスホームズ千駄木 6階
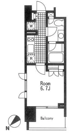
賃料 要問合せ(※) 管理費 敷金 2ヶ月 礼金 0ヶ月 間取り 1R 面積 24.53㎡ 階数 6階 状態 要問合せ(※) 入居 即入居可 更新料 新賃料の1ヶ月 諸費用 取引態様 媒介 設備 オートロック、駐輪場有、宅配BOX、コンビニ近、BS・CS、光ファイバー、インターネット対応、専用ゴミ置場、防犯カメラ、TVモニター付インターホン、東京大学自転車圏、礼金なし、エレベーター、千駄木小学校エリア、10階以上、眺望良好、二面採光、日当たり良好、コンロ二口以上、ガスキッチン、システムキッチン、エアコン、フローリング、独立洗面台、追い焚き機能、浴室乾燥、バストイレ別、室内洗濯機置場、収納、角部屋、フリーレント付き、法人契約相談可 物件概要
物件名 オーパスホームズ千駄木 所在地 東京都文京区千駄木3丁目48-6 最寄駅 JR山手線 西日暮里駅 徒歩5分
東京メトロ千代田線 千駄木駅 徒歩6分
JR京浜東北線 西日暮里駅 徒歩5分
学区 千駄木小学校 構造 RC 階数 地上12階建て 築年月 2008年03月 駐車場 備考 【アパートメンツ千駄木】の賃貸マンション情報♪ 詳細閲覧ありがとうございます。最新の空室の確認、内覧のご予約はメール・電話にてお問い合わせください。 文京区の賃貸マンション・賃貸アパートはベステックスにおまかせください! 問合番号 3556 更新日 2015/12/23 このお部屋について
使いやすい1Rタイプで、専有面積が25.05.㎡のお部屋です♪
居室は約6.7帖で、梁のないシンプルな間取りになっています!
クローゼットがあり、荷物に邪魔をされずお部屋を広くお使い頂けるので、
お好きな家具の配置を楽しむことができます!
人気の角部屋で2面採光になっているので通気性も抜群で湿気がこもるのを防ぎます!
~気になる水周り~
浴室とトイレの独立設計でゆとりを持ってお風呂トイレに入ることができます。
トイレには独立洗面台も備え付けられているので朝の身だしなみチェックやお化粧と様々なシーンで活躍する設備です♪
室内洗濯機置き場が付いているので洗濯機と洗濯物を雨ざらしにすることもありません。
キッチンには2口ガスコンロが備え付けられたシステムキッチンを採用しているので、
料理が好きな人やこれから料理に挑戦したい人にオススメです!
もちろんオートロック完備で入居者を守ります!
宅配ボックスも付いていますので、荷物の受け取りも心配ありません♪
賃貸マンション【アパートメンツ千駄木】の1Rタイプのお部屋を
是非ご覧ください!
室内写真は同物件別部屋のものとなります。
※フリーレント1ヶ月キャンペーン中!
(管理費は適用外)間取図 所在階 間取り 面積 賃料 管理費 敷金 礼金 
2階 1LDK 37.44㎡ 198,000円 12,000円 0ヶ月 0ヶ月 所在階2階
面積37.44㎡
間取り1LDK賃料 198,000円管理費12,000円
敷金0ヶ月
礼金0ヶ月♥
お問い合わせ
♥お気に入り お問い合わせ 
3階 1LDK 37.44㎡ 200,000円 12,000円 0ヶ月 0ヶ月 所在階3階
面積37.44㎡
間取り1LDK賃料 200,000円管理費12,000円
敷金0ヶ月
礼金0ヶ月♥
お問い合わせ
♥お気に入り お問い合わせ 
4階 1K 24.51㎡ 140,000円 10,000円 0ヶ月 0ヶ月 所在階4階
面積24.51㎡
間取り1K賃料 140,000円管理費10,000円
敷金0ヶ月
礼金0ヶ月♥
お問い合わせ
♥お気に入り お問い合わせ 
5階 1R 24.63㎡ 142,000円 10,000円 0ヶ月 0ヶ月 所在階5階
面積24.63㎡
間取り1R賃料 142,000円管理費10,000円
敷金0ヶ月
礼金0ヶ月♥
お問い合わせ
♥お気に入り お問い合わせ 
6階 1R 32.86㎡ 190,000円 10,000円 0ヶ月 0ヶ月 所在階6階
面積32.86㎡
間取り1R賃料 190,000円管理費10,000円
敷金0ヶ月
礼金0ヶ月♥
お問い合わせ
♥お気に入り お問い合わせ 
9階 1LDK 42.35㎡ 221,000円 12,000円 0ヶ月 0ヶ月 所在階9階
面積42.35㎡
間取り1LDK賃料 221,000円管理費12,000円
敷金0ヶ月
礼金0ヶ月♥
お問い合わせ
♥お気に入り お問い合わせ 
10階 1K 24.92㎡ 140,000円 10,000円 0ヶ月 0ヶ月 所在階10階
面積24.92㎡
間取り1K賃料 140,000円管理費10,000円
敷金0ヶ月
礼金0ヶ月♥
お問い合わせ
♥お気に入り お問い合わせ 
10階 1K 24.51㎡ 145,000円 10,000円 0ヶ月 0ヶ月 所在階10階
面積24.51㎡
間取り1K賃料 145,000円管理費10,000円
敷金0ヶ月
礼金0ヶ月♥
お問い合わせ
♥お気に入り お問い合わせ 掲載情報について
※随時更新を心がけておりますが、掲載している物件が万が一成約している場合もございますので予めご了承下さいませ。
※駐車場・駐輪場・バイク置場の空き状況についてはお問い合わせ下さい。
※ペット飼育やSOHO利用・楽器使用の可否に関しては、建物の管理規約で可能になっていても、お部屋の所有者様によって禁止の場合もございますので御注意下さい。
詳細はメールやお電話にてスタッフまでご相談下さい。オーパスホームズ千駄木の周辺地図
似た条件の物件
最近見た物件


















