ガーラ文京本駒込 ~分譲賃貸マンション~
♥お気に入りガーラ文京本駒込 ~分譲賃貸マンション~
♥お気に入り




ガーラ文京本駒込 12階
賃料 要問合せ(※) 管理費 敷金 1ヶ月 礼金 1.5ヶ月 間取り 1LDK 面積 42.50㎡ 階数 12階 状態 要問合せ(※) 入居 1月中旬 更新料 新賃料の1ヵ月分 諸費用 取引態様 媒介 設備 オートロック、駐輪場有、宅配BOX、BS・CS、CATV、光ファイバー、インターネット対応、専用ゴミ置場、TVモニター付インターホン、分譲賃貸、東京大学自転車圏、エレベーター、昭和小学校エリア、10階以上、最上階、眺望良好、二面採光、コンロ二口以上、ガスキッチン、システムキッチン、エアコン、フローリング、独立洗面台、追い焚き機能、浴室乾燥、ウォシュレット、バストイレ別、室内洗濯機置場、床暖房、収納、角部屋、2人入居可、保証会社利用、法人契約相談可 物件概要
物件名 ガーラ文京本駒込 所在地 東京都文京区本駒込5丁目41-7 最寄駅 JR山手線 駒込駅 徒歩9分
都営三田線 千石駅 徒歩13分
東京メトロ南北線 本駒込駅 徒歩14分
学区 昭和小学校 構造 SRC 階数 地上13階建て 築年月 2009年10月 駐車場 備考 ガーラ文京本駒込の賃貸マンション情報です♪ ※写真は同マンション別タイプのお部屋のものです。 詳細閲覧ありがとうございます。最新の空室の確認、内覧のご予約はメール・電話にてお問い合わせください。 文京区の賃貸マンション・賃貸アパートはベステックスにおまかせください! 問合番号 31697 更新日 2015/12/06 このお部屋について
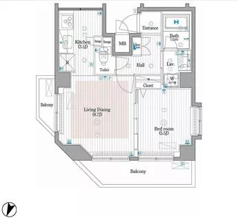
12階部分、42.5平米1LDKタイプのお部屋のご紹介です!
高層階のため、眺望良好♪
居室は約5.5帖あり、フローリング仕様のためクリーニングが簡単です。少し広めに取られており、初めての1人暮らしや女性にもオススメ出来る内容です。
クローゼットは横幅があるものを設置済み!
2面採光で明るく、通気性に優れた室内です。
リビングは約8.7帖となっています。
こちらも2面採光のお部屋になっています。
キッチンには3口のガスコンロを完備!料理好きの方にオススメです!
冷蔵庫置き場もキッチンスペースあるので室内を広く使うことが可能です。
~気になる水回り~
人気のバストイレ別で、脱衣所が付いているので廊下で脱衣するような必要はありません。
脱衣所には独立洗面台も完備していますので、朝の身だしなみチェックやお化粧など様々なことに利用可能♪
また、室内洗濯機置き場なので、寒い日に洗濯物を・・・ということもありません♪
浴室に付いている浴室換気乾燥機は悪天候時も乾燥が容易になり、常に浴室を清潔な状態に保ってくれる便りになる味方です。
追炊き機能もありますので、長風呂するひとや、複数人が入れ替わりで入る場合は力強い味方です♪
相手が見えるTVモニター付きインターフォンに加えオートロックで安心セキュリティ♪
お気軽にお問い合わせください!!
※室内写真は同物件別部屋のものになります。掲載情報について
※随時更新を心がけておりますが、掲載している物件が万が一成約している場合もございますので予めご了承下さいませ。
※駐車場・駐輪場・バイク置場の空き状況についてはお問い合わせ下さい。
※ペット飼育やSOHO利用・楽器使用の可否に関しては、建物の管理規約で可能になっていても、お部屋の所有者様によって禁止の場合もございますので御注意下さい。
詳細はメールやお電話にてスタッフまでご相談下さい。ガーラ文京本駒込の周辺地図
似た条件の物件
最近見た物件









