グランドール文京 ~茗荷谷駅徒歩2分の好立地~
♥お気に入りグランドール文京 ~茗荷谷駅徒歩2分の好立地~
♥お気に入り
グランドール文京 6階
| 賃料 | 要問合せ(※) | 管理費 | |
|---|---|---|---|
| 敷金 | 1ヶ月 | 礼金 | 2ヶ月 |
| 間取り | 1LDK | 面積 | 46.30㎡ |
| 階数 | 6階 | 状態 | 要問合せ(※) |
| 入居 | 11月中旬 | 更新料 | 旧賃料の1ヶ月 |
| 諸費用 | 取引態様 | 媒介 | |
| 設備 | 新築、オートロック、バイク置場有、駐車場有、駐輪場有、コンビニ近、光ファイバー、インターネット対応、専用ゴミ置場、防犯カメラ、東京大学自転車圏、エレベーター、窪町小学校エリア、最上階、二面採光、日当たり良好、コンロ二口以上、ガスキッチン、システムキッチン、ウォークインクローゼット、エアコン、フローリング、独立洗面台、追い焚き機能、浴室乾燥、ウォシュレット、24時間換気システム、バストイレ別、収納、角部屋、礼金1以下、法人契約相談可 | ||
物件概要
| 物件名 | グランドール文京 | ||
|---|---|---|---|
| 所在地 | 東京都文京区大塚3-2-1 | ||
| 最寄駅 |
東京メトロ丸ノ内線 茗荷谷駅 徒歩2分 東京メトロ丸ノ内線 新大塚駅 徒歩10分 東京メトロ有楽町線 護国寺駅 徒歩15分 |
||
| 学区 | 窪町小学校 | 構造 | RC |
| 階数 | 地上14階建て | 築年月 | 2015年11月 |
| 駐車場 | |||
| 備考 | 詳細閲覧ありがとうございます。最新の空室の確認、内覧のご予約はメール・電話にてお問い合わせください。 文京区の賃貸マンション・賃貸アパートはベステックスにおまかせください! | ||
| 問合番号 | 603 | ||
| 更新日 | 2015/11/12 | ||
このお部屋について
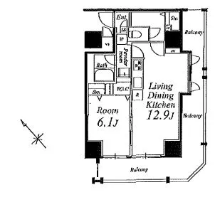
新築【グランドール文京】の6階、1LDKタイプのお部屋です。
広々ゆったりお使い頂ける間取り!専有面積は46.30㎡と広々としています。
居室は約6.1帖でウォークインクローゼットを完備しているので、荷物が多い人でも安心です♪
バルコニーにも面しているので明るいお部屋になっています!
LDKは約12.9帖とゆったりお過ごしいただける広さになっております。
こちらも2面採光になっています!
L字のバルコニーが利用可能で、使い方によってはオシャレな窓際を演出することが可能です!
~気になる水周り~
キッチンには3口ガスコンロを備え付けられたシステムキッチンになっているので、
効率的に調理が可能♪
バス・トイレが独立しており、それぞれゆったり使うことが可能!
浴室には、循環型の追い焚き機能や浴室乾燥機などの機能を完備♪
浴室の前には洗面室がありますので、朝の身だしなみチェックやお化粧など様々な場面で
役に立つ人気設備です♪
浴室前なので脱衣所としても利用可能です。
光ファイバーを利用した高速インターネットもご利用いただくことができます。
ぜひ一度ご覧ください!
広々ゆったりお使い頂ける間取り!専有面積は46.30㎡と広々としています。
居室は約6.1帖でウォークインクローゼットを完備しているので、荷物が多い人でも安心です♪
バルコニーにも面しているので明るいお部屋になっています!
LDKは約12.9帖とゆったりお過ごしいただける広さになっております。
こちらも2面採光になっています!
L字のバルコニーが利用可能で、使い方によってはオシャレな窓際を演出することが可能です!
~気になる水周り~
キッチンには3口ガスコンロを備え付けられたシステムキッチンになっているので、
効率的に調理が可能♪
バス・トイレが独立しており、それぞれゆったり使うことが可能!
浴室には、循環型の追い焚き機能や浴室乾燥機などの機能を完備♪
浴室の前には洗面室がありますので、朝の身だしなみチェックやお化粧など様々な場面で
役に立つ人気設備です♪
浴室前なので脱衣所としても利用可能です。
光ファイバーを利用した高速インターネットもご利用いただくことができます。
ぜひ一度ご覧ください!
掲載情報について
※随時更新を心がけておりますが、掲載している物件が万が一成約している場合もございますので予めご了承下さいませ。
※駐車場・駐輪場・バイク置場の空き状況についてはお問い合わせ下さい。
※ペット飼育やSOHO利用・楽器使用の可否に関しては、建物の管理規約で可能になっていても、お部屋の所有者様によって禁止の場合もございますので御注意下さい。
詳細はメールやお電話にてスタッフまでご相談下さい。
※駐車場・駐輪場・バイク置場の空き状況についてはお問い合わせ下さい。
※ペット飼育やSOHO利用・楽器使用の可否に関しては、建物の管理規約で可能になっていても、お部屋の所有者様によって禁止の場合もございますので御注意下さい。
詳細はメールやお電話にてスタッフまでご相談下さい。





