レジディア文京音羽Ⅱ ~高級賃貸マンション~
♥お気に入りレジディア文京音羽Ⅱ ~高級賃貸マンション~
♥お気に入り










レジディア文京音羽Ⅱ 4階
賃料 要問合せ(※) 管理費 敷金 2ヶ月 保証会社利用時敷金1ヶ月 礼金 1ヶ月 間取り 1K 面積 22.67㎡ 階数 4階 状態 要問合せ(※) 入居 要相談 更新料 新賃料の1ヶ月分 諸費用 取引態様 媒介 設備 オートロック、駐車場有、駐輪場有、宅配BOX、コンビニ近、BS・CS、CATV、光ファイバー、インターネット対応、専用ゴミ置場、防犯カメラ、TVモニター付インターホン、エレベーター、青柳小学校エリア、2階以上、眺望良好、コンロ二口以上、ガスキッチン、システムキッチン、エアコン、フローリング、独立洗面台、追い焚き機能、浴室乾燥、ウォシュレット、バストイレ別、室内洗濯機置場、収納、礼金1以下、法人契約相談可 物件概要
物件名 レジディア文京音羽Ⅱ 所在地 東京都文京区音羽2丁目11-5 最寄駅 東京メトロ有楽町線 護国寺駅 徒歩1分
東京メトロ丸ノ内線 茗荷谷駅 徒歩13分
学区 青柳小学校 構造 RC 階数 地上14階建て 築年月 2008年03月 駐車場 無 備考 詳細閲覧ありがとう御座います。内見ご希望の方はメール・電話どちらでも結構ですので御連絡頂ければいつでも対応させて頂きます。■写真は別室タイプとなります。 詳細閲覧ありがとうございます。最新の空室の確認、内覧のご予約はメール・電話にてお問い合わせください。 文京区の賃貸マンション・賃貸アパートはベステックスにおまかせください! 問合番号 40555 更新日 2017/11/29 このお部屋について
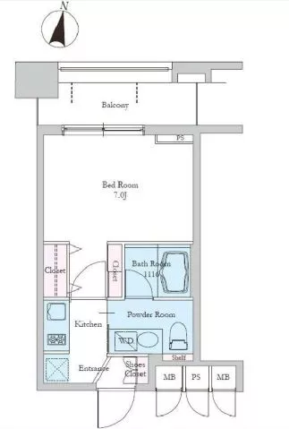
4階部分、22.67㎡の1Kタイプのお部屋のご紹介です!
贅沢なお1人暮らしにぴったりな広めのお部屋となっております!
目の前が抜けていて明るい室内。
■約7帖のお部屋はフローリング仕様で梁が無く、非常に使いやすい室内!家具が大きめの方でも安心♪
収納スペースは居室にクローゼットを完備!
キッチンは2口ガスシステムキッチンで、縦に並んだスタイリッシュなタイプとなっております。
調理スペースやシンクは大きめのものを完備!収納スペースも多めに取られているので食器類が多いかたでも安心。
■バス・トイレは別仕様で浴室換気乾燥機・追い焚き機能付き♪浴室は1人暮らし用では広めのタイプを採用!
浴室に付いている浴室換気乾燥機は悪天候時も乾燥が容易になり、常に浴室を清潔な状態に保ってくれる便りになる味方です。洗面所には綺麗な独立洗面台が付いており、コンパクトな水回りは便利な仕様です!
※室内写真は別室タイプとなります。掲載情報について
※随時更新を心がけておりますが、掲載している物件が万が一成約している場合もございますので予めご了承下さいませ。
※駐車場・駐輪場・バイク置場の空き状況についてはお問い合わせ下さい。
※ペット飼育やSOHO利用・楽器使用の可否に関しては、建物の管理規約で可能になっていても、お部屋の所有者様によって禁止の場合もございますので御注意下さい。
詳細はメールやお電話にてスタッフまでご相談下さい。レジディア文京音羽Ⅱの周辺地図
似た条件の物件
最近見た物件

















