スカイコート文京茗荷谷 ~分譲賃貸マンション~
♥お気に入りスカイコート文京茗荷谷 ~分譲賃貸マンション~
♥お気に入り



スカイコート文京茗荷谷 7階
賃料 要問合せ(※) 管理費 敷金 1ヶ月 礼金 0ヶ月 間取り 1K 面積 20.70㎡ 階数 7階 状態 要問合せ(※) 入居 相談 更新料 1.5ヶ月 諸費用 取引態様 媒介 設備 オートロック、駐輪場有、宅配BOX、BS・CS、CATV、光ファイバー、インターネット対応、TVモニター付インターホン、分譲賃貸、東京大学自転車圏、礼金なし、エレベーター、2階以上、コンロ二口以上、ガスキッチン、システムキッチン、エアコン、フローリング、バストイレ別、室内洗濯機置場、収納、礼金1以下、保証会社利用、法人契約相談可 物件概要
物件名 スカイコート文京茗荷谷 所在地 東京都文京区大塚4-1-16 最寄駅 東京メトロ丸ノ内線 新大塚駅 徒歩10分
東京メトロ丸ノ内線 茗荷谷駅 徒歩11分
都営三田線 千石駅 徒歩12分
学区 構造 RC 階数 地上9階建て 築年月 2003年11月 駐車場 備考 詳細をご覧いただきましてありがとうございます。ご内見の際は現地待ち合わせも可能ですのでお気軽にご相談ください。 詳細閲覧ありがとうございます。最新の空室の確認、内覧のご予約はメール・電話にてお問い合わせください。 文京区の賃貸マンション・賃貸アパートはベステックスにおまかせください! 問合番号 03200 更新日 2019/08/20 このお部屋について
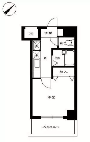
お部屋は7階部分にございます。
専有面積:20.7㎡の1Kタイプです。
お部屋の注目ポイント
⓵人気のバス・トイレ別設計!浴室内には天気・時間帯関係なく洗濯物を乾かせる浴室乾燥機を完備!
⓶料理をする方は必見、2口ガスコンロ設置済み!
⓷洗濯機置き場は室内にあるので雨に濡れることがありません♪
学生さんも必見、一人暮らし用1Kタイプ☆
是非お気軽にお問い合わせください。
*室内写真は同建物別室です。掲載情報について
※随時更新を心がけておりますが、掲載している物件が万が一成約している場合もございますので予めご了承下さいませ。
※駐車場・駐輪場・バイク置場の空き状況についてはお問い合わせ下さい。
※ペット飼育やSOHO利用・楽器使用の可否に関しては、建物の管理規約で可能になっていても、お部屋の所有者様によって禁止の場合もございますので御注意下さい。
詳細はメールやお電話にてスタッフまでご相談下さい。スカイコート文京茗荷谷の周辺地図
似た条件の物件
最近見た物件







_id3957.webp)

