東急ドエルアルス根津 ~分譲賃貸マンション~
♥お気に入り東急ドエルアルス根津 ~分譲賃貸マンション~
♥お気に入り










東急ドエルアルス根津 7階
賃料 要問合せ(※) 管理費 敷金 1ヶ月 礼金 1ヶ月 間取り 1DK 面積 39.80㎡ 階数 7階 状態 要問合せ(※) 入居 5月中旬予定 更新料 新賃料の1.0ヶ月分 諸費用 取引態様 媒介 設備 オートロック、駐輪場有、コンビニ近、CATV、光ファイバー、専用ゴミ置場、分譲賃貸、東京大学徒歩圏、東京大学自転車圏、礼金なし、エレベーター、根津小学校エリア、2階以上、眺望良好、ガスキッチン、エアコン、独立洗面台、追い焚き機能、バストイレ別、室内洗濯機置場、収納、2人入居可、法人契約相談可 物件概要
物件名 東急ドエルアルス根津 所在地 東京都文京区根津2-37-8 最寄駅 東京メトロ千代田線 根津駅 徒歩5分
東京メトロ千代田線 千駄木駅 徒歩5分
学区 根津小学校 構造 SRC 階数 地上12階建て 築年月 1992年09月 駐車場 備考 【東急ドエルアルス根津】の賃貸マンション情報!是非一度ご覧下さい。 詳細閲覧ありがとうございます。内見ご希望の方はメール・電話どちらでも結構ですので御連絡頂ければいつでも対応させて頂きます。 問合番号 052211 更新日 2020/07/08 このお部屋について
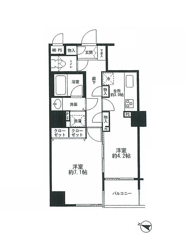
7階、39.8㎡の1DKタイプのご案内です。
~オススメポイント~
①約7.1帖の広々居室!
②3口ガスコンロ完備♪
③クローゼットは大きく収納たっぷり◎
是非一度お問い合わせください!掲載情報について
※随時更新を心がけておりますが、掲載している物件が万が一成約している場合もございますので予めご了承下さいませ。
※駐車場・駐輪場・バイク置場の空き状況についてはお問い合わせ下さい。
※ペット飼育やSOHO利用・楽器使用の可否に関しては、建物の管理規約で可能になっていても、お部屋の所有者様によって禁止の場合もございますので御注意下さい。
詳細はメールやお電話にてスタッフまでご相談下さい。東急ドエルアルス根津の周辺地図
似た条件の物件
最近見た物件
















