ヴェラハイツ小石川 ~播磨坂桜並木徒歩1分の分譲マンション~
♥お気に入りヴェラハイツ小石川 ~播磨坂桜並木徒歩1分の分譲マンション~
♥お気に入り






ヴェラハイツ小石川 5階
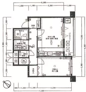
賃料 要問合せ(※) 管理費 敷金 1ヶ月 礼金 1ヶ月 間取り 1LDK 面積 45.83㎡ 階数 5階 状態 要問合せ(※) 入居 即入居 更新料 新賃料の1.0ヶ月+更新事務手数料0.5ヶ月:税別 諸費用 取引態様 媒介 設備 オートロック、駐車場有、駐輪場有、コンビニ近、光ファイバー、インターネット対応、専用ゴミ置場、防犯カメラ、TVモニター付インターホン、分譲賃貸、東京大学自転車圏、エレベーター、窪町小学校エリア、2階以上、眺望良好、南向き、日当たり良好、コンロ二口以上、ガスキッチン、システムキッチン、エアコン、独立洗面台、バストイレ別、室内洗濯機置場、収納、2人入居可 物件概要
物件名 ヴェラハイツ小石川 所在地 東京都文京区小石川4-19-6 最寄駅 東京メトロ丸ノ内線 茗荷谷駅 徒歩5分
都営三田線 白山駅 徒歩17分
学区 窪町小学校 構造 RC 階数 地上5階建て 築年月 1980年09月 2009年に耐震補強工事済み 駐車場 有(要空き確認) 備考 解約通知1ヶ月前 住宅総合保険20,000円 初回保証料:総賃料の50%、年間保証料12,000円、年間通信費300円 詳細閲覧ありがとうございます。最新の空室の確認、内覧のご予約はメール・電話にてお問い合わせください。 文京区の賃貸マンション・賃貸アパートはベステックスにおまかせください! 問合番号 79804-504 更新日 2024/04/22 このお部屋について
文京区小石川4丁目の閑静な住宅街に佇む分譲マンション【ヴェラハイツ小石川】の5階部分、45.83平米の1LDKタイプのお部屋のご紹介です。
~おすすめポイント~
①2020年にフルリノベーション済の美室!
②水回りとっても綺麗になってます♪
③東南向きの角部屋で日当たりも良好!!
内見いつでも承っております。
まずはご相談からでも、是非お問い合わせください!掲載情報について
※随時更新を心がけておりますが、掲載している物件が万が一成約している場合もございますので予めご了承下さいませ。
※駐車場・駐輪場・バイク置場の空き状況についてはお問い合わせ下さい。
※ペット飼育やSOHO利用・楽器使用の可否に関しては、建物の管理規約で可能になっていても、お部屋の所有者様によって禁止の場合もございますので御注意下さい。
詳細はメールやお電話にてスタッフまでご相談下さい。ヴェラハイツ小石川の周辺地図
似た条件の物件
最近見た物件










