レジディア水道橋 ~ペット可高級賃貸マンション~
♥お気に入りレジディア水道橋 ~ペット可高級賃貸マンション~
♥お気に入り







レジディア水道橋 3階
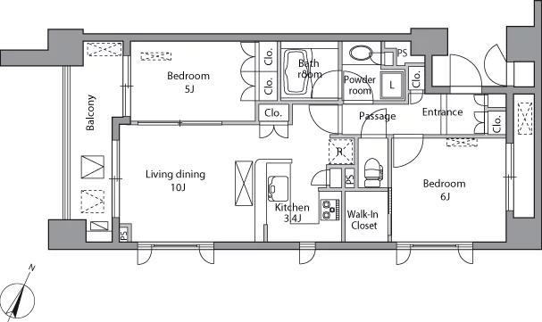
賃料 要問合せ(※) 管理費 敷金 2ヶ月 保証会社利用の場合1ヶ月 礼金 1ヶ月 間取り 2LDK 面積 57.03㎡ 階数 3階 状態 要問合せ(※) 入居 即入居 更新料 新賃料の1ヵ月分 諸費用 取引態様 媒介 設備 デザイナーズ、オートロック、駐輪場有、宅配BOX、BS・CS、CATV、光ファイバー、インターネット対応、専用ゴミ置場、防犯カメラ、TVモニター付インターホン、分譲賃貸、東京大学自転車圏、礼金なし、ペット可、エレベーター、2階以上、最上階、南向き、二面採光、日当たり良好、コンロ二口以上、ガスキッチン、システムキッチン、ウォークインクローゼット、エアコン、フローリング、独立洗面台、追い焚き機能、浴室乾燥、ウォシュレット、24時間換気システム、バストイレ別、室内洗濯機置場、収納、角部屋、礼金1以下、2人入居可、保証会社利用、法人契約相談可 物件概要
物件名 レジディア水道橋 所在地 東京都千代田区三崎町3-2-6 最寄駅 JR中央・総武線 水道橋駅 徒歩4分
東京メトロ半蔵門線 九段下駅 徒歩7分
東京メトロ東西線 飯田橋駅 徒歩7分
学区 構造 SRC 階数 地上14階建て 地下1階 築年月 2004年12月 駐車場 有 駐車場:機械式(空要確認) 備考 レジディア水道橋の賃貸マンション情報です♪ 写真は同マンション他タイプのものになります。 詳細閲覧ありがとうございます。最新の空室の確認、内覧のご予約はメール・電話にてお問い合わせください。 文京区の賃貸マンション・賃貸アパートはベステックスにおまかせください! 問合番号 2383 更新日 2015/10/14 このお部屋について
千代田区三崎町に佇むペット可高級賃貸マンション【レジディア水道橋】♪
2004年12月築の鉄骨鉄筋コンクリート造地上14階建て高級賃貸マンション♪
高級賃貸マンションならではのハイグレード仕様・設備♪オートロック・TVモニター付インターフォン完備で安心セキュリティ♪
設備充実♪冷暖房エアコン・CATV対応可・フローリング・バルコニー・独立洗面台・ウォシュレット・浴室換気乾燥機・ガスシステムキッチン・宅配ボックス・床暖房・給湯追い焚き機能・光ケーブルなど、便利な設備が充実!
是非ご覧下さい!掲載情報について
※随時更新を心がけておりますが、掲載している物件が万が一成約している場合もございますので予めご了承下さいませ。
※駐車場・駐輪場・バイク置場の空き状況についてはお問い合わせ下さい。
※ペット飼育やSOHO利用・楽器使用の可否に関しては、建物の管理規約で可能になっていても、お部屋の所有者様によって禁止の場合もございますので御注意下さい。
詳細はメールやお電話にてスタッフまでご相談下さい。レジディア水道橋の周辺地図
最近見た物件










