ADONIS(アドニス)~全部屋広々LDKタイプ以上の高級賃貸マンション~
♥お気に入りADONIS(アドニス)~全部屋広々LDKタイプ以上の高級賃貸マンション~
♥お気に入り
ADONIS(アドニス) 8階
| 賃料 | 要問合せ(※) | 管理費 | |
|---|---|---|---|
| 敷金 | 1ヶ月 | 礼金 | 1ヶ月 |
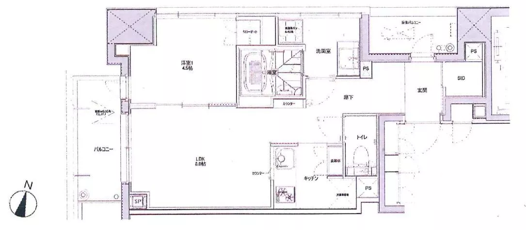
| 間取り | 1LDK | 面積 | 40.76㎡ |
| 階数 | 8階 | 状態 | 要問合せ(※) |
| 入居 | 2015年3月予定 | 更新料 | 新賃料の1ヶ月分 |
| 諸費用 | 取引態様 | 媒介 | |
| 設備 | 新築、オートロック、駐輪場有、コンビニ近、光ファイバー、専用ゴミ置場、防犯カメラ、TVモニター付インターホン、東京大学徒歩圏、東京大学自転車圏、エレベーター、本郷小学校エリア、2階以上、コンロ二口以上、IHキッチン、システムキッチン、エアコン、フローリング、独立洗面台、追い焚き機能、浴室乾燥、バストイレ別、室内洗濯機置場、洗濯機置場あり、収納、礼金1以下、2人入居可、法人契約相談可 | ||
物件概要
| 物件名 | ADONIS(アドニス) | ||
|---|---|---|---|
| 所在地 | 東京都文京区本郷2-30-15 | ||
| 最寄駅 |
東京メトロ丸ノ内線 本郷三丁目駅 徒歩3分 都営大江戸線 本郷三丁目駅 徒歩3分 都営三田線 水道橋駅 徒歩9分 |
||
| 学区 | 本郷小学校 | 構造 | RC |
| 階数 | 地上8階建て | 築年月 | 2015年03月 |
| 駐車場 | 無 | ||
| 備考 | 文京区本郷2丁目の新築物件【ADONIS(アドニス)】のご紹介です♪ 詳細閲覧ありがとうございます。最新の空室の確認、内覧のご予約はメール・電話にてお問い合わせください。 文京区の賃貸マンション・賃貸アパートはベステックスにおまかせください! | ||
| 問合番号 | 88646 | ||
| 更新日 | 2014/10/30 | ||
このお部屋について
本郷2丁目の静かな環境に2015年3月完成予定の【ADONIS(アドニス)】の1LDKタイプのお部屋のご紹介です♪
○人気のある1LDKタイプのお部屋で、8.8帖のリビングダイニングキッチンのキッチンはカウンターキッチンですのでリビングの様子を見ながら家事をすることが出来ます!また、食器棚が元々付いており、キッチン部分収納が充実♪設備としても3口IHコンロ付きシステムキッチンと新築ならではの充実の設備!4.5帖の洋室には収納スペースがありますので、お部屋を広く使うことが出来ます!バス・トイレ・洗面台がそれぞれ独立していたり、洗濯機置き場が脱衣所内あるなど暮らしやすさを追求しております!設備としても24時間管理センターシステム・オートロック・TVインターホン・防犯カメラなどの防犯設備はもちろん、エレベーター・高速インターネット・エアコン・浴室乾燥機・独立洗面台・追い焚き機能・駐輪場など大変充実!お気軽にお問い合わせください♪
○人気のある1LDKタイプのお部屋で、8.8帖のリビングダイニングキッチンのキッチンはカウンターキッチンですのでリビングの様子を見ながら家事をすることが出来ます!また、食器棚が元々付いており、キッチン部分収納が充実♪設備としても3口IHコンロ付きシステムキッチンと新築ならではの充実の設備!4.5帖の洋室には収納スペースがありますので、お部屋を広く使うことが出来ます!バス・トイレ・洗面台がそれぞれ独立していたり、洗濯機置き場が脱衣所内あるなど暮らしやすさを追求しております!設備としても24時間管理センターシステム・オートロック・TVインターホン・防犯カメラなどの防犯設備はもちろん、エレベーター・高速インターネット・エアコン・浴室乾燥機・独立洗面台・追い焚き機能・駐輪場など大変充実!お気軽にお問い合わせください♪
掲載情報について
※随時更新を心がけておりますが、掲載している物件が万が一成約している場合もございますので予めご了承下さいませ。
※駐車場・駐輪場・バイク置場の空き状況についてはお問い合わせ下さい。
※ペット飼育やSOHO利用・楽器使用の可否に関しては、建物の管理規約で可能になっていても、お部屋の所有者様によって禁止の場合もございますので御注意下さい。
詳細はメールやお電話にてスタッフまでご相談下さい。
※駐車場・駐輪場・バイク置場の空き状況についてはお問い合わせ下さい。
※ペット飼育やSOHO利用・楽器使用の可否に関しては、建物の管理規約で可能になっていても、お部屋の所有者様によって禁止の場合もございますので御注意下さい。
詳細はメールやお電話にてスタッフまでご相談下さい。




