ADONIS(アドニス)~全部屋広々LDKタイプ以上の高級賃貸マンション~
♥お気に入りADONIS(アドニス)~全部屋広々LDKタイプ以上の高級賃貸マンション~
♥お気に入り
ADONIS(アドニス) 7階
| 賃料 | 要問合せ(※) | 管理費 | |
|---|---|---|---|
| 敷金 | 1ヶ月 | 礼金 | 1ヶ月 |
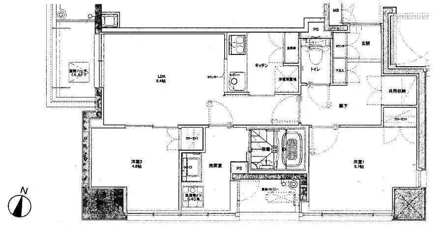
| 間取り | 2LDK | 面積 | 51.81㎡ |
| 階数 | 7階 | 状態 | 要問合せ(※) |
| 入居 | 相談 | 更新料 | 新賃料の1ヶ月分 |
| 諸費用 | 取引態様 | 媒介 | |
| 設備 | 24時間受付管理、オートロック、法人契約相談可、駐輪場有、コンビニ近、光ファイバー、インターネット対応、専用ゴミ置場、防犯カメラ、TVモニター付インターホン、東京大学徒歩圏、東京大学自転車圏、エレベーター、本郷小学校エリア、2階以上、カウンターキッチン、コンロ二口以上、IHキッチン、システムキッチン、エアコン、フローリング、独立洗面台、追い焚き機能、浴室乾燥、バストイレ別、室内洗濯機置場、収納、礼金1以下、2人入居可 | ||
物件概要
| 物件名 | ADONIS(アドニス) | ||
|---|---|---|---|
| 所在地 | 東京都文京区本郷2-30-15 | ||
| 最寄駅 |
東京メトロ丸ノ内線 本郷三丁目駅 徒歩3分 都営大江戸線 本郷三丁目駅 徒歩3分 都営三田線 水道橋駅 徒歩9分 |
||
| 学区 | 本郷小学校 | 構造 | RC |
| 階数 | 地上8階建て | 築年月 | 2015年03月 |
| 駐車場 | 無 | ||
| 備考 | ◇初回鍵交換費用:35,200円 ◇損害保険:19,000円 ◇保証会社加入必須 詳細閲覧ありがとうございます。最新の空室の確認、内覧のご予約はメール・電話にてお問い合わせください。 文京区の賃貸マンション・賃貸アパートはベステックスにおまかせください! | ||
| 問合番号 | 7812829-7002 | ||
| 更新日 | 2023/06/28 | ||
このお部屋について
7階部分のお部屋のご紹介です!
~~ここがポイント~~
①完全独立のウォシュレット機能付きトイレ!
②各居室セパレートのプライベート空間!
③駅近の好立地!
気になった方は是非お問い合わせくださいませ。
~~ここがポイント~~
①完全独立のウォシュレット機能付きトイレ!
②各居室セパレートのプライベート空間!
③駅近の好立地!
気になった方は是非お問い合わせくださいませ。
掲載情報について
※随時更新を心がけておりますが、掲載している物件が万が一成約している場合もございますので予めご了承下さいませ。
※駐車場・駐輪場・バイク置場の空き状況についてはお問い合わせ下さい。
※ペット飼育やSOHO利用・楽器使用の可否に関しては、建物の管理規約で可能になっていても、お部屋の所有者様によって禁止の場合もございますので御注意下さい。
詳細はメールやお電話にてスタッフまでご相談下さい。
※駐車場・駐輪場・バイク置場の空き状況についてはお問い合わせ下さい。
※ペット飼育やSOHO利用・楽器使用の可否に関しては、建物の管理規約で可能になっていても、お部屋の所有者様によって禁止の場合もございますので御注意下さい。
詳細はメールやお電話にてスタッフまでご相談下さい。






また、5.7帖と4.6帖の洋室にはそれぞれクローゼットが付いており、収納力に優れた使いやすい間取りです。
水回りは新築ならではの清潔感があり、洗面室スペースは広く、ゆったりお使いいただける工夫がございます。
追焚き機能・浴室乾燥機・TVモニター付きインターフォン・エアコンと充実した設備になっております。
ぜひ一度ご覧ください!!