ステージグランデ茗荷谷 ~高級分譲賃貸マンション~
♥お気に入りステージグランデ茗荷谷 ~高級分譲賃貸マンション~
♥お気に入り
ステージグランデ茗荷谷 5階
| 賃料 | 要問合せ(※) | 管理費 | |
|---|---|---|---|
| 敷金 | 1ヶ月 | 礼金 | 1ヶ月 |
| 間取り | 1K | 面積 | 20.47㎡ |
| 階数 | 5階 | 状態 | 要問合せ(※) |
| 入居 | 相談 | 更新料 | 新賃料の1ヶ月分 |
| 諸費用 | 取引態様 | 媒介 | |
| 設備 | オートロック、法人契約相談可、駐輪場有、宅配BOX、コンビニ近、BS・CS、CATV、光ファイバー、インターネット対応、専用ゴミ置場、防犯カメラ、TVモニター付インターホン、分譲賃貸、東京大学自転車圏、エレベーター、2階以上、コンロ二口以上、ガスキッチン、システムキッチン、エアコン、フローリング、独立洗面台、浴室乾燥、ウォシュレット、バストイレ別、室内洗濯機置場、洗濯機置場あり、収納、礼金1以下、保証会社利用 | ||
物件概要
| 物件名 | ステージグランデ茗荷谷 | ||
|---|---|---|---|
| 所在地 | 東京都文京区大塚3丁目42-10 | ||
| 最寄駅 |
東京メトロ丸ノ内線 茗荷谷駅 徒歩10分 都営三田線 千石駅 徒歩12分 東京メトロ丸ノ内線 新大塚駅 徒歩12分 |
||
| 学区 | 構造 | RC | |
| 階数 | 地上10階建て | 築年月 | 2007年01月 |
| 駐車場 | 無 | ||
| 備考 | ステージグランデ茗荷谷の賃貸マンション情報です♪◆鍵交換代:25,300円◆契約事務手数料:11,000円◆24時間サポート:16,500円◆火災保険 2年間 20,000円◆初回保証料:月額総賃料の50% 継続保証料:10,000円/年◆ 詳細閲覧ありがとうございます。最新の空室の確認、内覧のご予約はメール・電話にてお問い合わせください。 文京区の賃貸マンション・賃貸アパートはベステックスにおまかせください! | ||
| 問合番号 | 50183-501 | ||
| 更新日 | 2024/01/30 | ||
このお部屋について
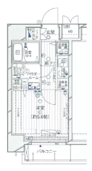
ステージグランデ茗荷谷の10階建ての5階のお部屋の御紹介です!
専有面積は20.47㎡で、使い勝手の良い1Kタイプの間取りです。
~お部屋のおすすめポイント~
①居室は高級感が有り、お手入れもしやすいオールフローリング仕様!
②収納は居室の広さを邪魔しない造り!
荷物に余計な場所をとられることも御座いません。
③バストイレ別、人気の独立洗面台完備○
充実設備の分譲マンション【ステージグランデ茗荷谷】ぜひ一度ご覧ください!!
専有面積は20.47㎡で、使い勝手の良い1Kタイプの間取りです。
~お部屋のおすすめポイント~
①居室は高級感が有り、お手入れもしやすいオールフローリング仕様!
②収納は居室の広さを邪魔しない造り!
荷物に余計な場所をとられることも御座いません。
③バストイレ別、人気の独立洗面台完備○
充実設備の分譲マンション【ステージグランデ茗荷谷】ぜひ一度ご覧ください!!
掲載情報について
※随時更新を心がけておりますが、掲載している物件が万が一成約している場合もございますので予めご了承下さいませ。
※駐車場・駐輪場・バイク置場の空き状況についてはお問い合わせ下さい。
※ペット飼育やSOHO利用・楽器使用の可否に関しては、建物の管理規約で可能になっていても、お部屋の所有者様によって禁止の場合もございますので御注意下さい。
詳細はメールやお電話にてスタッフまでご相談下さい。
※駐車場・駐輪場・バイク置場の空き状況についてはお問い合わせ下さい。
※ペット飼育やSOHO利用・楽器使用の可否に関しては、建物の管理規約で可能になっていても、お部屋の所有者様によって禁止の場合もございますので御注意下さい。
詳細はメールやお電話にてスタッフまでご相談下さい。




_id4216.webp)
_id5356.webp)

居室部分とキッチンが離れている1Kタイプなので、お料理の匂いを気にすることなく生活できます。また、2口ガスコンロで収納スペースも確保されており冷蔵庫・電子レンジもキッチン横におけるので効率的にお料理を進めることができます。
居室は約7.0帖と単身者には丁度良いサイズ感でお部屋の形も綺麗なので家具家電の配置もしやすくなっております。クローゼットもあるので収納家具を用意する必要もなく、お部屋を広く使うことができます。
また、白を基調としたフローリングと壁で明るい印象のお部屋となっております。
人気のバストイレ別で浴室乾燥機付きのお風呂とウォシュレット機能付きトイレとなっております。また、独立洗面台があるので、朝の準備も捗ります。
お部屋だけでなく、共用部分も充実しております。