アリカ文京本郷 ~デザイナーズ高級賃貸マンション~
♥お気に入りアリカ文京本郷 ~デザイナーズ高級賃貸マンション~
♥お気に入り










アリカ文京本郷 2階
賃料 要問合せ(※) 管理費 敷金 1ヶ月 ペット飼育時1ヶ月追加 礼金 1ヶ月 間取り 1SLDK 面積 62.80㎡ 階数 2階 状態 要問合せ(※) 入居 相談 更新料 新賃料の1ヶ月分 諸費用 取引態様 媒介 設備 デザイナーズ、オートロック、バイク置場有、法人契約相談可、駐輪場有、宅配BOX、コンビニ近、光ファイバー、専用ゴミ置場、TVモニター付インターホン、東京大学徒歩圏、ペット可、エレベーター、湯島小学校エリア、2階以上、二面採光、カウンターキッチン、コンロ二口以上、ガスキッチン、システムキッチン、エアコン、フローリング、独立洗面台、追い焚き機能、浴室乾燥、ウォシュレット、バストイレ別、室内洗濯機置場、洗濯機置場あり、収納、角部屋、礼金1以下、2人入居可、保証会社利用 物件概要
物件名 アリカ文京本郷 所在地 東京都文京区湯島4-4-2 最寄駅 東京メトロ丸ノ内線 本郷三丁目駅 徒歩5分
東京メトロ千代田線 湯島駅 徒歩5分
学区 湯島小学校 構造 RC 階数 地上11階建て 築年月 2014年08月 駐車場 無 備考 ◇火災保険料:18,000円 ◇鍵交換代:33,000円 ◇保証会社利用必須 ◇プレミアデスク:16,500円 ◇町会費2年分:2,000円 ◇害虫バリア:16,500円 ◇解約予告2カ月前 詳細閲覧ありがとうございます。最新の空室の確認、内覧のご予約はメール・電話にてお問い合わせください。 文京区の賃貸マンション・賃貸アパートはベステックスにおまかせください! 問合番号 14667-201 更新日 2024/06/30 このお部屋について
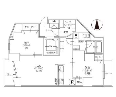
2階部分、1フロアに1部屋という1SLDKタイプ・62.86㎡のご紹介です!
間取り表記は1SLDKですが、実質2LDKとした使えるお部屋です♪
~オススメのポイント~
1.人気のカウンターキッチンを採用した15.4帖の開放的なLDK♪もちろんお料理もはかどる充実の仕様!
2.洋室と納戸の2部屋が振り分けられた使いやすい間取り。
3.設備が揃っているのはもちろん、綺麗でオシャレな水まわり♪
ペットの飼育も可能なデザイナーズ物件、是非お問い合わせください!
※ペット飼育時:敷金1ヶ月追加掲載情報について
※随時更新を心がけておりますが、掲載している物件が万が一成約している場合もございますので予めご了承下さいませ。
※駐車場・駐輪場・バイク置場の空き状況についてはお問い合わせ下さい。
※ペット飼育やSOHO利用・楽器使用の可否に関しては、建物の管理規約で可能になっていても、お部屋の所有者様によって禁止の場合もございますので御注意下さい。
詳細はメールやお電話にてスタッフまでご相談下さい。アリカ文京本郷の周辺地図
似た条件の物件
最近見た物件
















