クレイシア文京春日
♥お気に入りクレイシア文京春日
♥お気に入り
クレイシア文京春日 13階
| 賃料 | 要問合せ(※) | 管理費 | |
|---|---|---|---|
| 敷金 | 0ヶ月 ペット飼育時(保証金2ヶ月退去時償却) | 礼金 | 1ヶ月 |
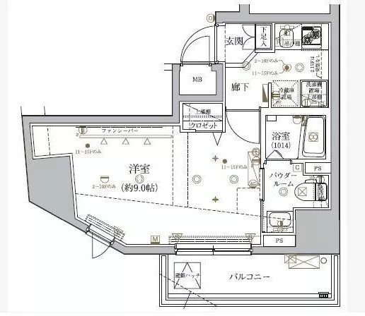
| 間取り | 1K | 面積 | 27.15㎡ |
| 階数 | 13階 | 状態 | 要問合せ(※) |
| 入居 | 10月上旬予定 | 更新料 | 新賃料1ヶ月分 |
| 諸費用 | 取引態様 | 媒介 | |
| 設備 | オートロック、バイク置場有、駐輪場有、宅配BOX、コンビニ近、BS・CS、CATV、光ファイバー、インターネット対応、専用ゴミ置場、防犯カメラ、TVモニター付インターホン、分譲賃貸、東京大学徒歩圏、東京大学自転車圏、ペット可、エレベーター、誠之小学校エリア、10階以上、眺望良好、二面採光、日当たり良好、コンロ二口以上、ガスキッチン、システムキッチン、エアコン、フローリング、独立洗面台、浴室乾燥、ウォシュレット、バストイレ別、室内洗濯機置場、収納、礼金1以下、敷金なし、法人契約相談可 | ||
物件概要
| 物件名 | クレイシア文京春日 | ||
|---|---|---|---|
| 所在地 | 東京都文京区西片1-17-9 | ||
| 最寄駅 |
都営三田線 春日駅 徒歩4分 都営大江戸線 春日駅 徒歩4分 東京メトロ丸ノ内線 後楽園駅 徒歩6分 |
||
| 学区 | 誠之小学校 | 構造 | RC |
| 階数 | 地上15階建て | 築年月 | 2014年07月 |
| 駐車場 | 無 バイク置場有:5,000円/月 駐輪場有:6,000円/年 | ||
| 備考 | 詳細閲覧ありがとうございます。最新の空室の確認、内覧のご予約はメール・電話にてお問い合わせください。 文京区の賃貸マンション・賃貸アパートはベステックスにおまかせください! | ||
| 問合番号 | 047552 | ||
| 更新日 | 2015/09/05 | ||
このお部屋について
13階部分、27.15㎡で1Kタイプのお部屋のご紹介です。
高層階で大通りと反対側なので交通音も気になりません。
眺望良好♪
■約9帖と広めのお部屋はお1人暮らしには十分な広さとなっております。2面採光で明るく通気性に優れております♪
東向きで朝には気持ち良い日が入ってきます。
キッチンは女性に嬉しい2口ガスシステムキッチンとなっております。調理スペースや収納スペースも広めに取られているので、食器や調理器具が多い方でも安心です。
■水回りはゆとりある広さの脱衣所が設けられており、独立洗面台が完備!
トイレと浴室の位置が完全に独立しているのも嬉しい仕様♪
浴室に付いている浴室換気乾燥機は悪天候時も乾燥が容易になり、常に浴室を清潔な状態に保ってくれる便りになる味方です。
TVモニター付きインターフォンとオートロックで安心セキュリティ♪
ぜひお問い合わせ下さい!
※ペット飼育相談可(保証金2ヶ月退去時償却)
※室内写真は同物件別部屋のものになります。
高層階で大通りと反対側なので交通音も気になりません。
眺望良好♪
■約9帖と広めのお部屋はお1人暮らしには十分な広さとなっております。2面採光で明るく通気性に優れております♪
東向きで朝には気持ち良い日が入ってきます。
キッチンは女性に嬉しい2口ガスシステムキッチンとなっております。調理スペースや収納スペースも広めに取られているので、食器や調理器具が多い方でも安心です。
■水回りはゆとりある広さの脱衣所が設けられており、独立洗面台が完備!
トイレと浴室の位置が完全に独立しているのも嬉しい仕様♪
浴室に付いている浴室換気乾燥機は悪天候時も乾燥が容易になり、常に浴室を清潔な状態に保ってくれる便りになる味方です。
TVモニター付きインターフォンとオートロックで安心セキュリティ♪
ぜひお問い合わせ下さい!
※ペット飼育相談可(保証金2ヶ月退去時償却)
※室内写真は同物件別部屋のものになります。
掲載情報について
※随時更新を心がけておりますが、掲載している物件が万が一成約している場合もございますので予めご了承下さいませ。
※駐車場・駐輪場・バイク置場の空き状況についてはお問い合わせ下さい。
※ペット飼育やSOHO利用・楽器使用の可否に関しては、建物の管理規約で可能になっていても、お部屋の所有者様によって禁止の場合もございますので御注意下さい。
詳細はメールやお電話にてスタッフまでご相談下さい。
※駐車場・駐輪場・バイク置場の空き状況についてはお問い合わせ下さい。
※ペット飼育やSOHO利用・楽器使用の可否に関しては、建物の管理規約で可能になっていても、お部屋の所有者様によって禁止の場合もございますので御注意下さい。
詳細はメールやお電話にてスタッフまでご相談下さい。






