クレイシア文京春日
♥お気に入りクレイシア文京春日
♥お気に入り
クレイシア文京春日 12階
| 賃料 | 要問合せ(※) | 管理費 | |
|---|---|---|---|
| 敷金 | 0ヶ月 | 礼金 | 1ヶ月 |
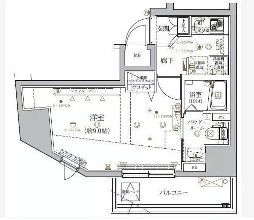
| 間取り | 1K | 面積 | 27.15㎡ |
| 階数 | 12階 | 状態 | 要問合せ(※) |
| 入居 | 即入居可 | 更新料 | 新賃料1ヶ月分 |
| 諸費用 | 取引態様 | 媒介 | |
| 設備 | 新築、オートロック、バイク置場有、駐輪場有、宅配BOX、コンビニ近、BS・CS、CATV、光ファイバー、インターネット対応、専用ゴミ置場、防犯カメラ、TVモニター付インターホン、分譲賃貸、東京大学徒歩圏、東京大学自転車圏、ペット可、エレベーター、誠之小学校エリア、10階以上、眺望良好、コンロ二口以上、ガスキッチン、システムキッチン、エアコン、フローリング、独立洗面台、浴室乾燥、ウォシュレット、バストイレ別、室内洗濯機置場、収納、角部屋、礼金1以下、敷金なし、法人契約相談可 | ||
物件概要
| 物件名 | クレイシア文京春日 | ||
|---|---|---|---|
| 所在地 | 東京都文京区西片1-17-9 | ||
| 最寄駅 |
都営三田線 春日駅 徒歩4分 都営大江戸線 春日駅 徒歩4分 東京メトロ丸ノ内線 後楽園駅 徒歩6分 |
||
| 学区 | 誠之小学校 | 構造 | RC |
| 階数 | 地上15階建て | 築年月 | 2014年07月 |
| 駐車場 | 無 バイク置場有:5,000円/月 駐輪場有:6,000円/年 | ||
| 備考 | 文京区西片1丁目の新築賃貸マンション【クレイシア文京春日】のご紹介です。 ※ペット飼育時保証金2ヶ月、礼金1ヶ月 詳細閲覧ありがとうございます。最新の空室の確認、内覧のご予約はメール・電話にてお問い合わせください。 文京区の賃貸マンション・賃貸アパートはベステックスにおまかせください! | ||
| 問合番号 | 97541 | ||
| 更新日 | 2014/08/24 | ||
このお部屋について
文京区西片1丁目の新築賃貸マンション【クレイシア文京春日】のご紹介です。12階、27.15㎡の1Kタイプのお部屋のご紹介です☆エアコン、グリル付2口ガスキッチン、洗髪洗面化粧台、ウォシュレット、浴室乾燥機完備のハイグレード設備☆
脱衣所を経て浴室まで行ける点も嬉しい環境☆約9帖の洋室は1Kのお部屋では希少な広さ☆1人掛けのソファを置いても余裕が持てます☆角部屋でプライベートの空間も充実☆白を基調とした清潔感溢れるお部屋☆ペット飼育も可能です☆通りも抜けており、12階から見渡す眺望は格別です☆
お気軽にお問い合わせください♪
脱衣所を経て浴室まで行ける点も嬉しい環境☆約9帖の洋室は1Kのお部屋では希少な広さ☆1人掛けのソファを置いても余裕が持てます☆角部屋でプライベートの空間も充実☆白を基調とした清潔感溢れるお部屋☆ペット飼育も可能です☆通りも抜けており、12階から見渡す眺望は格別です☆
お気軽にお問い合わせください♪
掲載情報について
※随時更新を心がけておりますが、掲載している物件が万が一成約している場合もございますので予めご了承下さいませ。
※駐車場・駐輪場・バイク置場の空き状況についてはお問い合わせ下さい。
※ペット飼育やSOHO利用・楽器使用の可否に関しては、建物の管理規約で可能になっていても、お部屋の所有者様によって禁止の場合もございますので御注意下さい。
詳細はメールやお電話にてスタッフまでご相談下さい。
※駐車場・駐輪場・バイク置場の空き状況についてはお問い合わせ下さい。
※ペット飼育やSOHO利用・楽器使用の可否に関しては、建物の管理規約で可能になっていても、お部屋の所有者様によって禁止の場合もございますので御注意下さい。
詳細はメールやお電話にてスタッフまでご相談下さい。






