ラ・トゥール飯田橋 ~高級タワーマンション~
♥お気に入りラ・トゥール飯田橋 ~高級タワーマンション~
♥お気に入り
ラ・トゥール飯田橋 18階
| 賃料 | 要問合せ(※) | 管理費 | |
|---|---|---|---|
| 敷金 | 4ヶ月 指定保証会社利用時3ヶ月 | 礼金 | 0ヶ月 |
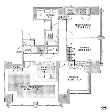
| 間取り | 3LDK | 面積 | 129.00㎡ |
| 階数 | 18階 | 状態 | 要問合せ(※) |
| 入居 | 即入居可 | 更新料 | なし |
| 諸費用 | 取引態様 | 媒介 | |
| 設備 | タワーマンション、デザイナーズ、フロントサービス有、24時間受付管理、オートロック、バイク置場有、駐車場有、駐輪場有、宅配BOX、コンビニ近、BS・CS、CATV、光ファイバー、インターネット対応、専用ゴミ置場、防犯カメラ、TVモニター付インターホン、東京大学自転車圏、礼金なし、ペット可、エレベーター、金富小学校エリア、10階以上、眺望良好、南向き、二面採光、日当たり良好、カウンターキッチン、コンロ二口以上、IHキッチン、システムキッチン、ウォークインクローゼット、エアコン、フローリング、独立洗面台、追い焚き機能、浴室乾燥、ウォシュレット、24時間換気システム、トランクルーム、バストイレ別、室内洗濯機置場、床暖房、収納、角部屋、2人入居可、法人契約相談可 | ||
物件概要
| 物件名 | ラ・トゥール飯田橋 | ||
|---|---|---|---|
| 所在地 | 東京都文京区後楽2丁目6-1 | ||
| 最寄駅 |
都営大江戸線 飯田橋駅 徒歩3分 JR中央・総武線 飯田橋駅 徒歩5分 東京メトロ丸ノ内線 後楽園駅 徒歩8分 |
||
| 学区 | 金富小学校 | 構造 | SRC |
| 階数 | 地上34階建て 地下3階 | 築年月 | 2010年04月 |
| 駐車場 | 諸条件要確認 | ||
| 備考 | 文京区後楽2丁目、飯田橋駅徒歩3分の高級タワーマンション【ラ・トゥール飯田橋】の賃貸のご紹介です。※こちらの物件は3年間の定期借家契約の物件となります。 詳細閲覧ありがとうございます。最新の空室の確認、内覧のご予約はメール・電話にてお問い合わせください。 文京区の賃貸マンション・賃貸アパートはベステックスにおまかせください! | ||
| 問合番号 | 32387 | ||
| 更新日 | 2015/10/20 | ||
このお部屋について
18階のお部屋のご紹介です♪
●こちらのお部屋は3LDKタイプのお部屋となっております。玄関から正面の入り口に入ると、20帖の広々としたリビングダイニングがございます。全部屋収納付きなので、お部屋の広さを無駄にすることなく使用することができます。特に9.4帖の洋室には、ウォークインクローゼットが2つあります。
●水回りは、タンクレストイレが2つあるのに加えてツーボウル洗面化粧台完備。キッチンはIHクッキングヒーター付きのカウンターキッチンとなっております。ディスポーザー、ビルトイン浄水器など室内設備が充実。お風呂はオートバスを採用。暖房機能付き浴室乾燥機も完備。
●その他設備としては、天井カセット型エアコン、床暖房、ドラム式洗濯乾燥機などがあります。
●駐車場、駐輪場、バイク置き場ございます(空き要確認)。ペット相談可。スカイガーデン、パーティルーム完備。
お気軽にお問い合わせください★
※こちらの物件は3年間の定期借家契約の物件となります。
※解約時敷金1ヶ月償却
※1年未満で解約の場合は、違約金1ヶ月
●こちらのお部屋は3LDKタイプのお部屋となっております。玄関から正面の入り口に入ると、20帖の広々としたリビングダイニングがございます。全部屋収納付きなので、お部屋の広さを無駄にすることなく使用することができます。特に9.4帖の洋室には、ウォークインクローゼットが2つあります。
●水回りは、タンクレストイレが2つあるのに加えてツーボウル洗面化粧台完備。キッチンはIHクッキングヒーター付きのカウンターキッチンとなっております。ディスポーザー、ビルトイン浄水器など室内設備が充実。お風呂はオートバスを採用。暖房機能付き浴室乾燥機も完備。
●その他設備としては、天井カセット型エアコン、床暖房、ドラム式洗濯乾燥機などがあります。
●駐車場、駐輪場、バイク置き場ございます(空き要確認)。ペット相談可。スカイガーデン、パーティルーム完備。
お気軽にお問い合わせください★
※こちらの物件は3年間の定期借家契約の物件となります。
※解約時敷金1ヶ月償却
※1年未満で解約の場合は、違約金1ヶ月
掲載情報について
※随時更新を心がけておりますが、掲載している物件が万が一成約している場合もございますので予めご了承下さいませ。
※駐車場・駐輪場・バイク置場の空き状況についてはお問い合わせ下さい。
※ペット飼育やSOHO利用・楽器使用の可否に関しては、建物の管理規約で可能になっていても、お部屋の所有者様によって禁止の場合もございますので御注意下さい。
詳細はメールやお電話にてスタッフまでご相談下さい。
※駐車場・駐輪場・バイク置場の空き状況についてはお問い合わせ下さい。
※ペット飼育やSOHO利用・楽器使用の可否に関しては、建物の管理規約で可能になっていても、お部屋の所有者様によって禁止の場合もございますので御注意下さい。
詳細はメールやお電話にてスタッフまでご相談下さい。


