フェニックス茗荷谷 ~3沿線3駅徒歩圏内~
♥お気に入りフェニックス茗荷谷 ~3沿線3駅徒歩圏内~
♥お気に入り









フェニックス茗荷谷 5階
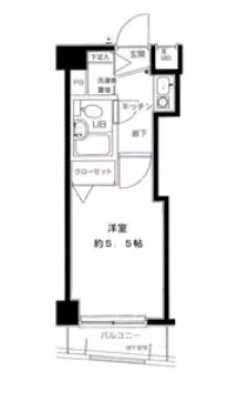
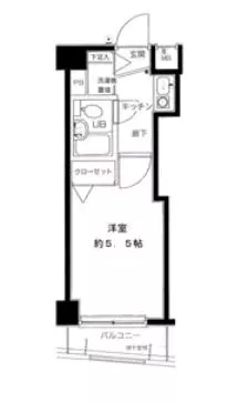
賃料 要問合せ(※) 管理費 敷金 1ヶ月 解約時償却 礼金 1ヶ月 間取り 1K 面積 16.74㎡ 階数 5階 状態 要問合せ(※) 入居 相談 更新料 新賃料の1ヶ月分 諸費用 取引態様 媒介 設備 法人契約相談可、コンビニ近、光ファイバー、インターネット対応、東京大学自転車圏、エレベーター、大塚小学校エリア、2階以上、IHキッチン、エアコン、フローリング、室内洗濯機置場、洗濯機置場あり、収納、角部屋 物件概要
物件名 フェニックス茗荷谷 所在地 東京都文京区大塚4丁目40-14 最寄駅 東京メトロ丸ノ内線 茗荷谷駅 徒歩7分
東京メトロ有楽町線 護国寺駅 徒歩9分
JR山手線 大塚駅 徒歩15分
学区 大塚小学校 構造 RC 階数 地上階建て 築年月 1999年12月 駐車場 備考 ◇火災保険料:18,000円/2年 ◇解約予告:1カ月前 ◇アクト安心ライフ24:16,500円 ◇鍵交換費用:19,800円 ◇システム利用料:275円 ◇保証会社費用必須 ・初回保証料:総賃料の40% ・1年毎に更新保証料:10,000円 ◇転貸借契約不可 詳細閲覧ありがとうございます。最新の空室の確認、内覧のご予約はメール・電話にてお問い合わせください。 文京区の賃貸マンション・賃貸アパートはベステックスにおまかせください! 問合番号 50202-503 更新日 2023/09/20 このお部屋について
分譲賃貸マンション。7階建ての5階部分・16.74㎡の1Kのお部屋です。
オートロック・えれ3ベーターあり。室内設備:エアコン・室内洗濯機置場・クローゼット・インターネット光ファイバー導入済み・駐輪場(要確認)など快適な新生活をサポートする設備充実。是非ご内覧ください。掲載情報について
※随時更新を心がけておりますが、掲載している物件が万が一成約している場合もございますので予めご了承下さいませ。
※駐車場・駐輪場・バイク置場の空き状況についてはお問い合わせ下さい。
※ペット飼育やSOHO利用・楽器使用の可否に関しては、建物の管理規約で可能になっていても、お部屋の所有者様によって禁止の場合もございますので御注意下さい。
詳細はメールやお電話にてスタッフまでご相談下さい。フェニックス茗荷谷の周辺地図
似た条件の物件
最近見た物件















