ダイナシティ文京根津 ~高級分譲賃貸マンション~
♥お気に入りダイナシティ文京根津 ~高級分譲賃貸マンション~
♥お気に入り
ダイナシティ文京根津 6階
| 賃料 | 要問合せ(※) | 管理費 | |
|---|---|---|---|
| 敷金 | 1ヶ月 | 礼金 | 1ヶ月 |
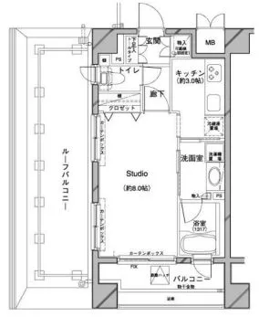
| 間取り | 1K | 面積 | 32.25㎡ |
| 階数 | 6階 | 状態 | 要問合せ(※) |
| 入居 | 相談 | 更新料 | 新賃料の1ヶ月分 |
| 諸費用 | 取引態様 | 媒介 | |
| 設備 | オートロック、駐輪場有、宅配BOX、コンビニ近、光ファイバー、インターネット対応、専用ゴミ置場、防犯カメラ、TVモニター付インターホン、分譲賃貸、東京大学徒歩圏、ペット可、エレベーター、根津小学校エリア、2階以上、ルーフバルコニー、二面採光、コンロ二口以上、ガスキッチン、システムキッチン、エアコン、フローリング、独立洗面台、追い焚き機能、浴室乾燥、ウォシュレット、バストイレ別、室内洗濯機置場、洗濯機置場あり、床暖房、収納、角部屋、礼金1以下、保証会社利用、楽器相談可、SOHO可、法人契約相談可 | ||
物件概要
| 物件名 | ダイナシティ文京根津 | ||
|---|---|---|---|
| 所在地 | 東京都文京区根津2-14-9 | ||
| 最寄駅 |
東京メトロ千代田線 根津駅 徒歩2分 東京メトロ千代田線 千駄木駅 徒歩11分 東京メトロ南北線 東大前駅 徒歩12分 |
||
| 学区 | 根津小学校 | 構造 | SRC |
| 階数 | 地上10階建て | 築年月 | 2004年11月 |
| 駐車場 | |||
| 備考 | 【ダイナシティ文京根津】の賃貸情報です。 詳細閲覧ありがとうございます。最新の空室の確認、内覧のご予約はメール・電話にてお問い合わせください。 文京区の賃貸マンション・賃貸アパートはベステックスにおまかせください! | ||
| 問合番号 | 808067 | ||
| 更新日 | 2020/02/02 | ||
このお部屋について
文京区根津2丁目の賃貸マンション【ダイナシティ文京根津】の6階1Kタイプのお部屋のご紹介です♪
広々ルーフバルコニー付の開放感のあるお部屋♪
居室内には柱がなく使い易い形となっております。
もちろんバストイレ別で、脱衣洗面所も完備。
エアコン、システムキッチン、床暖房、ウォシュレット、浴室乾燥機、追焚機能など設備も充実♪
インターネットも無料で使い放題!
是非ご内覧下さい!
広々ルーフバルコニー付の開放感のあるお部屋♪
居室内には柱がなく使い易い形となっております。
もちろんバストイレ別で、脱衣洗面所も完備。
エアコン、システムキッチン、床暖房、ウォシュレット、浴室乾燥機、追焚機能など設備も充実♪
インターネットも無料で使い放題!
是非ご内覧下さい!
掲載情報について
※随時更新を心がけておりますが、掲載している物件が万が一成約している場合もございますので予めご了承下さいませ。
※駐車場・駐輪場・バイク置場の空き状況についてはお問い合わせ下さい。
※ペット飼育やSOHO利用・楽器使用の可否に関しては、建物の管理規約で可能になっていても、お部屋の所有者様によって禁止の場合もございますので御注意下さい。
詳細はメールやお電話にてスタッフまでご相談下さい。
※駐車場・駐輪場・バイク置場の空き状況についてはお問い合わせ下さい。
※ペット飼育やSOHO利用・楽器使用の可否に関しては、建物の管理規約で可能になっていても、お部屋の所有者様によって禁止の場合もございますので御注意下さい。
詳細はメールやお電話にてスタッフまでご相談下さい。





