SYNEX HON-KOMAGOME【シーネクス本駒込】 ~ペット可高級分譲賃貸マンション~
♥お気に入りSYNEX HON-KOMAGOME【シーネクス本駒込】 ~ペット可高級分譲賃貸マンション~
♥お気に入り










シーネクス本駒込 1階
賃料 要問合せ(※) 管理費 敷金 1ヶ月 礼金 1ヶ月 間取り 1K 面積 22.80㎡ 階数 1階 状態 要問合せ(※) 入居 相談 更新料 新賃料の1ヶ月分 諸費用 取引態様 媒介 設備 オートロック、バイク置場有、駐車場有、駐輪場有、宅配BOX、コンビニ近、BS・CS、CATV、光ファイバー、インターネット対応、専用ゴミ置場、防犯カメラ、TVモニター付インターホン、分譲賃貸、東京大学自転車圏、エレベーター、駒本小学校エリア、1階、コンロ二口以上、ガスキッチン、システムキッチン、エアコン、浴室乾燥、ウォシュレット、バストイレ別、室内洗濯機置場、洗濯機置場あり、収納、礼金1以下、保証会社利用、法人契約相談可 物件概要
物件名 シーネクス本駒込 所在地 東京都文京区本駒込1丁目28-14 最寄駅 東京メトロ南北線 本駒込駅 徒歩5分
都営三田線 白山駅 徒歩10分
都営三田線 千石駅 徒歩10分
学区 駒本小学校 構造 RC 階数 地上14階建て 築年月 2007年07月 駐車場 無 備考 【メインステージ本駒込】の賃貸マンション情報です♪ ※写真は別タイプのお部屋のものです。 詳細閲覧ありがとうございます。最新の空室の確認、内覧のご予約はメール・電話にてお問い合わせください。 文京区の賃貸マンション・賃貸アパートはベステックスにおまかせください! 問合番号 510679 更新日 2020/05/29 このお部屋について
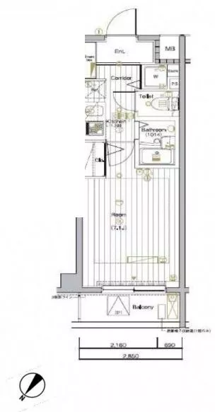
【シークネス本駒込】、ご紹介のお部屋は地上1階部分にございます。
専有面積:22.80㎡の1Kタイプです。
居室は広々7.1帖!
長方形に近い形ですので、ベッドやテーブル等のレイアウトがしやすいです♪
室内にはTVモニター付きインターホンがございますので、
室内から来訪者を確認することができます。直接対面せずに対応することが可能なので女性もご安心頂けます。
オートロックと併せてセキュリティ面安心です♪
エアコンは既に設置済みですので1年通して快適にお過ごし頂けます。
キッチンは人気のシステムキッチン仕様。
お料理好きには嬉しい2口コンロ完備となっております♪
バス・トイレは別ですので水回りをゆったりとお使い頂けます。
トイレはウォシュレット機能完備♪
浴室には天気・時間帯関係なく洗濯物の乾燥が可能な浴室乾燥機能が完備されていますので重宝します♪
浴室内を清潔に保つ役割も果たしてくれますので便利です。
洗濯機置場はもちろん室内置きですので、長く清潔にお使い頂けます。
玄関前にはシューズボックスがございますので、お持ちの靴をしっかり保管頂けます。
【シークネス本駒込】の1階部分1K、少しでも気になった方はお気軽にお問い合わせください!
*室内写真は同建物別室です。掲載情報について
※随時更新を心がけておりますが、掲載している物件が万が一成約している場合もございますので予めご了承下さいませ。
※駐車場・駐輪場・バイク置場の空き状況についてはお問い合わせ下さい。
※ペット飼育やSOHO利用・楽器使用の可否に関しては、建物の管理規約で可能になっていても、お部屋の所有者様によって禁止の場合もございますので御注意下さい。
詳細はメールやお電話にてスタッフまでご相談下さい。シーネクス本駒込の周辺地図
似た条件の物件
最近見た物件
















