パティーナ新大塚 ~ペット相談可能の1Kマンション~
♥お気に入りパティーナ新大塚 ~ペット相談可能の1Kマンション~
♥お気に入り
パティーナ新大塚 6階
| 賃料 | 要問合せ(※) | 管理費 | |
|---|---|---|---|
| 敷金 | 1ヶ月 ペット飼育時プラス1ヶ月 | 礼金 | 1ヶ月 |
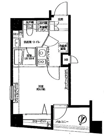
| 間取り | 1K | 面積 | 25.38㎡ |
| 階数 | 6階 | 状態 | 要問合せ(※) |
| 入居 | 更新料 | 新賃料の1ヶ月分 | |
| 諸費用 | 取引態様 | 媒介 | |
| 設備 | オートロック、駐車場有、駐輪場有、宅配BOX、コンビニ近、BS・CS、専用ゴミ置場、防犯カメラ、TVモニター付インターホン、分譲賃貸、ペット可、エレベーター、2階以上、二面採光、コンロ二口以上、ガスキッチン、システムキッチン、エアコン、独立洗面台、追い焚き機能、浴室乾燥、ウォシュレット、バストイレ別、室内洗濯機置場、収納、角部屋、保証会社利用、法人契約相談可 | ||
物件概要
| 物件名 | パティーナ新大塚 | ||
|---|---|---|---|
| 所在地 | 東京都豊島区南大塚1-12-5 | ||
| 最寄駅 |
東京メトロ丸ノ内線 新大塚駅 徒歩6分 JR山手線 大塚駅 徒歩9分 都営都電荒川線 大塚駅前駅 徒歩8分 |
||
| 学区 | 構造 | RC | |
| 階数 | 地上8階建て | 築年月 | 2014年02月 |
| 駐車場 | 1台有り(月額:33,000円 要確認) | ||
| 備考 | 【パティーナ新大塚】の賃貸マンション情報♪ ※ペット飼育時、敷金プラス1ヶ月 詳細閲覧ありがとうございます。最新の空室の確認、内覧のご予約はメール・電話にてお問い合わせください。 文京区の賃貸マンション・賃貸アパートはベステックスにおまかせください! | ||
| 問合番号 | 678413 | ||
| 更新日 | 2020/10/30 | ||
このお部屋について
6階の1Kタイプ、約6.9帖のお部屋です♪ 2口ガスシステムキッチン、洗面化粧台、浴室換気乾燥暖房機、追焚機能、シャワートイレ、ピクチャーレール、エアコン、防犯サムターン、ダブルロック、ディンプルキー、室内カバー付きドアスコープなど室内設備なども大変充実♪ 是非お問合せ下さい♪
掲載情報について
※随時更新を心がけておりますが、掲載している物件が万が一成約している場合もございますので予めご了承下さいませ。
※駐車場・駐輪場・バイク置場の空き状況についてはお問い合わせ下さい。
※ペット飼育やSOHO利用・楽器使用の可否に関しては、建物の管理規約で可能になっていても、お部屋の所有者様によって禁止の場合もございますので御注意下さい。
詳細はメールやお電話にてスタッフまでご相談下さい。
※駐車場・駐輪場・バイク置場の空き状況についてはお問い合わせ下さい。
※ペット飼育やSOHO利用・楽器使用の可否に関しては、建物の管理規約で可能になっていても、お部屋の所有者様によって禁止の場合もございますので御注意下さい。
詳細はメールやお電話にてスタッフまでご相談下さい。




