ヒューリックレジデンス茗荷谷
♥お気に入りヒューリックレジデンス茗荷谷
♥お気に入り










ヒューリックレジデンス茗荷谷 7階
賃料 要問合せ(※) 管理費 敷金 1ヶ月 礼金 1ヶ月 間取り 1LDK 面積 44.37㎡ 階数 7階 状態 要問合せ(※) 入居 相談 更新料 再契約時、礼金1ヶ月 諸費用 取引態様 媒介 設備 オートロック、法人契約相談可、駐輪場有、宅配BOX、コンビニ近、光ファイバー、インターネット対応、防犯カメラ、TVモニター付インターホン、礼金なし、窪町小学校エリア、2階以上、カウンターキッチン、コンロ二口以上、ガスキッチン、システムキッチン、エアコン、フローリング、独立洗面台、浴室乾燥、バストイレ別、室内洗濯機置場、洗濯機置場あり、収納、礼金1以下、フリーレント付き、2人入居可、保証会社利用 物件概要
物件名 ヒューリックレジデンス茗荷谷 所在地 東京都文京区小日向4丁目3-4 最寄駅 東京メトロ丸ノ内線 茗荷谷駅 徒歩7分
東京メトロ有楽町線 江戸川橋駅 徒歩12分
東京メトロ有楽町線 護国寺駅 徒歩12分
学区 窪町小学校 構造 RC 階数 地上7階建て 地下1階 築年月 2010年10月 駐車場 無 駐輪場有 備考 詳細閲覧ありがとうございます。最新の空室の確認、内覧のご予約はメール・電話にてお問い合わせください。 文京区の賃貸マンション・賃貸アパートはベステックスにおまかせください! 問合番号 999993 更新日 2024/12/04 このお部屋について
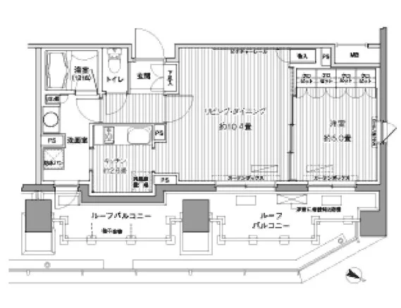
鉄筋コンクリート造地上8階建て4階の1LDKタイプのご紹介!
専有面積、43.37㎡と広めのお部屋になっています♪
シンプルな間取りで使い勝手良好!
人気のオールフローリングになっているので、お掃除も手間が掛かりません!
約10.4帖のリビングダイニングキッチンは梁も少なく使いやすい間取りになっています。
リビングにキッチンが付いているタイプですので、調理してすぐにテーブルに並べることが可能です。
約5.0帖の居室は2面採光になっていますので通気性も抜群で過ごしやすいお部屋です。
リビングと居室の間の引き戸を開け放てば大きなお部屋に変身します!
お好きな家具を自在に配置できるのでお部屋作りを楽しむことが可能です♪
~気になる水周り~
キッチンにはグリル付きの3口ガスコンロが備え付けられているので、本格的な料理をする方でも十分な設備になっています。
バス・トイレは独立しており、それぞれがゆったりと使えるようになっています。
また、お風呂には浴室換気乾燥機がついているので、雨の日の洗濯や普段仕事で忙しい人にオススメです!
追い焚き機能も完備していますので、長風呂をする人でもさめることなく温かいお風呂に入っていられます。
浴室前は独立洗面台が備え付けてある洗面室兼脱衣所になっています。
洗面台で朝の身だしなみチェックやお化粧など、様々な使い方ができます!
~セキュリティ~
もちろんオートロック完備!
TVモニターも付いているので、誰が来たのか一目で分かります。
共用部には防犯カメラもありますので、セキュリティ体制は抜群です♪
また、日中忙しい人に嬉しいメールボックスや宅配ボックスも御座います!
是非、ご覧ください。
※定期借家契約3年(再契約可能)。詳しくはお問い合わせください。掲載情報について
※随時更新を心がけておりますが、掲載している物件が万が一成約している場合もございますので予めご了承下さいませ。
※駐車場・駐輪場・バイク置場の空き状況についてはお問い合わせ下さい。
※ペット飼育やSOHO利用・楽器使用の可否に関しては、建物の管理規約で可能になっていても、お部屋の所有者様によって禁止の場合もございますので御注意下さい。
詳細はメールやお電話にてスタッフまでご相談下さい。ヒューリックレジデンス茗荷谷の周辺地図
最近見た物件











