フォレストビュー護国寺 ~ペット・楽器可高級マンション~
♥お気に入りフォレストビュー護国寺 ~ペット・楽器可高級マンション~
♥お気に入り










【築浅】フォレストビュー護国寺 5階
賃料 要問合せ(※) 管理費 敷金 2ヶ月 礼金 1ヶ月 間取り 2LDK 面積 53.87㎡ 階数 5階 状態 要問合せ(※) 入居 即 更新料 新賃料の1ヶ月 諸費用 取引態様 媒介 設備 オートロック、バイク置場有、駐輪場有、宅配BOX、コンビニ近、BS・CS、光ファイバー、インターネット対応、専用ゴミ置場、防犯カメラ、TVモニター付インターホン、ペット可、エレベーター、青柳小学校エリア、2階以上、眺望良好、二面採光、コンロ二口以上、ガスキッチン、システムキッチン、エアコン、フローリング、独立洗面台、追い焚き機能、浴室乾燥、ウォシュレット、24時間換気システム、バストイレ別、室内洗濯機置場、床暖房、収納、角部屋、2人入居可、楽器相談可、SOHO可、法人契約相談可 物件概要
物件名 【築浅】フォレストビュー護国寺 所在地 東京都文京区大塚2-8-3 最寄駅 東京メトロ有楽町線 護国寺駅 徒歩2分
東京メトロ丸ノ内線 新大塚駅 徒歩10分
学区 青柳小学校 構造 RC 階数 地上10階建て 築年月 2013年12月 駐車場 無 駐輪場有(上段:月額200円、下段:月額300円) 備考 【フォレストビュー護国寺】の賃貸マンション情報♪ ※ペット飼育時(小型犬・猫合せて2匹まで):敷金1ヶ月積増し、退去時消毒費用1,000円/㎡(税別) ※SOHO使用時:敷金1ヶ月積増し 詳細閲覧ありがとうございます。最新の空室の確認、内覧のご予約はメール・電話にてお問い合わせください。 文京区の賃貸マンション・賃貸アパートはベステックスにおまかせください! 問合番号 967003 更新日 2016/08/11 このお部屋について
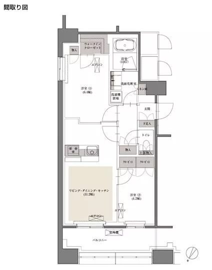
護国寺駅徒歩2分の賃貸マンション【フォレストビュー護国寺】の賃貸をご紹介します。10階建て、5階の角部屋、2LDKタイプのお部屋です♪
11.2帖のリビング・ダイニング・キッチン、6.4帖と4.2帖の洋室が2部屋御座います。 6.4帖の洋室にはウォークインクローゼット、4.2帖の洋室には両開きのクローゼットが二つ、廊下や洗面化粧室にも物入・リネン棚が有り収納は充実♪
リビングには床暖房を完備しておりますので、冬でも足元から寒さを和らげてくれます。
エアコンも各部屋に設置済みとなっております。
バルコニーも8.65㎡と広々としており、目の前には護国寺を望めます♪
~設備~
グリル付ガス3口システムキッチン、エアコン3基、TES式床暖房、追焚機能、浴室換気乾燥機、24時間換気システム、独立洗面台、室内洗濯機置場、ウォシュレット、ウォークインクローゼット、カラーモニター付ハンズフリーインターホン…など充実しております!
ペット・楽器・SOHO使用相談可の充実仕様!
是非一度【フォレストビュー護国寺】をお問い合わせ下さい♪
※写真は別室になります。掲載情報について
※随時更新を心がけておりますが、掲載している物件が万が一成約している場合もございますので予めご了承下さいませ。
※駐車場・駐輪場・バイク置場の空き状況についてはお問い合わせ下さい。
※ペット飼育やSOHO利用・楽器使用の可否に関しては、建物の管理規約で可能になっていても、お部屋の所有者様によって禁止の場合もございますので御注意下さい。
詳細はメールやお電話にてスタッフまでご相談下さい。【築浅】フォレストビュー護国寺の周辺地図
似た条件の物件
最近見た物件














