パレステュディオ小石川後楽園 ~分譲賃貸マンション~
♥お気に入りパレステュディオ小石川後楽園 ~分譲賃貸マンション~
♥お気に入り









パレステュディオ小石川後楽園 7階
賃料 要問合せ(※) 管理費 敷金 0ヶ月 礼金 0ヶ月 キャンペーン期間中! 間取り 1K 面積 22.06㎡ 階数 7階 状態 要問合せ(※) 入居 5月上旬 更新料 新賃料の1.5ヶ月 諸費用 取引態様 媒介 設備 オートロック、駐輪場有、宅配BOX、コンビニ近、BS・CS、光ファイバー、インターネット対応、専用ゴミ置場、防犯カメラ、TVモニター付インターホン、分譲賃貸、東京大学自転車圏、エレベーター、金富小学校エリア、2階以上、南向き、二面採光、コンロ二口以上、ガスキッチン、システムキッチン、エアコン、フローリング、浴室乾燥、ウォシュレット、バストイレ別、室内洗濯機置場、収納、角部屋、礼金1以下、保証会社利用、法人契約相談可 物件概要
物件名 パレステュディオ小石川後楽園 所在地 東京都文京区春日1-6-2 最寄駅 東京メトロ東西線 飯田橋駅 徒歩10分
東京メトロ丸ノ内線 後楽園駅 徒歩8分
JR中央・総武線 飯田橋駅 徒歩10分
学区 金富小学校 構造 SRC 階数 地上10階建て 築年月 2001年07月 駐車場 無 備考 文京区春日1丁目の分譲賃貸マンション【パレステュディオ小石川後楽園】。 ※解約予告2ヶ月前法人契約相談可。 詳細閲覧ありがとうございます。最新の空室の確認、内覧のご予約はメール・電話にてお問い合わせください。 文京区の賃貸マンション・賃貸アパートはベステックスにおまかせください! 問合番号 3461 更新日 2015/04/20 このお部屋について
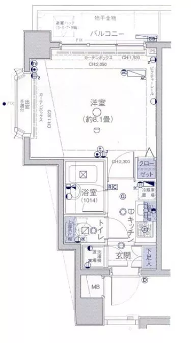
【パレステュディオ小石川後楽園】7階部分の1Kタイプ22.06㎡のお部屋の紹介です。
8.1帖の洋室は十分な広さで綺麗な形をしております。
嬉しい南向き♪
出窓付きの2面採光で明るい室内です。
≪設備≫エアコン バス・トイレ別 洗浄機能付便座 グリル付システムキッチン(ガス2口) 浴室換気乾燥機 調光機能付ブラケット 洗濯機置場室内 。24時間オンライン機械管理システム、TVモニター付オートロック付でセキュリティ体制は充実しております。是非、一度ご覧下さい。掲載情報について
※随時更新を心がけておりますが、掲載している物件が万が一成約している場合もございますので予めご了承下さいませ。
※駐車場・駐輪場・バイク置場の空き状況についてはお問い合わせ下さい。
※ペット飼育やSOHO利用・楽器使用の可否に関しては、建物の管理規約で可能になっていても、お部屋の所有者様によって禁止の場合もございますので御注意下さい。
詳細はメールやお電話にてスタッフまでご相談下さい。パレステュディオ小石川後楽園の周辺地図
似た条件の物件
最近見た物件











