パレステュディオ文京湯島ドルチェ ~分譲賃貸マンション~
♥お気に入りパレステュディオ文京湯島ドルチェ ~分譲賃貸マンション~
♥お気に入り






パレステュディオ文京湯島ドルチェ 5階
賃料 要問合せ(※) 管理費 敷金 1ヶ月 ペット飼育時敷金2ヶ月 礼金 1ヶ月 間取り 1K 面積 21.54㎡ 階数 5階 状態 要問合せ(※) 入居 7/5退去予定 更新料 新賃料の1ヶ月分 諸費用 取引態様 媒介 設備 24時間受付管理、オートロック、駐輪場有、宅配BOX、BS・CS、CATV、光ファイバー、インターネット対応、専用ゴミ置場、防犯カメラ、TVモニター付インターホン、分譲賃貸、東京大学自転車圏、ペット可、エレベーター、2階以上、二面採光、コンロ二口以上、ガスキッチン、システムキッチン、エアコン、フローリング、バストイレ別、室内洗濯機置場、収納、角部屋、礼金1以下、敷金なし、法人契約相談可 物件概要
物件名 パレステュディオ文京湯島ドルチェ 所在地 東京都文京区湯島3-7-2 最寄駅 東京メトロ千代田線 湯島駅 徒歩5分
JR山手線 秋葉原駅 徒歩10分
東京メトロ銀座線 末広町駅 徒歩4分
学区 構造 RC 階数 地上7階建て 築年月 2004年10月 駐車場 無 駐輪場有 備考 【パレステュディオ文京湯島ドルチェ】の賃貸マンション情報! ※写真は同マンション他タイプのものになります。 詳細閲覧ありがとうございます。最新の空室の確認、内覧のご予約はメール・電話にてお問い合わせください。 文京区の賃貸マンション・賃貸アパートはベステックスにおまかせください! 問合番号 741396 更新日 2020/06/22 このお部屋について
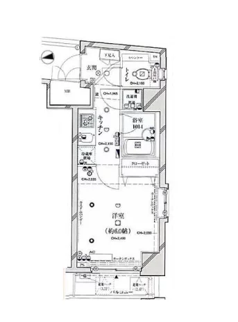
文京区湯島3丁目にある高級分譲マンション【パレステュディオ文京湯島ドルチェ】の5階、1Kタイプのお部屋のご紹介です。
居室は約6帖の広さがあり、角部屋ならではの二面採光になっております。
フローリング素材になっているのでお掃除が簡単で、二面採光により通気性が良く換気に役立ちます。また、外からの光を多く取り込めるため室内に明るい印象を与えます。
大きめのクローゼットが備わっているので、衣類や家具家電の収納に活用することでお部屋を大きく使うことができます。
キッチンは2口ガスコンロが備わったシステムキッチンになっており快適に料理をすることができ、グリルも付いているので料理の幅が広がるでしょう。
料理好きの方にもオススメのキッチン設備です!
バス・トイレは別々になっており、独立空間が確保されております。
浴室には洗面台や浴室乾燥暖房機能が備わっており、トイレには温水洗浄便座を完備!
オートロックや防犯カメラ、カラーモニター付きインターホンと充実の防犯設備で快適な生活をサポートします。
設備充実の分譲賃貸マンションを是非一度ご覧ください!
※写真は同物件の別部屋のものです。掲載情報について
※随時更新を心がけておりますが、掲載している物件が万が一成約している場合もございますので予めご了承下さいませ。
※駐車場・駐輪場・バイク置場の空き状況についてはお問い合わせ下さい。
※ペット飼育やSOHO利用・楽器使用の可否に関しては、建物の管理規約で可能になっていても、お部屋の所有者様によって禁止の場合もございますので御注意下さい。
詳細はメールやお電話にてスタッフまでご相談下さい。パレステュディオ文京湯島ドルチェの周辺地図
似た条件の物件
最近見た物件












