アドリーム文京動坂~分譲賃貸マンション~
♥お気に入りアドリーム文京動坂~分譲賃貸マンション~
♥お気に入り









アドリーム文京動坂 13階
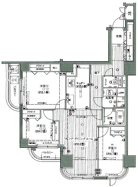
賃料 要問合せ(※) 管理費 敷金 1ヶ月 礼金 1.5ヶ月 間取り 3LDK 面積 70.09㎡ 階数 13階 状態 要問合せ(※) 入居 2月23日退去予定 更新料 新賃料の1.0ヶ月 諸費用 取引態様 媒介 設備 オートロック、駐輪場有、宅配BOX、コンビニ近、CATV、光ファイバー、インターネット対応、専用ゴミ置場、防犯カメラ、分譲賃貸、エレベーター、千駄木小学校エリア、10階以上、眺望良好、南向き、日当たり良好、ガスキッチン、システムキッチン、エアコン、独立洗面台、追い焚き機能、浴室乾燥、バストイレ別、室内洗濯機置場、収納、角部屋、礼金1以下、2人入居可、法人契約相談可 物件概要
物件名 アドリーム文京動坂 所在地 東京都文京区千駄木4-13-6 最寄駅 JR山手線 田端駅 徒歩10分
JR山手線 西日暮里駅 徒歩12分
東京メトロ千代田線 千駄木駅 徒歩12分
学区 千駄木小学校 構造 SRC 階数 地上14階建て 築年月 1997年01月 駐車場 備考 【アドリーム文京動坂】の賃貸マンション情報♪ 詳細閲覧ありがとうございます。最新の空室の確認、内覧のご予約はメール・電話にてお問い合わせください。 文京区の賃貸マンション・賃貸アパートはベステックスにおまかせください! 問合番号 2449 更新日 2015/10/20 このお部屋について
13階3LDKタイプのお部屋のご紹介です♪ ☆1997年築の鉄骨鉄筋コンクリート造14階建て分譲賃貸マンションです♪ ☆オートロック完備で安心セキュリティ♪ ☆管理人常駐(日勤)で管理体制良好です♪ ☆宅配BOX完備で不在時にもお荷物のお預かりが可能で大変便利です♪
☆室内設備も分譲賃貸マンションならではの充実設備です♪ ☆是非一度、ご内覧下さい♪掲載情報について
※随時更新を心がけておりますが、掲載している物件が万が一成約している場合もございますので予めご了承下さいませ。
※駐車場・駐輪場・バイク置場の空き状況についてはお問い合わせ下さい。
※ペット飼育やSOHO利用・楽器使用の可否に関しては、建物の管理規約で可能になっていても、お部屋の所有者様によって禁止の場合もございますので御注意下さい。
詳細はメールやお電話にてスタッフまでご相談下さい。アドリーム文京動坂の周辺地図
最近見た物件












