文京区の賃貸マンション探しはベステックスで
お気に入り
件
閲覧履歴
件
お気に入り
件
|
閲覧履歴
件
物件検索
エリアで探す
駅で探す
学区で探す
キーワードで探す
物件一覧
カテゴリー別
東京大学徒歩圏
新築
分譲賃貸
礼金なし
ペット可
デザイナーズ
事務所・SOHO
文京区住所別
文京区全物件
千駄木
根津
谷根千
向丘
西片
弥生
本郷
湯島
本駒込
千石
白山
小石川
春日
後楽
大塚
目白台
関口
音羽
小日向
水道
区外の住所別
台東区
千代田区
豊島区
新宿区
北区
荒川区
地下鉄の駅別
新大塚駅
茗荷谷駅
後楽園駅
本郷三丁目駅
御茶ノ水駅
湯島駅
根津駅
千駄木駅
東大前駅
本駒込駅
春日駅
白山駅
千石駅
江戸川橋駅
護国寺駅
神楽坂駅
早稲田駅
JRの駅別
御茶ノ水駅
水道橋駅
飯田橋駅
大塚駅
巣鴨駅
駒込駅
田端駅
西日暮里駅
日暮里駅
鶯谷駅
上野駅
御徒町駅
秋葉原駅
路線別
東京メトロ丸ノ内線
東京メトロ南北線
東京メトロ千代田線
東京メトロ有楽町線
都営大江戸線
都営三田線
JR山手線
JR中央線(快速)
小学校区別
誠之小学校
窪町小学校
昭和小学校
千駄木小学校
本郷小学校
礫川小学校
柳町小学校
指ケ谷小学校
林町小学校
明化小学校
青柳小学校
関口台町小学校
小日向台町小学校
金富小学校
大塚小学校
湯島小学校
根津小学校
汐見小学校
駒本小学校
駕籠町小学校
間取り別
1R
1K
1DK
1LDK
2DK
2LDK
3LDK
法人向け
店舗
事務所
法人契約相談可
店舗・会社紹介
店舗のご案内
シェアハウス事業
会社概要
社員紹介
ベステックスとは
契約の流れ
お客様の声
よくある質問
来店しない部屋探し
LINE公式アカウント
メールマガジン
仲介業者様へ
不動産オーナー様へ
採用情報
サイトマップ
文京区ガイド
文京くらしナビ
賃貸物件探し虎の巻
駅別の住みやすさ
お気に入り
お問い合わせ
お気に入り
LINE
電話
メール
HOME
文京区
千駄木
アドリーム文京動坂
3階3LDKのお部屋
アドリーム文京動坂~分譲賃貸マンション~
♥
お気に入り
アドリーム文京動坂~分譲賃貸マンション~
♥
お気に入り
/
アドリーム文京動坂 3階
賃料
要問合せ(※)
管理費
敷金
2ヶ月
礼金
1ヶ月
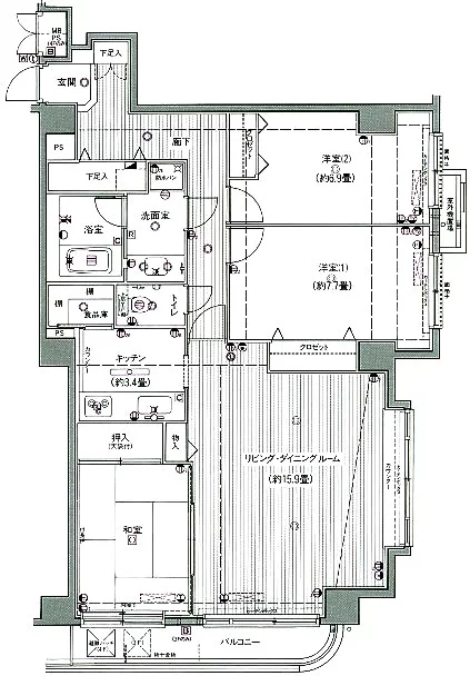
間取り
3LDK
面積
95.24㎡
階数
3階
状態
要問合せ(※)
入居
相談
更新料
新賃料の1.0ヶ月
諸費用
取引態様
媒介
設備
オートロック、駐輪場有、宅配BOX、コンビニ近、CATV、光ファイバー、インターネット対応、専用ゴミ置場、分譲賃貸、エレベーター、千駄木小学校エリア、2階以上、南向き、ガスキッチン、システムキッチン、エアコン、フローリング、独立洗面台、追い焚き機能、浴室乾燥、バストイレ別、室内洗濯機置場、収納、角部屋、礼金1以下、2人入居可、法人契約相談可
物件概要
物件名
アドリーム文京動坂
所在地
東京都文京区千駄木4-13-6
最寄駅
JR山手線 田端駅 徒歩10分
JR山手線 西日暮里駅 徒歩12分
東京メトロ千代田線 千駄木駅 徒歩12分
学区
千駄木小学校
構造
SRC
階数
地上14階建て
築年月
1997年01月
駐車場
備考
【アドリーム文京動坂】の賃貸マンション情報♪ 詳細閲覧ありがとうございます。最新の空室の確認、内覧のご予約はメール・電話にてお問い合わせください。 文京区の賃貸マンション・賃貸アパートはベステックスにおまかせください!
問合番号
2448
更新日
2013/05/19
このお部屋について
3階3LDKタイプのお部屋のご紹介です♪ ☆1997年築の鉄骨鉄筋コンクリート造14階建て分譲賃貸マンションです♪ ☆オートロック完備で安心セキュリティ♪ ☆管理人常駐(日勤)で管理体制良好です♪ ☆宅配BOX完備で不在時にもお荷物のお預かりが可能で大変便利です♪
☆室内設備も分譲賃貸マンションならではの充実設備です♪ ☆是非一度、ご内覧下さい♪
募集中の部屋一覧
物件詳細
|
マップ
間取図
所在階
間取り
面積
賃料
管理費
敷金
礼金
12階
2LDK
55.82㎡
198,000円
12,000円
1ヶ月
1ヶ月
所在階
12階
面積
55.82㎡
間取り
2LDK
賃料
198,000円
管理費
12,000円
敷金
1ヶ月
礼金
1ヶ月
♥
お問い合わせ
♥
お気に入り
お問い合わせ
アドリーム文京動坂のお問い合わせはベステックスまで
アドリーム文京動坂の
お問い合わせは
ベステックスまで
LINEでお問い合わせはこちら
掲載情報について
※随時更新を心がけておりますが、掲載している物件が万が一成約している場合もございますので予めご了承下さいませ。
※駐車場・駐輪場・バイク置場の空き状況についてはお問い合わせ下さい。
※ペット飼育やSOHO利用・楽器使用の可否に関しては、建物の管理規約で可能になっていても、お部屋の所有者様によって禁止の場合もございますので御注意下さい。
詳細はメールやお電話にてスタッフまでご相談下さい。
アドリーム文京動坂の周辺地図
似た条件の物件
本駒込Kマンション
最寄駅:
田端駅 徒歩10分
間取り:
3LDK
賃料 :
245,000円
物件の詳細を見る
最近見た物件
物件を探す
人気のキーワード
物件をもっと見る
賃料
10万円以下
10~15万円
15万~20万円
20万円以上
間取り
1R・1K
1DK~1LDK
2K~2LDK
3K以上
築年数
新築
5年以内
10年以内
20年以内
最寄駅から徒歩
1分以内
5分以内
10分以内
15分以内
人気のエリア
千駄木エリア
根津エリア
湯島エリア
本郷エリア
白山エリア
東大生に人気
本郷エリア
向丘エリア
西片エリア
本駒込エリア
千駄木エリア
人気の駅
本郷三丁目駅
茗荷谷駅
御茶ノ水駅
江戸川橋駅
東大前駅
人気の小学校区
誠之小学校区
窪町小学校区
昭和小学校区
千駄木小学校区
本郷小学校区