キーワード検索

シティハウス文京湯島の賃貸情報

   05/26

シティハウス文京湯島の賃貸情報


  05/26
1/10

スタッフのコメント

スタッフ画像 瓦海
シティハウス文京湯島は、令和3年8月築の分譲マンションで、湯島小学区に位置する優雅で新しい住まいです。周辺は高級分譲マンションが建ち並び、贅沢な住環境を提供します。徒歩1分にはスーパーサミットがあり、ドン・キホーテやハナマサプラス、業務用スーパーも利用可能。交通アクセスも抜群で、東京メトロ千代田線「湯島」駅まで徒歩5分、銀座線「末広町」駅まで徒歩7分、丸ノ内線「御茶ノ水」駅やJR総武中央線「御茶ノ水」駅まで徒歩9分と便利。築浅の新築感と充実の生活インフラが調和し、都心で上質な生活を楽しむにふさわしい物件です。

LINEでお問い合わせはこちら
LINE問合せ
シティハウス文京湯島の総合評価
総合評価
4.8
セキュリティ ★★★★★   築年数 ★★★★★  
建物設備 ★★★★☆   駅徒歩 ★★★★★  
セキュリティ:    ★★★★★
建物設備: ★★★★☆
築年数: ★★★★★
駅徒歩: ★★★★★

この物件について

物件名シティハウス文京湯島
住所文京区湯島2-22-13
最寄駅 東京メトロ千代田線 湯島駅 徒歩5分
東京メトロ銀座線 末広町駅 徒歩7分
JR中央・総武線 御茶ノ水駅 徒歩9分
学区湯島小学校
構造RC 総階数地上14階建て 
賃料 管理費
間取り 面積
駐車場 築年月2021年08月
問合番号20211030 更新日2025/05/26
設備オートロック、バイク置場有、法人契約相談可、駐車場有、駐輪場有、宅配BOX、コンビニ近、光ファイバー、インターネット対応、専用ゴミ置場、防犯カメラ、TVモニター付インターホン、分譲賃貸、東京大学徒歩圏、東京大学自転車圏、エレベーター、湯島小学校エリア
備考 
詳細閲覧ありがとうございます。最新の空室の確認、内覧のご予約はメール・電話にてお問い合わせください。 文京区の賃貸マンション・賃貸アパートはベステックスにおまかせください!

物件概要

文京区湯島2丁目の賃貸物件【シティハウス文京湯島】のご紹介です!

2021年8月竣工!鉄筋コンクリート造14階建ての建物でございます。
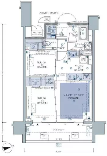
ファミリー向け2LDKタイプをご用意しております!


~交通アクセス~

東京メトロ千代田線『湯島』駅 徒歩5分
東京メトロ銀座線『末広町』駅 徒歩7分
東京メトロ丸ノ内線・総武中央線『御茶ノ水』駅 徒歩9分

複数路線徒歩圏内で都心部へのアクセス良好!
都心部勤務の方におすすめの好立地です♪


~周辺環境~

スーパーが複数店舗利用可!
2022年2月にはサミット湯島天神店新規オープン!
湯島・上のエリアは飲食店が充実です!


~物件設備~

オートロック、宅配ボックス、エレベーター完備、駐輪所、バイク置き場、機械式駐車場完備!


~お部屋設備~

お部屋はオールフローリングでお手入れらくらく♪
エアコン、独立洗面台、B・T別、室内洗濯機置き場完備!
お風呂は追い炊き機能、浴室乾燥機完備の快適空間♪
キッチンはカウンターキッチンorL字のカウンターキッチン!


~不動産のプロから一言~

分譲マンションのご紹介!
物件周辺の湯島天神エリアは高級な分譲マンションが多数。
全部屋2LDKのファミリータイプでして住みやすさ十分!


【シティハウス文京湯島】
ぜひ一度お問合せくださいませ!!
LINEでお問い合わせはこちら
LINE問合せ

掲載情報について

※随時更新を心がけておりますが、掲載している物件が万が一成約している場合もございますので予めご了承下さいませ。
※駐車場・駐輪場・バイク置場の空き状況についてはお問い合わせ下さい。
※ペット飼育やSOHO利用・楽器使用の可否に関しては、建物の管理規約で可能になっていても、お部屋の所有者様によって禁止の場合もございますので御注意下さい。
詳細はメールやお電話にてスタッフまでご相談下さい。

シティハウス文京湯島の周辺地図

シティハウス文京湯島のご成約済み部屋一覧

所在階 間取り 面積 賃料 管理費 敷金 礼金 お問い合わせ
3階 2LDK 54.76㎡ 契約済み 所在階***
間取り2LDK
面積54.76㎡
管理費***
敷金***
礼金***
契約済み
3階 2LDK 55.49㎡ 契約済み 所在階***
間取り2LDK
面積55.49㎡
管理費***
敷金***
礼金***
契約済み
7階 2LDK 54.55㎡ 契約済み 所在階***
間取り2LDK
面積54.55㎡
管理費***
敷金***
礼金***
契約済み
8階 2LDK 54.55㎡ 契約済み 所在階***
間取り2LDK
面積54.55㎡
管理費***
敷金***
礼金***
契約済み
その他(全4件)を全て表示する

似た条件の物件

最近見た物件