BrilliaTower上野池之端 ~ブリリアタワー上野池之端~の賃貸情報
05/15BrilliaTower上野池之端 ~ブリリアタワー上野池之端~の賃貸情報
05/15
この物件について
| 物件名 | BrilliaTower上野池之端 ~ブリリアタワー上野池之端~ | ||
|---|---|---|---|
| 住所 | 東京都台東区池之端1-4-33 | ||
| 最寄駅 |
東京メトロ千代田線 湯島駅 徒歩4分 東京メトロ銀座線 上野広小路駅 徒歩8分 都営大江戸線 上野御徒町駅 徒歩8分 |
||
| 学区 | |||
| 構造 | RC | 総階数 | 地上36階建て 地下1階 |
| 賃料 | 340,000円 | 管理費 | 15,000円 |
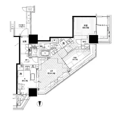
| 間取り | 2SLDK | 面積 | 62.88㎡ |
| 駐車場 | 有(要確認) | 築年月 | 2019年06月 |
| 問合番号 | 143000 | 更新日 | 2026/05/15 |
| 設備 | タワーマンション、フロントサービス有、オートロック、バイク置場有、法人契約相談可、駐車場有、駐輪場有、宅配BOX、コンビニ近、光ファイバー、インターネット対応、専用ゴミ置場、防犯カメラ、TVモニター付インターホン、分譲賃貸、東京大学徒歩圏、エレベーター、2階以上、コンロ二口以上、ガスキッチン、システムキッチン、エアコン、フローリング、独立洗面台、追い焚き機能、浴室乾燥、ウォシュレット、24時間換気システム、バストイレ別、室内洗濯機置場、収納 | ||
| 備考 | 詳細閲覧ありがとうございます。最新の空室の確認、内覧のご予約はメール・電話にてお問い合わせください。 文京区の賃貸マンション・賃貸アパートはベステックスにおまかせください! | ||
物件概要
【BrilliaTower上野池之端(ブリリアタワー上野池之端)】をご紹介します♪
地上36階・地下1階・塔屋2階建て、鉄筋コンクリート造・鉄骨造の建物で、総戸数はなんと361戸!池之端エリアのタワーマンションの中でも最大規模です!
敷地内には緑もあしらわれ、都心のタワーマンションながらも落ち着いた印象も与えてくれます。
共用設備がやはり充実!(※一部サービス有料・規約有り)
・コンシェルジュカウンター(1F)
・フィットネスルーム(1F)
・ゴルフブース(1F)
・ゲストルーム(18F)
・パークビューラウンジ(18F)
・スカイラウンジ(35F)
・スカイテラス(屋上)
・車寄せ(地下1F)
・ゴミ捨て場(各フロア)
・レンタサイクル
・カーシェアリング
パークビューラウンジからは上野恩賜公園・不忍池を、スカイラウンジとスカイテラスからは東京都心の景色を一望できます♪
防犯面ではオートロックや防犯カメラ、TVモニター付きインターホンはもちろん、高級感ある内廊下やディンプルキーダブルロックなど、安心の仕様!
室内に於いても、ディスポーザーや浄水器付きのシステムキッチンや温水洗浄便座、追焚機能付き浴室など、こちらも充実しています!
また、利用可能な駅・路線が多いのも魅力のひとつ!最寄り駅の東京メトロ千代田線『湯島駅』までは徒歩4分。ターミナルのJR『上野駅』や京成線『京成上野駅』も徒歩10分圏内にあるので、出張や旅行など、飛行機・新幹線を利用時のアクセスも良好です♪
徒歩圏内にはスーパーマーケット『マルエツプチ』やコンビニ『ミニストップ』『ファミリーマート』も揃っています!
人気・グレードいずれも間違いの無い物件です!是非お問い合わせください!
地上36階・地下1階・塔屋2階建て、鉄筋コンクリート造・鉄骨造の建物で、総戸数はなんと361戸!池之端エリアのタワーマンションの中でも最大規模です!
敷地内には緑もあしらわれ、都心のタワーマンションながらも落ち着いた印象も与えてくれます。
共用設備がやはり充実!(※一部サービス有料・規約有り)
・コンシェルジュカウンター(1F)
・フィットネスルーム(1F)
・ゴルフブース(1F)
・ゲストルーム(18F)
・パークビューラウンジ(18F)
・スカイラウンジ(35F)
・スカイテラス(屋上)
・車寄せ(地下1F)
・ゴミ捨て場(各フロア)
・レンタサイクル
・カーシェアリング
パークビューラウンジからは上野恩賜公園・不忍池を、スカイラウンジとスカイテラスからは東京都心の景色を一望できます♪
防犯面ではオートロックや防犯カメラ、TVモニター付きインターホンはもちろん、高級感ある内廊下やディンプルキーダブルロックなど、安心の仕様!
室内に於いても、ディスポーザーや浄水器付きのシステムキッチンや温水洗浄便座、追焚機能付き浴室など、こちらも充実しています!
また、利用可能な駅・路線が多いのも魅力のひとつ!最寄り駅の東京メトロ千代田線『湯島駅』までは徒歩4分。ターミナルのJR『上野駅』や京成線『京成上野駅』も徒歩10分圏内にあるので、出張や旅行など、飛行機・新幹線を利用時のアクセスも良好です♪
徒歩圏内にはスーパーマーケット『マルエツプチ』やコンビニ『ミニストップ』『ファミリーマート』も揃っています!
人気・グレードいずれも間違いの無い物件です!是非お問い合わせください!
掲載情報について
※随時更新を心がけておりますが、掲載している物件が万が一成約している場合もございますので予めご了承下さいませ。
※駐車場・駐輪場・バイク置場の空き状況についてはお問い合わせ下さい。
※ペット飼育やSOHO利用・楽器使用の可否に関しては、建物の管理規約で可能になっていても、お部屋の所有者様によって禁止の場合もございますので御注意下さい。
詳細はメールやお電話にてスタッフまでご相談下さい。
※駐車場・駐輪場・バイク置場の空き状況についてはお問い合わせ下さい。
※ペット飼育やSOHO利用・楽器使用の可否に関しては、建物の管理規約で可能になっていても、お部屋の所有者様によって禁止の場合もございますので御注意下さい。
詳細はメールやお電話にてスタッフまでご相談下さい。
BrilliaTower上野池之端 ~ブリリアタワー上野池之端~の周辺地図
BrilliaTower上野池之端 ~ブリリアタワー上野池之端~のご成約済み部屋一覧
| 所在階 | 間取り | 面積 | 賃料 | 管理費 | 敷金 | 礼金 | お問い合わせ | ||||
|---|---|---|---|---|---|---|---|---|---|---|---|
| 3階 | 1LDK | 41.21㎡ | … | … | … | … | 契約済み | 所在階*** 間取り1LDK |
面積41.21㎡ 管理費*** |
敷金*** 礼金*** |
契約済み |
| 3階 | 2LDK | 54.95㎡ | … | … | … | … | 契約済み | 所在階*** 間取り2LDK |
面積54.95㎡ 管理費*** |
敷金*** 礼金*** |
契約済み |
| 3階 | 2LDK | 67.65㎡ | … | … | … | … | 契約済み | 所在階*** 間取り2LDK |
面積67.65㎡ 管理費*** |
敷金*** 礼金*** |
契約済み |
| 3階 | 2LDK | 58.63㎡ | … | … | … | … | 契約済み | 所在階*** 間取り2LDK |
面積58.63㎡ 管理費*** |
敷金*** 礼金*** |
契約済み |
| 4階 | 1LDK | 41.21㎡ | … | … | … | … | 契約済み | 所在階*** 間取り1LDK |
面積41.21㎡ 管理費*** |
敷金*** 礼金*** |
契約済み |
| 4階 | 2LDK | 67.65㎡ | … | … | … | … | 契約済み | 所在階*** 間取り2LDK |
面積67.65㎡ 管理費*** |
敷金*** 礼金*** |
契約済み |
| 4階 | 2LDK | 54.95㎡ | … | … | … | … | 契約済み | 所在階*** 間取り2LDK |
面積54.95㎡ 管理費*** |
敷金*** 礼金*** |
契約済み |
| 4階 | 2LDK | 62.53㎡ | … | … | … | … | 契約済み | 所在階*** 間取り2LDK |
面積62.53㎡ 管理費*** |
敷金*** 礼金*** |
契約済み |
| 4階 | 2LDK | 58.63㎡ | … | … | … | … | 契約済み | 所在階*** 間取り2LDK |
面積58.63㎡ 管理費*** |
敷金*** 礼金*** |
契約済み |
| 5階 | 1LDK | 41.21㎡ | … | … | … | … | 契約済み | 所在階*** 間取り1LDK |
面積41.21㎡ 管理費*** |
敷金*** 礼金*** |
契約済み |
| 5階 | 2LDK | 67.65㎡ | … | … | … | … | 契約済み | 所在階*** 間取り2LDK |
面積67.65㎡ 管理費*** |
敷金*** 礼金*** |
契約済み |
| 5階 | 2LDK | 54.95㎡ | … | … | … | … | 契約済み | 所在階*** 間取り2LDK |
面積54.95㎡ 管理費*** |
敷金*** 礼金*** |
契約済み |
| 5階 | 2LDK | 58.63㎡ | … | … | … | … | 契約済み | 所在階*** 間取り2LDK |
面積58.63㎡ 管理費*** |
敷金*** 礼金*** |
契約済み |
| 6階 | 1LDK | 41.21㎡ | … | … | … | … | 契約済み | 所在階*** 間取り1LDK |
面積41.21㎡ 管理費*** |
敷金*** 礼金*** |
契約済み |
| 6階 | 2LDK | 67.65㎡ | … | … | … | … | 契約済み | 所在階*** 間取り2LDK |
面積67.65㎡ 管理費*** |
敷金*** 礼金*** |
契約済み |
| 6階 | 2LDK | 54.95㎡ | … | … | … | … | 契約済み | 所在階*** 間取り2LDK |
面積54.95㎡ 管理費*** |
敷金*** 礼金*** |
契約済み |
| 6階 | 2LDK | 58.63㎡ | … | … | … | … | 契約済み | 所在階*** 間取り2LDK |
面積58.63㎡ 管理費*** |
敷金*** 礼金*** |
契約済み |
| 7階 | 1LDK | 41.21㎡ | … | … | … | … | 契約済み | 所在階*** 間取り1LDK |
面積41.21㎡ 管理費*** |
敷金*** 礼金*** |
契約済み |
| 7階 | 2LDK | 54.95㎡ | … | … | … | … | 契約済み | 所在階*** 間取り2LDK |
面積54.95㎡ 管理費*** |
敷金*** 礼金*** |
契約済み |
| 7階 | 2LDK | 58.63㎡ | … | … | … | … | 契約済み | 所在階*** 間取り2LDK |
面積58.63㎡ 管理費*** |
敷金*** 礼金*** |
契約済み |
| 8階 | 1LDK | 41.21㎡ | … | … | … | … | 契約済み | 所在階*** 間取り1LDK |
面積41.21㎡ 管理費*** |
敷金*** 礼金*** |
契約済み |
| 9階 | 1LDK | 41.21㎡ | … | … | … | … | 契約済み | 所在階*** 間取り1LDK |
面積41.21㎡ 管理費*** |
敷金*** 礼金*** |
契約済み |
| 10階 | 1LDK | 41.21㎡ | … | … | … | … | 契約済み | 所在階*** 間取り1LDK |
面積41.21㎡ 管理費*** |
敷金*** 礼金*** |
契約済み |
| 11階 | 1LDK | 41.21㎡ | … | … | … | … | 契約済み | 所在階*** 間取り1LDK |
面積41.21㎡ 管理費*** |
敷金*** 礼金*** |
契約済み |
| 11階 | 2LDK | 61.94㎡ | … | … | … | … | 契約済み | 所在階*** 間取り2LDK |
面積61.94㎡ 管理費*** |
敷金*** 礼金*** |
契約済み |
| 12階 | 1LDK | 41.21㎡ | … | … | … | … | 契約済み | 所在階*** 間取り1LDK |
面積41.21㎡ 管理費*** |
敷金*** 礼金*** |
契約済み |
| 12階 | 2LDK | 61.94㎡ | … | … | … | … | 契約済み | 所在階*** 間取り2LDK |
面積61.94㎡ 管理費*** |
敷金*** 礼金*** |
契約済み |
| 13階 | 1LDK | 41.21㎡ | … | … | … | … | 契約済み | 所在階*** 間取り1LDK |
面積41.21㎡ 管理費*** |
敷金*** 礼金*** |
契約済み |
| 13階 | 2LDK | 83.22㎡ | … | … | … | … | 契約済み | 所在階*** 間取り2LDK |
面積83.22㎡ 管理費*** |
敷金*** 礼金*** |
契約済み |
| 14階 | 1LDK | 41.21㎡ | … | … | … | … | 契約済み | 所在階*** 間取り1LDK |
面積41.21㎡ 管理費*** |
敷金*** 礼金*** |
契約済み |
| 15階 | 1LDK | 41.21㎡ | … | … | … | … | 契約済み | 所在階*** 間取り1LDK |
面積41.21㎡ 管理費*** |
敷金*** 礼金*** |
契約済み |
| 16階 | 1LDK | 41.21㎡ | … | … | … | … | 契約済み | 所在階*** 間取り1LDK |
面積41.21㎡ 管理費*** |
敷金*** 礼金*** |
契約済み |
| 16階 | 2LDK | 62.53㎡ | … | … | … | … | 契約済み | 所在階*** 間取り2LDK |
面積62.53㎡ 管理費*** |
敷金*** 礼金*** |
契約済み |
| 16階 | 2LDK | 83.79㎡ | … | … | … | … | 契約済み | 所在階*** 間取り2LDK |
面積83.79㎡ 管理費*** |
敷金*** 礼金*** |
契約済み |
| 17階 | 1LDK | 41.21㎡ | … | … | … | … | 契約済み | 所在階*** 間取り1LDK |
面積41.21㎡ 管理費*** |
敷金*** 礼金*** |
契約済み |
| 19階 | 1LDK | 41.21㎡ | … | … | … | … | 契約済み | 所在階*** 間取り1LDK |
面積41.21㎡ 管理費*** |
敷金*** 礼金*** |
契約済み |
| 19階 | 2LDK | 83.79㎡ | … | … | … | … | 契約済み | 所在階*** 間取り2LDK |
面積83.79㎡ 管理費*** |
敷金*** 礼金*** |
契約済み |
| 19階 | 2LDK | 58.63㎡ | … | … | … | … | 契約済み | 所在階*** 間取り2LDK |
面積58.63㎡ 管理費*** |
敷金*** 礼金*** |
契約済み |
| 23階 | 2LDK | 67.65㎡ | … | … | … | … | 契約済み | 所在階*** 間取り2LDK |
面積67.65㎡ 管理費*** |
敷金*** 礼金*** |
契約済み |
| 24階 | 1LDK | 40.64㎡ | … | … | … | … | 契約済み | 所在階*** 間取り1LDK |
面積40.64㎡ 管理費*** |
敷金*** 礼金*** |
契約済み |
| 24階 | 2LDK | 67.65㎡ | … | … | … | … | 契約済み | 所在階*** 間取り2LDK |
面積67.65㎡ 管理費*** |
敷金*** 礼金*** |
契約済み |
| 28階 | 2LDK | 58.63㎡ | … | … | … | … | 契約済み | 所在階*** 間取り2LDK |
面積58.63㎡ 管理費*** |
敷金*** 礼金*** |
契約済み |
| 31階 | 2LDK | 73.23㎡ | … | … | … | … | 契約済み | 所在階*** 間取り2LDK |
面積73.23㎡ 管理費*** |
敷金*** 礼金*** |
契約済み |
| 32階 | 2LDK | 67.65㎡ | … | … | … | … | 契約済み | 所在階*** 間取り2LDK |
面積67.65㎡ 管理費*** |
敷金*** 礼金*** |
契約済み |
| 33階 | 2LDK | 78.56㎡ | … | … | … | … | 契約済み | 所在階*** 間取り2LDK |
面積78.56㎡ 管理費*** |
敷金*** 礼金*** |
契約済み |




















共用設備も非常に充実しており、スカイラウンジやフィットネス、コンシェルジュサービスなど、タワーマンションならではの贅沢な暮らしが叶います。売買・賃貸ともに募集が出ると即座に成約となる屈指の人気物件です。検討の際はスピード勝負となりますので、ぜひお早めにチェックしてください◎