グランフォース入谷の賃貸情報
03/04グランフォース入谷の賃貸情報
03/04
この物件について
| 物件名 | グランフォース入谷 | ||
|---|---|---|---|
| 住所 | 東京都台東区竜泉1-24-4 | ||
| 最寄駅 | 
                                東京メトロ日比谷線 入谷駅 徒歩6分 東京メトロ日比谷線 三ノ輪駅 徒歩9分 JR山手線 鶯谷駅 徒歩15分  | 
                        
                        ||
| 学区 | |||
| 構造 | RC | 総階数 | 地上10階建て | 
| 賃料 | 管理費 | ||
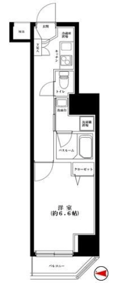
| 間取り | 面積 | ||
| 駐車場 | 築年月 | 2016年10月 | |
| 問合番号 | 334840 | 更新日 | 2019/03/04 | 
| 設備 | オートロック、バイク置場有、駐輪場有、宅配BOX、コンビニ近、BS・CS、光ファイバー、インターネット対応、専用ゴミ置場、防犯カメラ、TVモニター付インターホン、分譲賃貸、ペット可、エレベーター、眺望良好、日当たり良好、コンロ二口以上、ガスキッチン、システムキッチン、エアコン、フローリング、独立洗面台、浴室乾燥、ウォシュレット、バストイレ別、室内洗濯機置場、収納、法人契約相談可 | ||
| 備考 |   詳細閲覧ありがとうございます。最新の空室の確認、内覧のご予約はメール・電話にてお問い合わせください。 文京区の賃貸マンション・賃貸アパートはベステックスにおまかせください!  | ||
物件概要
                希少なペット可!
築浅物件【グランフォース入谷】
東京メトロ日比谷線「入谷」徒歩6分!
東京都台東区竜泉1丁目、静かな住宅街です。
東京メトロ日比谷線「入谷」徒歩6分で、
「上野」「銀座」「日比谷」「六本木」「恵比寿」など、
都内の主要駅は直通です!
他にも東京メトロ日比谷線「三ノ輪」徒歩9分。
JR山手線・京浜東北線「鶯谷駅」徒歩15分♪
建物の構造は鉄筋コンクリート造。
耐震性や遮音性に優れております☆
地上10階建て、築年月は2016年10月の築浅物件☆
デザイナーズマンションで、外観もスタイリッシュ!
分譲賃貸ならでは!そんな設備が揃ってます☆
オートロック・防犯カメラ完備で、セキュリティ良好!
宅配ボックスあり、荷物の受け取りスムーズ♪
もちろんエレベーター完備☆
敷地内ごみ置場があ理、ゴミ出しも負担になりません。
室内設備は…
玄関ディンプルキーダブルロックでピッキングの心配なし!
テレビモニター付インターホンだから、
来訪者の顔を確認してから玄関を開けられます!
女性の方にはとってもオススメ!
もちろんエアコン完備で1年中快適♪
独立洗面台、ウォシュレット、浴室換気乾燥機など、
充実の水回り設備が揃ってます!
フローリングだから、お掃除も簡単♪
インターネット、光ファイバーご利用可能☆(別途契約)
BS、CSも視聴可能(別途契約)となってます!
周辺環境は…
コンビニ「ミニストップ」徒歩3分。
「セブンイレブン」徒歩6分。
スーパー「肉のハナマサ」徒歩5分。
スーパーやコンビニが近く、生活しやすい環境です☆
築浅物件【グランフォース入谷】
お気軽に、ベステックスまで、お問い合わせください
台東区の賃貸も、ベステックス
            築浅物件【グランフォース入谷】
東京メトロ日比谷線「入谷」徒歩6分!
東京都台東区竜泉1丁目、静かな住宅街です。
東京メトロ日比谷線「入谷」徒歩6分で、
「上野」「銀座」「日比谷」「六本木」「恵比寿」など、
都内の主要駅は直通です!
他にも東京メトロ日比谷線「三ノ輪」徒歩9分。
JR山手線・京浜東北線「鶯谷駅」徒歩15分♪
建物の構造は鉄筋コンクリート造。
耐震性や遮音性に優れております☆
地上10階建て、築年月は2016年10月の築浅物件☆
デザイナーズマンションで、外観もスタイリッシュ!
分譲賃貸ならでは!そんな設備が揃ってます☆
オートロック・防犯カメラ完備で、セキュリティ良好!
宅配ボックスあり、荷物の受け取りスムーズ♪
もちろんエレベーター完備☆
敷地内ごみ置場があ理、ゴミ出しも負担になりません。
室内設備は…
玄関ディンプルキーダブルロックでピッキングの心配なし!
テレビモニター付インターホンだから、
来訪者の顔を確認してから玄関を開けられます!
女性の方にはとってもオススメ!
もちろんエアコン完備で1年中快適♪
独立洗面台、ウォシュレット、浴室換気乾燥機など、
充実の水回り設備が揃ってます!
フローリングだから、お掃除も簡単♪
インターネット、光ファイバーご利用可能☆(別途契約)
BS、CSも視聴可能(別途契約)となってます!
周辺環境は…
コンビニ「ミニストップ」徒歩3分。
「セブンイレブン」徒歩6分。
スーパー「肉のハナマサ」徒歩5分。
スーパーやコンビニが近く、生活しやすい環境です☆
築浅物件【グランフォース入谷】
お気軽に、ベステックスまで、お問い合わせください
台東区の賃貸も、ベステックス
掲載情報について
    ※随時更新を心がけておりますが、掲載している物件が万が一成約している場合もございますので予めご了承下さいませ。
※駐車場・駐輪場・バイク置場の空き状況についてはお問い合わせ下さい。
※ペット飼育やSOHO利用・楽器使用の可否に関しては、建物の管理規約で可能になっていても、お部屋の所有者様によって禁止の場合もございますので御注意下さい。
詳細はメールやお電話にてスタッフまでご相談下さい。
※駐車場・駐輪場・バイク置場の空き状況についてはお問い合わせ下さい。
※ペット飼育やSOHO利用・楽器使用の可否に関しては、建物の管理規約で可能になっていても、お部屋の所有者様によって禁止の場合もございますので御注意下さい。
詳細はメールやお電話にてスタッフまでご相談下さい。










