キーワード検索

プラウド文京千駄木の賃貸情報

   05/04

プラウド文京千駄木の賃貸情報


  05/04
1/10

スタッフのコメント

スタッフ画像 瓦海
人気の谷根千エリアに位置する高級分譲マンション、プラウド文京千駄木。2017年完成のこの物件は、2LDKから3LDKの間取りが揃い、主にご夫婦やファミリー向けに人気です。最寄りは東京メトロ千代田線の千駄木駅から徒歩5分で、根津駅や東大前駅も徒歩圏内にあります。大手町駅も10分以内でアクセス可能。日本医科大学付属病院や東京大学も近く、大学や病院関係者にも便利な立地です。周囲には自然豊かなスポットやショッピングエリアも充実し、休日も楽しめます。建物の設備は高級仕様で、オートロックや防犯カメラ、床暖房や食洗機など充実した生活を提供。賃料は高めですが、その価値は充分にあります。

LINEでお問い合わせはこちら
LINE問合せ
プラウド文京千駄木の総合評価
総合評価
3
セキュリティ ☆☆☆☆☆   築年数 ☆☆☆☆☆  
建物設備 ☆☆☆☆☆   駅徒歩 ☆☆☆☆☆  
セキュリティ:    ☆☆☆☆☆
建物設備: ☆☆☆☆☆
築年数: ☆☆☆☆☆
駅徒歩: ☆☆☆☆☆

この物件について

物件名プラウド文京千駄木
住所東京都文京区千駄木2-1-11
最寄駅 東京メトロ千代田線 千駄木駅 徒歩5分
東京メトロ千代田線 根津駅 徒歩6分
東京メトロ南北線 東大前駅 徒歩9分
学区汐見小学校
構造RC 総階数地上14階建て 
賃料 管理費
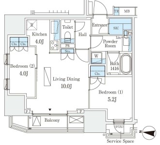
間取り 面積
駐車場要確認 築年月2017年10月
問合番号531000 更新日2025/05/04
設備オートロック、法人契約相談可、駐車場有、駐輪場有、宅配BOX、コンビニ近、インターネット対応、専用ゴミ置場、防犯カメラ、TVモニター付インターホン、分譲賃貸、東京大学自転車圏、エレベーター、汐見小学校エリア、コンロ二口以上、ガスキッチン、システムキッチン、エアコン、フローリング、独立洗面台、追い焚き機能、浴室乾燥、ウォシュレット、24時間換気システム、バストイレ別、室内洗濯機置場、床暖房、収納
備考 
詳細閲覧ありがとうございます。最新の空室の確認、内覧のご予約はメール・電話にてお問い合わせください。 文京区の賃貸マンション・賃貸アパートはベステックスにおまかせください!

物件概要

人気の【谷根千】
文京区千駄木2丁目の分譲・賃貸マンション
【プラウド文京千駄木】

2017年10月に完成した高級分譲マンションです♪
2LDKを中心に1LDK~3LDKのプランがあり、
主にご夫婦・カップルやファミリー向けの物件と言えます。

最寄り駅は東京メトロ千代田線【千駄木駅】徒歩5分。
同じく千代田線の【根津駅】も徒歩6分の距離にあり、
東京メトロ南北線【東大前駅】も徒歩9分と、
徒歩10分圏内で2路線3駅が利用可能です!

大手企業が集中する【大手町駅】も10分以内!

物件から西側に坂を登ると【日本医科大学付属病院】も、
すぐそこです!
【東京大学】も徒歩・自転車圏内です!
大学・病院関係者の方にもオススメです!

【根津神社】【上野恩賜公園】など自然ゆたかなスポット、
【谷中銀座商店街】などお買い物・散策スポットも揃い、
休日のお出掛けも楽しめます♪

【文京花の五大まつり】のひとつ、
【根津神社】の【文京つつじまつり】は、
毎年4月~5月頃に開催されます。

魅惑のカフェ、食べ歩きやテイクアウト可の飲食店も多く、
これも、親しみやすい【谷根千エリア】ならでは。
物件から信号を渡った所には【根津のたいやき】があり、
こちらは平日でも行列ができるほどの人気店!

建物の設備も、高級分譲仕様ということでいずれも充実!
オートロック、TVモニター付きインターホン、
防犯カメラなどの防犯設備も完備!
専用ゴミ置き場や宅配ボックスなど、
今や生活に欠かせない便利な設備も揃っています♪

室内の設備も言うに及ばず、
床暖房やディスポーザー、ミストサウナ、食洗機など、
ハイグレードで快適な生活をサポートしてくれます!
高級分譲マンションですから賃料相場は高くなりますが、
その分、内容については申し分ありません!

是非、ベステックスまで、お問い合わせください!
LINEでお問い合わせはこちら
LINE問合せ

掲載情報について

※随時更新を心がけておりますが、掲載している物件が万が一成約している場合もございますので予めご了承下さいませ。
※駐車場・駐輪場・バイク置場の空き状況についてはお問い合わせ下さい。
※ペット飼育やSOHO利用・楽器使用の可否に関しては、建物の管理規約で可能になっていても、お部屋の所有者様によって禁止の場合もございますので御注意下さい。
詳細はメールやお電話にてスタッフまでご相談下さい。

プラウド文京千駄木の周辺地図

プラウド文京千駄木のご成約済み部屋一覧

所在階 間取り 面積 賃料 管理費 敷金 礼金 お問い合わせ
3階 1LDK 54.13㎡ 契約済み 所在階***
間取り1LDK
面積54.13㎡
管理費***
敷金***
礼金***
契約済み
5階 2LDK 60.19㎡ 契約済み 所在階***
間取り2LDK
面積60.19㎡
管理費***
敷金***
礼金***
契約済み
5階 2LDK 54.13㎡ 契約済み 所在階***
間取り2LDK
面積54.13㎡
管理費***
敷金***
礼金***
契約済み
10階 2LDK 60.19㎡ 契約済み 所在階***
間取り2LDK
面積60.19㎡
管理費***
敷金***
礼金***
契約済み
13階 2LDK 54.13㎡ 契約済み 所在階***
間取り2LDK
面積54.13㎡
管理費***
敷金***
礼金***
契約済み
その他(全5件)を全て表示する

似た条件の物件

最近見た物件