パレスアイランド本駒込の賃貸情報
04/11パレスアイランド本駒込の賃貸情報
04/11
パレスアイランド本駒込の総合評価
総合評価
3
3
| セキュリティ | : |
築年数 | : |
| 建物設備 | : |
駅徒歩 | : |
| セキュリティ: | |
| 建物設備: | |
| 築年数: | |
| 駅徒歩: |
この物件について
| 物件名 | パレスアイランド本駒込 | ||
|---|---|---|---|
| 住所 | 東京都文京区本駒込1-25-18 | ||
| 最寄駅 |
東京メトロ南北線 本駒込駅 徒歩5分 都営三田線 千石駅 徒歩7分 |
||
| 学区 | 駒本小学校 | ||
| 構造 | 鉄骨 | 総階数 | 地上3階建て |
| 賃料 | 管理費 | ||
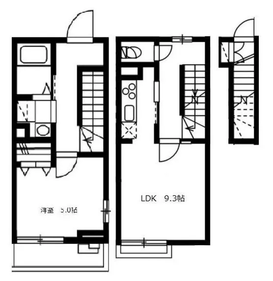
| 間取り | 面積 | ||
| 駐車場 | 築年月 | 2018年06月 | |
| 問合番号 | 207000 | 更新日 | 2018/04/11 |
| 設備 | オートロック、駐輪場有、宅配BOX、コンビニ近、BS・CS、インターネット対応、防犯カメラ、TVモニター付インターホン、東京大学自転車圏、駒本小学校エリア、コンロ二口以上、ガスキッチン、システムキッチン、エアコン、フローリング、独立洗面台、浴室乾燥、ウォシュレット、24時間換気システム、バストイレ別、室内洗濯機置場、収納、保証会社利用、法人契約相談可 | ||
| 備考 | 詳細閲覧ありがとうございます。最新の空室の確認、内覧のご予約はメール・電話にてお問い合わせください。 文京区の賃貸マンション・賃貸アパートはベステックスにおまかせください! | ||
物件概要
2018年6月築。
文京区本駒込1丁目の落ち着いた住宅街に御座います【パレスアイランド本駒込】のご紹介です。
鉄骨造3階建て、1R・1Kと1LDKからなる全9戸の物件です。
大通りから離れた場所にあり、閑静な環境です。
最寄り駅の東京メトロ南北線「本駒込駅」徒歩5分。
都営三田線「千石駅」も徒歩10分圏内にあり、
複数の路線が利用できます!
スーパーやコンビニは徒歩圏内にありますが、
少し足を伸ばせば『文京グリーンコート』があり、
ここには郵便局やドラッグストア、クリニックなどもあり、
非常に便利な施設です♪
入口にはオートロックが完備され、
室内のTVモニター付きインターホンとの連携で、
訪問者をチェックできます!
敷地内に防犯カメラがあり、セキュリティも安心です!
1階の住戸には、窓にシャッターも付いています!
宅配ボックスも完備され、忙しい方には嬉しいですね♪
窓にはペアガラスを採用!
遮音・遮熱効果に優れています!
インターネット(Wi-Fi)も無料で24時間使い放題♪
充実した仕様の【パレスアイランド本駒込】
是非、ベステックスまでお問い合わせください!
文京区本駒込1丁目の落ち着いた住宅街に御座います【パレスアイランド本駒込】のご紹介です。
鉄骨造3階建て、1R・1Kと1LDKからなる全9戸の物件です。
大通りから離れた場所にあり、閑静な環境です。
最寄り駅の東京メトロ南北線「本駒込駅」徒歩5分。
都営三田線「千石駅」も徒歩10分圏内にあり、
複数の路線が利用できます!
スーパーやコンビニは徒歩圏内にありますが、
少し足を伸ばせば『文京グリーンコート』があり、
ここには郵便局やドラッグストア、クリニックなどもあり、
非常に便利な施設です♪
入口にはオートロックが完備され、
室内のTVモニター付きインターホンとの連携で、
訪問者をチェックできます!
敷地内に防犯カメラがあり、セキュリティも安心です!
1階の住戸には、窓にシャッターも付いています!
宅配ボックスも完備され、忙しい方には嬉しいですね♪
窓にはペアガラスを採用!
遮音・遮熱効果に優れています!
インターネット(Wi-Fi)も無料で24時間使い放題♪
充実した仕様の【パレスアイランド本駒込】
是非、ベステックスまでお問い合わせください!
掲載情報について
※随時更新を心がけておりますが、掲載している物件が万が一成約している場合もございますので予めご了承下さいませ。
※駐車場・駐輪場・バイク置場の空き状況についてはお問い合わせ下さい。
※ペット飼育やSOHO利用・楽器使用の可否に関しては、建物の管理規約で可能になっていても、お部屋の所有者様によって禁止の場合もございますので御注意下さい。
詳細はメールやお電話にてスタッフまでご相談下さい。
※駐車場・駐輪場・バイク置場の空き状況についてはお問い合わせ下さい。
※ペット飼育やSOHO利用・楽器使用の可否に関しては、建物の管理規約で可能になっていても、お部屋の所有者様によって禁止の場合もございますので御注意下さい。
詳細はメールやお電話にてスタッフまでご相談下さい。
パレスアイランド本駒込の周辺地図
パレスアイランド本駒込のご成約済み部屋一覧
| 所在階 | 間取り | 面積 | 賃料 | 管理費 | 敷金 | 礼金 | お問い合わせ | ||||
|---|---|---|---|---|---|---|---|---|---|---|---|
| 1階 | 1K | 26.08㎡ | … | … | … | … | 契約済み | 所在階*** 間取り1K |
面積26.08㎡ 管理費*** |
敷金*** 礼金*** |
契約済み |
| 1階 | 1K | 22.77㎡ | … | … | … | … | 契約済み | 所在階*** 間取り1K |
面積22.77㎡ 管理費*** |
敷金*** 礼金*** |
契約済み |
| 1階 | 1K | 19.46㎡ | … | … | … | … | 契約済み | 所在階*** 間取り1K |
面積19.46㎡ 管理費*** |
敷金*** 礼金*** |
契約済み |
| 1階 | 1K | 18.83㎡ | … | … | … | … | 契約済み | 所在階*** 間取り1K |
面積18.83㎡ 管理費*** |
敷金*** 礼金*** |
契約済み |
| 2階 | 1K | 23.38㎡ | … | … | … | … | 契約済み | 所在階*** 間取り1K |
面積23.38㎡ 管理費*** |
敷金*** 礼金*** |
契約済み |
| 2階 | 1LDK | 44.71㎡ | … | … | … | … | 契約済み | 所在階*** 間取り1LDK |
面積44.71㎡ 管理費*** |
敷金*** 礼金*** |
契約済み |
| 2階 | 1LDK | 50.08㎡ | … | … | … | … | 契約済み | 所在階*** 間取り1LDK |
面積50.08㎡ 管理費*** |
敷金*** 礼金*** |
契約済み |
| 2階 | 1R | 27.32㎡ | … | … | … | … | 契約済み | 所在階*** 間取り1R |
面積27.32㎡ 管理費*** |
敷金*** 礼金*** |
契約済み |
| 3階 | 1R | 31.88㎡ | … | … | … | … | 契約済み | 所在階*** 間取り1R |
面積31.88㎡ 管理費*** |
敷金*** 礼金*** |
契約済み |




