ミハス千駄木の賃貸情報
10/10ミハス千駄木の賃貸情報
10/10
ミハス千駄木の総合評価
総合評価
3
3
| セキュリティ | : |
築年数 | : |
| 建物設備 | : |
駅徒歩 | : |
| セキュリティ: | |
| 建物設備: | |
| 築年数: | |
| 駅徒歩: |
この物件について
| 物件名 | ミハス千駄木 | ||
|---|---|---|---|
| 住所 | 東京都文京区千駄木5-18-4 | ||
| 最寄駅 |
東京メトロ千代田線 千駄木駅 徒歩5分 東京メトロ南北線 本駒込駅 徒歩10分 |
||
| 学区 | 千駄木小学校 | ||
| 構造 | 鉄骨 | 総階数 | 地上3階建て |
| 賃料 | 管理費 | ||
| 間取り | 面積 | ||
| 駐車場 | 築年月 | 2018年03月 | |
| 問合番号 | 323000 | 更新日 | 2022/10/10 |
| 設備 | 駐輪場有、宅配BOX、コンビニ近、BS・CS、インターネット対応、TVモニター付インターホン、東京大学自転車圏、千駄木小学校エリア、コンロ二口以上、ガスキッチン、システムキッチン、エアコン、フローリング、独立洗面台、浴室乾燥、ウォシュレット、バストイレ別、室内洗濯機置場、収納、保証会社利用、法人契約相談可 | ||
| 備考 | 詳細閲覧ありがとうございます。最新の空室の確認、内覧のご予約はメール・電話にてお問い合わせください。 文京区の賃貸マンション・賃貸アパートはベステックスにおまかせください! | ||
物件概要
文京区千駄木5丁目、
閑静な高台の住宅地に建つおしゃれアパート
【ミハス千駄木】のご紹介です!
インターネット常時接続無料(Wi-Fi付)の嬉しい物件です♪
最寄駅は徒歩5分!
東京メトロ千代田線の千駄木駅。
東京メトロ南北線の本駒込駅は徒歩10分です。
千駄木駅からは、緩やかな坂を登って、
住宅地に入って行ったところにあります。
とても落ち着いた住環境で、
近くにはコンビニやスーパーなども揃っています!
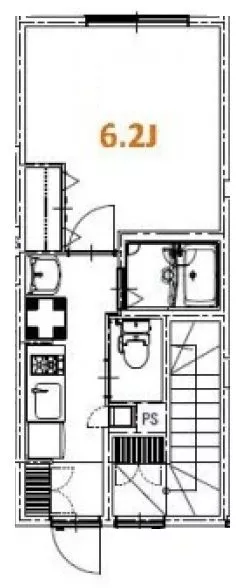
建物は鉄骨造3階建て、総戸数は18戸。
1階部分に1Kタイプが9部屋、
2・3階はメゾネットタイプの2DKが9部屋です。
室内の設備は、2口ガスコンロのシステムキッチン、
独立洗面台・シャワートイレ・浴室乾燥機、
追焚機能(2DKのみ)…など、各種揃った充実の内容!
共用部には宅配ボックスがあり、
防犯設備はカラーTVモニター付きインターホンと、
ダブルロックの玄関扉など、こちらも充実しており安心です♪
文京区なら、任せて安心、ベステックス!
お気軽にお問い合わせください!
閑静な高台の住宅地に建つおしゃれアパート
【ミハス千駄木】のご紹介です!
インターネット常時接続無料(Wi-Fi付)の嬉しい物件です♪
最寄駅は徒歩5分!
東京メトロ千代田線の千駄木駅。
東京メトロ南北線の本駒込駅は徒歩10分です。
千駄木駅からは、緩やかな坂を登って、
住宅地に入って行ったところにあります。
とても落ち着いた住環境で、
近くにはコンビニやスーパーなども揃っています!
建物は鉄骨造3階建て、総戸数は18戸。
1階部分に1Kタイプが9部屋、
2・3階はメゾネットタイプの2DKが9部屋です。
室内の設備は、2口ガスコンロのシステムキッチン、
独立洗面台・シャワートイレ・浴室乾燥機、
追焚機能(2DKのみ)…など、各種揃った充実の内容!
共用部には宅配ボックスがあり、
防犯設備はカラーTVモニター付きインターホンと、
ダブルロックの玄関扉など、こちらも充実しており安心です♪
文京区なら、任せて安心、ベステックス!
お気軽にお問い合わせください!
掲載情報について
※随時更新を心がけておりますが、掲載している物件が万が一成約している場合もございますので予めご了承下さいませ。
※駐車場・駐輪場・バイク置場の空き状況についてはお問い合わせ下さい。
※ペット飼育やSOHO利用・楽器使用の可否に関しては、建物の管理規約で可能になっていても、お部屋の所有者様によって禁止の場合もございますので御注意下さい。
詳細はメールやお電話にてスタッフまでご相談下さい。
※駐車場・駐輪場・バイク置場の空き状況についてはお問い合わせ下さい。
※ペット飼育やSOHO利用・楽器使用の可否に関しては、建物の管理規約で可能になっていても、お部屋の所有者様によって禁止の場合もございますので御注意下さい。
詳細はメールやお電話にてスタッフまでご相談下さい。
ミハス千駄木の周辺地図
ミハス千駄木のご成約済み部屋一覧
| 所在階 | 間取り | 面積 | 賃料 | 管理費 | 敷金 | 礼金 | お問い合わせ | ||||
|---|---|---|---|---|---|---|---|---|---|---|---|
| 1階 | 1K | 21.53㎡ | … | … | … | … | 契約済み | 所在階*** 間取り1K |
面積21.53㎡ 管理費*** |
敷金*** 礼金*** |
契約済み |
| 1階 | 1K | 21.53㎡ | … | … | … | … | 契約済み | 所在階*** 間取り1K |
面積21.53㎡ 管理費*** |
敷金*** 礼金*** |
契約済み |
| 1階 | 1K | 21.53㎡ | … | … | … | … | 契約済み | 所在階*** 間取り1K |
面積21.53㎡ 管理費*** |
敷金*** 礼金*** |
契約済み |
| 1階 | 1K | 21.53㎡ | … | … | … | … | 契約済み | 所在階*** 間取り1K |
面積21.53㎡ 管理費*** |
敷金*** 礼金*** |
契約済み |
| 1階 | 1K | 21.53㎡ | … | … | … | … | 契約済み | 所在階*** 間取り1K |
面積21.53㎡ 管理費*** |
敷金*** 礼金*** |
契約済み |
| 1階 | 1K | 21.53㎡ | … | … | … | … | 契約済み | 所在階*** 間取り1K |
面積21.53㎡ 管理費*** |
敷金*** 礼金*** |
契約済み |
| 1階 | 1K | 21.52㎡ | … | … | … | … | 契約済み | 所在階*** 間取り1K |
面積21.52㎡ 管理費*** |
敷金*** 礼金*** |
契約済み |
| 1階 | 1K | 20.49㎡ | … | … | … | … | 契約済み | 所在階*** 間取り1K |
面積20.49㎡ 管理費*** |
敷金*** 礼金*** |
契約済み |
| 1階 | 1K | 21.11㎡ | … | … | … | … | 契約済み | 所在階*** 間取り1K |
面積21.11㎡ 管理費*** |
敷金*** 礼金*** |
契約済み |
| 2階 | 2DK | 47.61㎡ | … | … | … | … | 契約済み | 所在階*** 間取り2DK |
面積47.61㎡ 管理費*** |
敷金*** 礼金*** |
契約済み |
| 2階 | 2DK | 46.28㎡ | … | … | … | … | 契約済み | 所在階*** 間取り2DK |
面積46.28㎡ 管理費*** |
敷金*** 礼金*** |
契約済み |
| 2階 | 2DK | 48.44㎡ | … | … | … | … | 契約済み | 所在階*** 間取り2DK |
面積48.44㎡ 管理費*** |
敷金*** 礼金*** |
契約済み |
| 2階 | 2DK | 48.02㎡ | … | … | … | … | 契約済み | 所在階*** 間取り2DK |
面積48.02㎡ 管理費*** |
敷金*** 礼金*** |
契約済み |
| 2階 | 2DK | 47.20㎡ | … | … | … | … | 契約済み | 所在階*** 間取り2DK |
面積47.20㎡ 管理費*** |
敷金*** 礼金*** |
契約済み |
| 2階 | 2DK | 47.20㎡ | … | … | … | … | 契約済み | 所在階*** 間取り2DK |
面積47.20㎡ 管理費*** |
敷金*** 礼金*** |
契約済み |
| 2階 | 2DK | 47.20㎡ | … | … | … | … | 契約済み | 所在階*** 間取り2DK |
面積47.20㎡ 管理費*** |
敷金*** 礼金*** |
契約済み |
| 2階 | 2DK | 47.20㎡ | … | … | … | … | 契約済み | 所在階*** 間取り2DK |
面積47.20㎡ 管理費*** |
敷金*** 礼金*** |
契約済み |
| 2階 | 2DK | 47.20㎡ | … | … | … | … | 契約済み | 所在階*** 間取り2DK |
面積47.20㎡ 管理費*** |
敷金*** 礼金*** |
契約済み |






