高橋ビルの賃貸情報
12/01高橋ビルの賃貸情報
12/01
高橋ビルの総合評価
総合評価
3
3
| セキュリティ | : |
築年数 | : |
| 建物設備 | : |
駅徒歩 | : |
| セキュリティ: | |
| 建物設備: | |
| 築年数: | |
| 駅徒歩: |
この物件について
| 物件名 | 高橋ビル | ||
|---|---|---|---|
| 住所 | 東京都台東区入谷2-13-4 | ||
| 最寄駅 |
東京メトロ日比谷線 入谷駅 徒歩7分 JR山手線 鶯谷駅 徒歩15分 つくばエクスプレス 浅草駅 徒歩15分 |
||
| 学区 | |||
| 構造 | 鉄骨 | 総階数 | 地上5階建て |
| 賃料 | 63,000円 | 管理費 | 0円 |
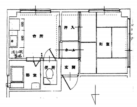
| 間取り | 1DK | 面積 | 25.00㎡ |
| 駐車場 | 築年月 | 1980年01月 | |
| 問合番号 | 900714 | 更新日 | 2017/12/01 |
| 設備 | 駐輪場有、コンビニ近、2階以上、ガスコンロ設置可、エアコン、バストイレ別、室内洗濯機置場、収納、法人契約相談可 | ||
| 備考 | 詳細閲覧ありがとうございます。最新の空室の確認、内覧のご予約はメール・電話にてお問い合わせください。 文京区の賃貸マンション・賃貸アパートはベステックスにおまかせください! | ||
物件概要
東京都台東区入谷2丁目にございます、【高橋ビル】をご紹介いたします。
1980年築、地上5階建て、鉄骨造の賃貸マンションです。
物件へのアクセスは、東京メトロ日比谷線「入谷駅」徒歩7分。JR山手線「鶯谷駅」徒歩15分、つくばエクスプレス「浅草駅」徒歩13分です。複数路線利用可能ですのでお出かけに便利。
物件共用部には駐輪場ございますので、都内を自転車で颯爽と走ることができます♪通勤通学にもよいですね☆
室内設備は、エアコン完備、室内洗濯機置き場、バストイレ別、押入ございます。
物件の周辺には、コンビニ「セブンイレブン」や「ファミリーマート」があり何かと便利♪
スーパーは、「まいばすけっと入谷2丁目店」が徒歩2分圏内!スーパーが近いので生活しやすい住環境です☆飲食店も多数あり、つけめん屋の「入谷大勝軒」などございます。
入谷でお手頃価格のお部屋をお探しの方はお見逃しなく♪
【高橋ビル】はいかがでしたでしょうか。
お問い合わせは、ベステックスまでご連絡下さい!
1980年築、地上5階建て、鉄骨造の賃貸マンションです。
物件へのアクセスは、東京メトロ日比谷線「入谷駅」徒歩7分。JR山手線「鶯谷駅」徒歩15分、つくばエクスプレス「浅草駅」徒歩13分です。複数路線利用可能ですのでお出かけに便利。
物件共用部には駐輪場ございますので、都内を自転車で颯爽と走ることができます♪通勤通学にもよいですね☆
室内設備は、エアコン完備、室内洗濯機置き場、バストイレ別、押入ございます。
物件の周辺には、コンビニ「セブンイレブン」や「ファミリーマート」があり何かと便利♪
スーパーは、「まいばすけっと入谷2丁目店」が徒歩2分圏内!スーパーが近いので生活しやすい住環境です☆飲食店も多数あり、つけめん屋の「入谷大勝軒」などございます。
入谷でお手頃価格のお部屋をお探しの方はお見逃しなく♪
【高橋ビル】はいかがでしたでしょうか。
お問い合わせは、ベステックスまでご連絡下さい!
掲載情報について
※随時更新を心がけておりますが、掲載している物件が万が一成約している場合もございますので予めご了承下さいませ。
※駐車場・駐輪場・バイク置場の空き状況についてはお問い合わせ下さい。
※ペット飼育やSOHO利用・楽器使用の可否に関しては、建物の管理規約で可能になっていても、お部屋の所有者様によって禁止の場合もございますので御注意下さい。
詳細はメールやお電話にてスタッフまでご相談下さい。
※駐車場・駐輪場・バイク置場の空き状況についてはお問い合わせ下さい。
※ペット飼育やSOHO利用・楽器使用の可否に関しては、建物の管理規約で可能になっていても、お部屋の所有者様によって禁止の場合もございますので御注意下さい。
詳細はメールやお電話にてスタッフまでご相談下さい。
高橋ビルの周辺地図
高橋ビルのご成約済み部屋一覧
| 所在階 | 間取り | 面積 | 賃料 | 管理費 | 敷金 | 礼金 | お問い合わせ | ||||
|---|---|---|---|---|---|---|---|---|---|---|---|
| 2階 | 1DK | 25.00㎡ | … | … | … | … | 契約済み | 所在階*** 間取り1DK |
面積25.00㎡ 管理費*** |
敷金*** 礼金*** |
契約済み |




