パレステュディオ新御徒町の賃貸情報
09/28パレステュディオ新御徒町の賃貸情報
09/28
パレステュディオ新御徒町の総合評価
総合評価
3
3
| セキュリティ | : |
築年数 | : |
| 建物設備 | : |
駅徒歩 | : |
| セキュリティ: | |
| 建物設備: | |
| 築年数: | |
| 駅徒歩: |
この物件について
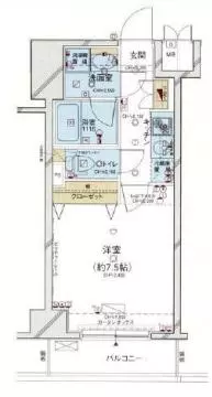
| 物件名 | パレステュディオ新御徒町 | ||
|---|---|---|---|
| 住所 | 東京都台東区東上野1-27-4 | ||
| 最寄駅 |
都営大江戸線 新御徒町駅 徒歩2分 つくばエクスプレス 新御徒町駅 徒歩2分 |
||
| 学区 | |||
| 構造 | RC | 総階数 | 地上10階建て |
| 賃料 | 管理費 | ||
| 間取り | 面積 | ||
| 駐車場 | 築年月 | 2007年03月 | |
| 問合番号 | 14410 | 更新日 | 2022/09/28 |
| 設備 | オートロック、法人契約相談可、駐輪場有、宅配BOX、コンビニ近、BS・CS、CATV、光ファイバー、専用ゴミ置場、防犯カメラ、TVモニター付インターホン、分譲賃貸、エレベーター、コンロ二口以上、ガスキッチン、システムキッチン、エアコン、フローリング、浴室乾燥、バストイレ別、室内洗濯機置場、収納 | ||
| 備考 | 詳細閲覧ありがとうございます。最新の空室の確認、内覧のご予約はメール・電話にてお問い合わせください。 文京区の賃貸マンション・賃貸アパートはベステックスにおまかせください! | ||
物件概要
台東区東上野1丁目にございます分譲マンション【パレステュディオ新御徒町】の賃貸のご紹介です。
2007年3月築、鉄筋コンクリート造10階建ての分譲マンションです。
最寄駅まで徒歩2分の駅近マンション。
利便性に優れただけでなく、分譲仕様らしい充実した設備を揃えております。
マンション共用部には、オートロックに加えて、防犯カメラ、TVモニター付きインターホンを完備しております。
安心のセキュリティ。
また、不在時でも荷物を受け取れる、便利な宅配ボックスや、専用ゴミ置場も完備されておりますので、お一人暮らしに最適な設備が揃っております!
敷地内には駐輪場も完備されておりますので、ご通勤やご通学にもご活用いただけます。
自転車利用で生活の範囲が広がります。
物件内は、光ファイバーやCATVなどが完備されておりますので、ご入居後すぐに快適なネット環境などがお使い頂けます!
お部屋の設備も充実しております。
お気軽にお問い合わせください。
≪パレステュディオ新御徒町の交通アクセス≫
駅近で利便性にも優れた立地です。
マンションの最寄駅は、都営大江戸線、つくばエクスプレスの【新御徒町駅】で徒歩2分となっております。
また、東京メトロ銀座線【稲荷町駅】やJR山手線【御徒町駅】も徒歩圏内というアクセスの良い好立地となっております。
複数路線が利用可能で、通勤、通学に便利です。
≪パレステュディオ新御徒町の周辺環境≫
周辺環境も充実!
マンションの周辺には多数の飲食店などがあります。
もちろん、24時間営業の便利なコンビニもありますので、遅い時間帯のちょっとしたお買い物にも困りません。
また、あるとうれしいドラッグストアもございますので生活しやすい環境が揃っております!
利便性に優れた立地の分譲マンション【パレステュディオ新御徒町】
是非一度ご覧下さい。
2007年3月築、鉄筋コンクリート造10階建ての分譲マンションです。
最寄駅まで徒歩2分の駅近マンション。
利便性に優れただけでなく、分譲仕様らしい充実した設備を揃えております。
マンション共用部には、オートロックに加えて、防犯カメラ、TVモニター付きインターホンを完備しております。
安心のセキュリティ。
また、不在時でも荷物を受け取れる、便利な宅配ボックスや、専用ゴミ置場も完備されておりますので、お一人暮らしに最適な設備が揃っております!
敷地内には駐輪場も完備されておりますので、ご通勤やご通学にもご活用いただけます。
自転車利用で生活の範囲が広がります。
物件内は、光ファイバーやCATVなどが完備されておりますので、ご入居後すぐに快適なネット環境などがお使い頂けます!
お部屋の設備も充実しております。
お気軽にお問い合わせください。
≪パレステュディオ新御徒町の交通アクセス≫
駅近で利便性にも優れた立地です。
マンションの最寄駅は、都営大江戸線、つくばエクスプレスの【新御徒町駅】で徒歩2分となっております。
また、東京メトロ銀座線【稲荷町駅】やJR山手線【御徒町駅】も徒歩圏内というアクセスの良い好立地となっております。
複数路線が利用可能で、通勤、通学に便利です。
≪パレステュディオ新御徒町の周辺環境≫
周辺環境も充実!
マンションの周辺には多数の飲食店などがあります。
もちろん、24時間営業の便利なコンビニもありますので、遅い時間帯のちょっとしたお買い物にも困りません。
また、あるとうれしいドラッグストアもございますので生活しやすい環境が揃っております!
利便性に優れた立地の分譲マンション【パレステュディオ新御徒町】
是非一度ご覧下さい。
掲載情報について
※随時更新を心がけておりますが、掲載している物件が万が一成約している場合もございますので予めご了承下さいませ。
※駐車場・駐輪場・バイク置場の空き状況についてはお問い合わせ下さい。
※ペット飼育やSOHO利用・楽器使用の可否に関しては、建物の管理規約で可能になっていても、お部屋の所有者様によって禁止の場合もございますので御注意下さい。
詳細はメールやお電話にてスタッフまでご相談下さい。
※駐車場・駐輪場・バイク置場の空き状況についてはお問い合わせ下さい。
※ペット飼育やSOHO利用・楽器使用の可否に関しては、建物の管理規約で可能になっていても、お部屋の所有者様によって禁止の場合もございますので御注意下さい。
詳細はメールやお電話にてスタッフまでご相談下さい。
パレステュディオ新御徒町の周辺地図
パレステュディオ新御徒町のご成約済み部屋一覧
| 所在階 | 間取り | 面積 | 賃料 | 管理費 | 敷金 | 礼金 | お問い合わせ | ||||
|---|---|---|---|---|---|---|---|---|---|---|---|
| 3階 | 1K | 25.46㎡ | … | … | … | … | 契約済み | 所在階*** 間取り1K |
面積25.46㎡ 管理費*** |
敷金*** 礼金*** |
契約済み |
| 8階 | 2LDK | 53.60㎡ | … | … | … | … | 契約済み | 所在階*** 間取り2LDK |
面積53.60㎡ 管理費*** |
敷金*** 礼金*** |
契約済み |















