レゴキューブの賃貸情報
11/11レゴキューブの賃貸情報
11/11
レゴキューブの総合評価
総合評価
3
3
| セキュリティ | : |
築年数 | : |
| 建物設備 | : |
駅徒歩 | : |
| セキュリティ: | |
| 建物設備: | |
| 築年数: | |
| 駅徒歩: |
この物件について
| 物件名 | レゴキューブ | ||
|---|---|---|---|
| 住所 | 東京都台東区入谷2-15-1 | ||
| 最寄駅 |
東京メトロ日比谷線 入谷駅 徒歩5分 つくばエクスプレス 浅草駅 徒歩13分 JR山手線 鶯谷駅 徒歩15分 |
||
| 学区 | |||
| 構造 | RC | 総階数 | 地上4階建て |
| 賃料 | 管理費 | ||
| 間取り | 面積 | ||
| 駐車場 | 築年月 | 2014年07月 | |
| 問合番号 | 17111113 | 更新日 | 2017/11/11 |
| 設備 | オートロック、駐輪場有、宅配BOX、コンビニ近、インターネット対応、TVモニター付インターホン、分譲賃貸、ガスキッチン、システムキッチン、エアコン、フローリング、独立洗面台、浴室乾燥、バストイレ別、室内洗濯機置場、洗濯機置場あり、収納、法人契約相談可 | ||
| 備考 | 都市ガス 詳細閲覧ありがとうございます。最新の空室の確認、内覧のご予約はメール・電話にてお問い合わせください。 文京区の賃貸マンション・賃貸アパートはベステックスにおまかせください! | ||
物件概要
台東区入谷2丁目の分譲賃貸マンション【レゴキューブ】のご紹介です!
建物は2014年(平成26年)7月完成。
耐久性・耐火性・防音性等に優れた鉄筋コンクリート(RC)造の地上4階建てとなっています。
共用部分には関係者以外の立ち入りをシャットアウトするオートロックが完備されていますので女性も安心です♪
人気設備の宅配ボックスもございますので、不在時でも荷物を預かることができて便利です。
直接荷物を受け取ることに抵抗のあるかたはセキュリティとしてもお使い頂けます!
また、敷地内には駐輪場がございます。通勤通学やお買いものに便利です♪(要空き確認)
【レゴキューブ】は周辺環境にも注目です!
交通面は【東京メトロ日比谷線・入谷駅徒歩5分】【つくばエクスプレス・浅草駅徒歩13分】【JR山手線・鶯谷駅徒歩15分】となっています。徒歩圏内で3路線使える便利立地です♪
近隣には、コンビニをはじめ、スーパーやドラッグストア等のお店がございますので、お買いものに便利です♪
少しでも気になった方はお気軽にお問い合わせください!
建物は2014年(平成26年)7月完成。
耐久性・耐火性・防音性等に優れた鉄筋コンクリート(RC)造の地上4階建てとなっています。
共用部分には関係者以外の立ち入りをシャットアウトするオートロックが完備されていますので女性も安心です♪
人気設備の宅配ボックスもございますので、不在時でも荷物を預かることができて便利です。
直接荷物を受け取ることに抵抗のあるかたはセキュリティとしてもお使い頂けます!
また、敷地内には駐輪場がございます。通勤通学やお買いものに便利です♪(要空き確認)
【レゴキューブ】は周辺環境にも注目です!
交通面は【東京メトロ日比谷線・入谷駅徒歩5分】【つくばエクスプレス・浅草駅徒歩13分】【JR山手線・鶯谷駅徒歩15分】となっています。徒歩圏内で3路線使える便利立地です♪
近隣には、コンビニをはじめ、スーパーやドラッグストア等のお店がございますので、お買いものに便利です♪
少しでも気になった方はお気軽にお問い合わせください!
掲載情報について
※随時更新を心がけておりますが、掲載している物件が万が一成約している場合もございますので予めご了承下さいませ。
※駐車場・駐輪場・バイク置場の空き状況についてはお問い合わせ下さい。
※ペット飼育やSOHO利用・楽器使用の可否に関しては、建物の管理規約で可能になっていても、お部屋の所有者様によって禁止の場合もございますので御注意下さい。
詳細はメールやお電話にてスタッフまでご相談下さい。
※駐車場・駐輪場・バイク置場の空き状況についてはお問い合わせ下さい。
※ペット飼育やSOHO利用・楽器使用の可否に関しては、建物の管理規約で可能になっていても、お部屋の所有者様によって禁止の場合もございますので御注意下さい。
詳細はメールやお電話にてスタッフまでご相談下さい。
レゴキューブの周辺地図
レゴキューブのご成約済み部屋一覧
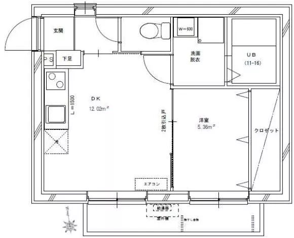
| 所在階 | 間取り | 面積 | 賃料 | 管理費 | 敷金 | 礼金 | お問い合わせ | ||||
|---|---|---|---|---|---|---|---|---|---|---|---|
| 1階 | 1DK | 28.78㎡ | … | … | … | … | 契約済み | 所在階*** 間取り1DK |
面積28.78㎡ 管理費*** |
敷金*** 礼金*** |
契約済み |










