キーワード検索

パレステージ文京江戸川橋の賃貸情報

   10/03

パレステージ文京江戸川橋の賃貸情報


  10/03
1/10
募集中の部屋一覧
間取図 所在階 間取り 面積 賃料 管理費 敷金 礼金  
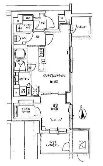
3階 1DK 37.38㎡ 149,000円 15,000円 1ヶ月 1ヶ月 所在階: 3階
面積: 37.38㎡
間取り: 1DK
149,000円
管理費: 15,000円
敷金: 1ヶ月
礼金: 1ヶ月
お気に入り お問い合わせ
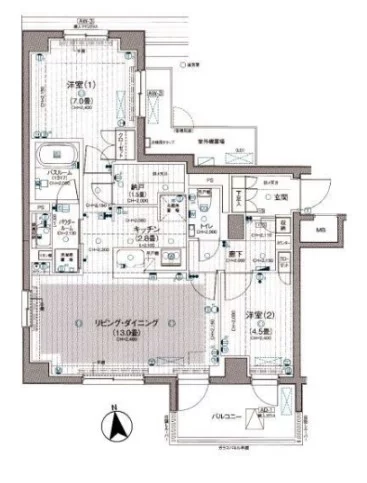
4階 2LDK 62.67㎡ 258,000円 12,000円 1ヶ月 1ヶ月 所在階: 4階
面積: 62.67㎡
間取り: 2LDK
258,000円
管理費: 12,000円
敷金: 1ヶ月
礼金: 1ヶ月
お気に入り お問い合わせ

スタッフのコメント

スタッフ画像 関 泰生
文京区水道2丁目の分譲マンション【パレステージ文京江戸川橋】のご紹介です。竣工は2017年10月・地上6階建ての低層マンションでございます。水道エリアは飯田橋駅や江戸川橋駅が徒歩圏内で、交通環境や周辺環境が便利な立地!水道エリア自体は住宅地の広がっているエリアがメインで、基本的には落ち着いた住環境でございます。物件は分譲マンションのため、共用部分では敷地内ゴミ置き場や宅配ボックス、駐車場やバイク置き場も完備されており、利便性も申し分ありません♪是非ご検討くださいませ!

パレステージ文京江戸川橋の総合評価
総合評価
3.8
セキュリティ ★★★★☆   築年数 ★★★★☆  
建物設備 ★★★★☆   駅徒歩 ★★★☆☆  
セキュリティ:    ★★★★☆
建物設備: ★★★★☆
築年数: ★★★★☆
駅徒歩: ★★★☆☆

この物件について

物件名パレステージ文京江戸川橋
住所東京都文京区水道2-4-27
最寄駅 東京メトロ有楽町線 江戸川橋駅 徒歩7分
東京メトロ東西線 神楽坂駅 徒歩11分
都営大江戸線 飯田橋駅 徒歩14分
学区金富小学校
構造RC 総階数地上6階建て 
賃料149,000円~258,000円 管理費12,000円~15,000円
間取り1DK~2LDK 面積37.38㎡~62.67㎡
駐車場 築年月2017年11月
問合番号489587 更新日2025/10/03
設備オートロック、法人契約相談可、駐輪場有、宅配BOX、コンビニ近、BS・CS、CATV、光ファイバー、インターネット対応、専用ゴミ置場、防犯カメラ、TVモニター付インターホン、分譲賃貸、エレベーター、金富小学校エリア、コンロ二口以上、IHキッチン、システムキッチン、エアコン、フローリング、独立洗面台、追い焚き機能、浴室乾燥、ウォシュレット、24時間換気システム、バストイレ別、室内洗濯機置場、収納
備考 
詳細閲覧ありがとうございます。最新の空室の確認、内覧のご予約はメール・電話にてお問い合わせください。 文京区の賃貸マンション・賃貸アパートはベステックスにおまかせください!

物件概要

文京区水道2丁目。ここは山手線の内側、文京区の中でも“山の手”と位置づけられ、最寄り駅の江戸川橋駅まで徒歩7分という交通の利便性はもちろん、落ち着いた“山の手”の日常を享受できる環境で、一度は住んでみたいエリアとの評判が高い。
築浅分譲マンションの【パレステージ文京江戸川橋】は、
2017年築、鉄筋コンクリート造の6階建て!

耐震性や遮音性に優れた造りに加え、カラーモニター付きオートロックシステム、24時間体制の集中管理システム、玄関ドアの防犯設備、また宅配BOXも完備されておりますので、女性の方でも安心してご入居いただけます!

住む方の安心感、また高級感を与えてくれ、快適な暮らしをしっかりサポート致します。
敷地内には専用のゴミ置き場もございますので、ライフスタイルに合わせてゴミ出しが可能!

駐輪場もございますので、地下鉄以外にもぐっと行動範囲が広がります!


アクセス:徒歩7分の東京メトロ有楽町線「江戸川橋」駅をはじめ、
東京メトロ東西線「神楽坂」駅(徒歩11分)、東京メトロ丸ノ内線「茗荷谷」駅(徒歩15分)、東京メトロ南北線、都営地下鉄大江戸「飯田橋」駅(徒歩14分)と、4駅5路線を利用し、新宿、大手町、池袋、東京など都心主要エリアへのアクセスもスムーズです。

周辺環境:江戸川橋エリアは都会と緑が程よく調和された所が魅力の一つとも言えます。「江戸川公園」、「神田川」、「神田川さくら並木」など季節が変わるごとに様々な景色を楽しむことが出来る環境にあります!
スーパーは「コモディイイダ」、「まいばすけっと」などがあり、お買い物には困らない環境があります!お引越しの際には必須項目である「ファミリーマート」、「セブンイレブン」などのコンビニ環境も充実しております☆

クリーニング屋さんや郵便局、銀行など生活する上で近くにあると嬉しい施設が全て徒歩圏内に御座います♪


充実の周辺環境で、静かな立地にございます!
是非一度、【パレステージ文京江戸川橋】をご内覧下さい♪

掲載情報について

※随時更新を心がけておりますが、掲載している物件が万が一成約している場合もございますので予めご了承下さいませ。
※駐車場・駐輪場・バイク置場の空き状況についてはお問い合わせ下さい。
※ペット飼育やSOHO利用・楽器使用の可否に関しては、建物の管理規約で可能になっていても、お部屋の所有者様によって禁止の場合もございますので御注意下さい。
詳細はメールやお電話にてスタッフまでご相談下さい。

パレステージ文京江戸川橋の周辺地図

パレステージ文京江戸川橋のご成約済み部屋一覧

所在階 間取り 面積 賃料 管理費 敷金 礼金 お問い合わせ
1階 1K 30.01㎡ 契約済み 所在階: ***
間取り: 1K
面積: 30.01㎡
管理費: ***
敷金: ***
礼金: ***
契約済み
1階 1K 30.01㎡ 契約済み 所在階: ***
間取り: 1K
面積: 30.01㎡
管理費: ***
敷金: ***
礼金: ***
契約済み
1階 1K 30.28㎡ 契約済み 所在階: ***
間取り: 1K
面積: 30.28㎡
管理費: ***
敷金: ***
礼金: ***
契約済み
2階 1K 30.01㎡ 契約済み 所在階: ***
間取り: 1K
面積: 30.01㎡
管理費: ***
敷金: ***
礼金: ***
契約済み
2階 1K 30.28㎡ 契約済み 所在階: ***
間取り: 1K
面積: 30.28㎡
管理費: ***
敷金: ***
礼金: ***
契約済み
2階 1K 30.01㎡ 契約済み 所在階: ***
間取り: 1K
面積: 30.01㎡
管理費: ***
敷金: ***
礼金: ***
契約済み
2階 2LDK 56.33㎡ 契約済み 所在階: ***
間取り: 2LDK
面積: 56.33㎡
管理費: ***
敷金: ***
礼金: ***
契約済み
3階 1K 30.01㎡ 契約済み 所在階: ***
間取り: 1K
面積: 30.01㎡
管理費: ***
敷金: ***
礼金: ***
契約済み
3階 1DK 32.97㎡ 契約済み 所在階: ***
間取り: 1DK
面積: 32.97㎡
管理費: ***
敷金: ***
礼金: ***
契約済み
3階 1DK 33.14㎡ 契約済み 所在階: ***
間取り: 1DK
面積: 33.14㎡
管理費: ***
敷金: ***
礼金: ***
契約済み
3階 1LDK 44.71㎡ 契約済み 所在階: ***
間取り: 1LDK
面積: 44.71㎡
管理費: ***
敷金: ***
礼金: ***
契約済み
3階 1LDK 44.71㎡ 契約済み 所在階: ***
間取り: 1LDK
面積: 44.71㎡
管理費: ***
敷金: ***
礼金: ***
契約済み
3階 2LDK 54.84㎡ 契約済み 所在階: ***
間取り: 2LDK
面積: 54.84㎡
管理費: ***
敷金: ***
礼金: ***
契約済み
3階 2LDK 57.83㎡ 契約済み 所在階: ***
間取り: 2LDK
面積: 57.83㎡
管理費: ***
敷金: ***
礼金: ***
契約済み
4階 2LDK 63.70㎡ 契約済み 所在階: ***
間取り: 2LDK
面積: 63.70㎡
管理費: ***
敷金: ***
礼金: ***
契約済み
5階 1LDK 47.67㎡ 契約済み 所在階: ***
間取り: 1LDK
面積: 47.67㎡
管理費: ***
敷金: ***
礼金: ***
契約済み
6階 1K 31.45㎡ 契約済み 所在階: ***
間取り: 1K
面積: 31.45㎡
管理費: ***
敷金: ***
礼金: ***
契約済み
その他(全17件)を全て表示する

最近見た物件