スパシエリーヴァ浅草の賃貸情報
08/02スパシエリーヴァ浅草の賃貸情報
08/02
スパシエリーヴァ浅草の総合評価
総合評価
3
3
| セキュリティ | : |
築年数 | : |
| 建物設備 | : |
駅徒歩 | : |
| セキュリティ: | |
| 建物設備: | |
| 築年数: | |
| 駅徒歩: |
この物件について
| 物件名 | スパシエリーヴァ浅草 | ||
|---|---|---|---|
| 住所 | 東京都台東区今戸1-11-9 | ||
| 最寄駅 |
東武伊勢崎線 浅草駅 徒歩13分 東京メトロ銀座線 浅草駅 徒歩15分 |
||
| 学区 | |||
| 構造 | RC | 総階数 | 地上14階建て |
| 賃料 | 79,500円 | 管理費 | 7,500円 |
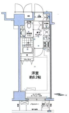
| 間取り | 1K | 面積 | 25.64㎡ |
| 駐車場 | 月額25,000円 要空き確認 | 築年月 | 2007年09月 |
| 問合番号 | 795003 | 更新日 | 2017/08/02 |
| 設備 | オートロック、駐車場有、駐輪場有、宅配BOX、防犯カメラ、分譲賃貸、エレベーター、法人契約相談可 | ||
| 備考 | 詳細閲覧ありがとうございます。最新の空室の確認、内覧のご予約はメール・電話にてお問い合わせください。 文京区の賃貸マンション・賃貸アパートはベステックスにおまかせください! | ||
物件概要
台東区今戸1丁目の分譲賃貸マンション【スパシエリーヴァ浅草】3階・1Kのご紹介です!
建物は2007年9月完成。
耐久性・耐火性・防音性等に優れた鉄筋コンクリート(RC)造の地上14階建て、総戸数は42戸となっています。
共用部分には、関係者以外の立ち入りをシャットアウトできるオートロックシステムを完備。
設置済みの防犯カメラと合わせてセキュリティ面安心♪
人気設備の宅配ボックスも完備してあります。
不在時でも荷物の受け取りができるので便利です!
直接荷物を受け取ることに抵抗のある方はセキュリティとしてもお使い頂けます!
敷地内には、駐車場・駐輪場が完備されております。
(要空き確認)
通勤通学やお買い物の移動手段に便利♪
【スパシエリーヴァ浅草】は周辺環境にも注目です!
交通面は【東武伊勢崎線・浅草駅徒歩13分】【東京メトロ銀座線・浅草駅徒歩15分】となっています。
徒歩10分圏内には、コンビニやスーパーがございますので、お買いものに便利です♪
少しでも気になった方はお気軽にお問い合わせください!
建物は2007年9月完成。
耐久性・耐火性・防音性等に優れた鉄筋コンクリート(RC)造の地上14階建て、総戸数は42戸となっています。
共用部分には、関係者以外の立ち入りをシャットアウトできるオートロックシステムを完備。
設置済みの防犯カメラと合わせてセキュリティ面安心♪
人気設備の宅配ボックスも完備してあります。
不在時でも荷物の受け取りができるので便利です!
直接荷物を受け取ることに抵抗のある方はセキュリティとしてもお使い頂けます!
敷地内には、駐車場・駐輪場が完備されております。
(要空き確認)
通勤通学やお買い物の移動手段に便利♪
【スパシエリーヴァ浅草】は周辺環境にも注目です!
交通面は【東武伊勢崎線・浅草駅徒歩13分】【東京メトロ銀座線・浅草駅徒歩15分】となっています。
徒歩10分圏内には、コンビニやスーパーがございますので、お買いものに便利です♪
少しでも気になった方はお気軽にお問い合わせください!
掲載情報について
※随時更新を心がけておりますが、掲載している物件が万が一成約している場合もございますので予めご了承下さいませ。
※駐車場・駐輪場・バイク置場の空き状況についてはお問い合わせ下さい。
※ペット飼育やSOHO利用・楽器使用の可否に関しては、建物の管理規約で可能になっていても、お部屋の所有者様によって禁止の場合もございますので御注意下さい。
詳細はメールやお電話にてスタッフまでご相談下さい。
※駐車場・駐輪場・バイク置場の空き状況についてはお問い合わせ下さい。
※ペット飼育やSOHO利用・楽器使用の可否に関しては、建物の管理規約で可能になっていても、お部屋の所有者様によって禁止の場合もございますので御注意下さい。
詳細はメールやお電話にてスタッフまでご相談下さい。
スパシエリーヴァ浅草の周辺地図
スパシエリーヴァ浅草のご成約済み部屋一覧
| 所在階 | 間取り | 面積 | 賃料 | 管理費 | 敷金 | 礼金 | お問い合わせ | ||||
|---|---|---|---|---|---|---|---|---|---|---|---|
| 3階 | 1K | 25.64㎡ | … | … | … | … | 契約済み | 所在階*** 間取り1K |
面積25.64㎡ 管理費*** |
敷金*** 礼金*** |
契約済み |

















