【新築】スカイコートパレス三ノ輪の賃貸情報
07/13【新築】スカイコートパレス三ノ輪の賃貸情報
07/13
【新築】スカイコートパレス三ノ輪の総合評価
総合評価
3
3
| セキュリティ | : |
築年数 | : |
| 建物設備 | : |
駅徒歩 | : |
| セキュリティ: | |
| 建物設備: | |
| 築年数: | |
| 駅徒歩: |
この物件について
| 物件名 | 【新築】スカイコートパレス三ノ輪 | ||
|---|---|---|---|
| 住所 | 東京都台東区竜泉3-10-1 | ||
| 最寄駅 |
東京メトロ日比谷線 三ノ輪駅 徒歩7分 |
||
| 学区 | |||
| 構造 | RC | 総階数 | 地上10階建て |
| 賃料 | 86,400円~87,400円 | 管理費 | 7,600円 |
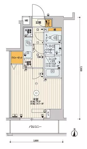
| 間取り | 1K | 面積 | 25.64㎡ |
| 駐車場 | 要確認 | 築年月 | 2017年05月 |
| 問合番号 | 261000 | 更新日 | 2017/07/13 |
| 設備 | 新築、オートロック、バイク置場有、駐車場有、駐輪場有、宅配BOX、コンビニ近、BS・CS、光ファイバー、インターネット対応、専用ゴミ置場、防犯カメラ、TVモニター付インターホン、分譲賃貸、エレベーター、コンロ二口以上、ガスキッチン、システムキッチン、エアコン、フローリング、独立洗面台、浴室乾燥、ウォシュレット、バストイレ別、室内洗濯機置場、収納、法人契約相談可 | ||
| 備考 | 詳細閲覧ありがとうございます。最新の空室の確認、内覧のご予約はメール・電話にてお問い合わせください。 文京区の賃貸マンション・賃貸アパートはベステックスにおまかせください! | ||
物件概要
東京メトロ日比谷線・三ノ輪駅から徒歩7分の立地に完成した新築分譲マンション【スカイコートパレス三ノ輪】のご紹介です!
2017年5月築、鉄筋コンクリート造10階建てのマンション。外観・共用部・室内いずれも綺麗な、分譲タイプのハイグレードマンションです!
敷地内には、駐車場・バイク置場・駐輪場を完備(料金・空き状況等、要確認)!
宅配ボックスや専用のゴミ置き場といった人気設備も御座います♪
もちろん、オートロックをはじめ、TVモニター付きインターホンや防犯カメラなどのセキュリティ設備も揃っており、防犯面では安心の内容です!
インターネットはフレッツ光ネクストが導入済み。BS110°にも対応!
専有部分においても、2口ガスコンロ・グリル付きのシステムキッチン(1LDKは3口)や独立洗面台、浴室乾燥機、温水洗浄便座…などの人気の設備も揃った充実の仕様♪
周辺の環境についても、浅草が1km圏、上野が1.4km圏、東京スカイツリーが2.2km圏にあり、人気の観光スポットが手軽にアクセス可能な範囲に御座います!
是非お問い合わせください!
2017年5月築、鉄筋コンクリート造10階建てのマンション。外観・共用部・室内いずれも綺麗な、分譲タイプのハイグレードマンションです!
敷地内には、駐車場・バイク置場・駐輪場を完備(料金・空き状況等、要確認)!
宅配ボックスや専用のゴミ置き場といった人気設備も御座います♪
もちろん、オートロックをはじめ、TVモニター付きインターホンや防犯カメラなどのセキュリティ設備も揃っており、防犯面では安心の内容です!
インターネットはフレッツ光ネクストが導入済み。BS110°にも対応!
専有部分においても、2口ガスコンロ・グリル付きのシステムキッチン(1LDKは3口)や独立洗面台、浴室乾燥機、温水洗浄便座…などの人気の設備も揃った充実の仕様♪
周辺の環境についても、浅草が1km圏、上野が1.4km圏、東京スカイツリーが2.2km圏にあり、人気の観光スポットが手軽にアクセス可能な範囲に御座います!
是非お問い合わせください!
掲載情報について
※随時更新を心がけておりますが、掲載している物件が万が一成約している場合もございますので予めご了承下さいませ。
※駐車場・駐輪場・バイク置場の空き状況についてはお問い合わせ下さい。
※ペット飼育やSOHO利用・楽器使用の可否に関しては、建物の管理規約で可能になっていても、お部屋の所有者様によって禁止の場合もございますので御注意下さい。
詳細はメールやお電話にてスタッフまでご相談下さい。
※駐車場・駐輪場・バイク置場の空き状況についてはお問い合わせ下さい。
※ペット飼育やSOHO利用・楽器使用の可否に関しては、建物の管理規約で可能になっていても、お部屋の所有者様によって禁止の場合もございますので御注意下さい。
詳細はメールやお電話にてスタッフまでご相談下さい。























