文京区白山4丁目住宅の賃貸情報
03/30文京区白山4丁目住宅の賃貸情報
03/30
この物件について
| 物件名 | 文京区白山4丁目住宅 | ||
|---|---|---|---|
| 住所 | 東京都文京区白山4-29-21 | ||
| 最寄駅 | 
                                都営三田線 白山駅 徒歩4分 東京メトロ南北線 本駒込駅 徒歩10分 東京メトロ南北線 東大前駅 徒歩13分  | 
                        
                        ||
| 学区 | 指ケ谷小学校 | ||
| 構造 | 木造 | 総階数 | 地上2階建て | 
| 賃料 | 管理費 | ||
| 間取り | 面積 | ||
| 駐車場 | 築年月 | 2006年03月 | |
| 問合番号 | 645664 | 更新日 | 2016/03/30 | 
| 設備 | 駐車場有、駐輪場有、コンビニ近、TVモニター付インターホン、東京大学自転車圏、指ケ谷小学校エリア、法人契約相談可 | ||
| 備考 |   詳細閲覧ありがとうございます。最新の空室の確認、内覧のご予約はメール・電話にてお問い合わせください。 文京区の賃貸マンション・賃貸アパートはベステックスにおまかせください!  | ||
物件概要
                文京区白山4丁目に佇む希少な賃貸戸建の文京区白山4丁目住宅のご紹介です♪
2006年3月築の木造2階建てとなっています。
閑静な低層住宅地に立地し、落ち着いた周辺環境!
敷地内には2台分の駐車場が用意されております♪
~利用可能路線・駅~
都営三田線の白山駅まで徒歩で約4分と駅近!
他には東京メトロ南北線の本駒込駅まで徒歩で約10分になっています。
~周辺環境~
スーパーはまいばすけっと白山1丁目店や、まいばすけっと小石川植物園前店、コープ白山店などが徒歩圏内♪
24時間営業のコンビニ、セブンイレブン文京白山駅前店やローソンストア100白山駅前店、ファミリーマート文京白山駅前店などが利用可能です♪
あると便利なドラッグストアのくすりセイジョー白山店やドラッグストアいわい白山店、マツモトキヨシ白山五丁目店や、ホームセンターのOlympic白山店も至近です♪
充実した周辺環境の白山4丁目住宅を是非、1度ご覧ください♪
            2006年3月築の木造2階建てとなっています。
閑静な低層住宅地に立地し、落ち着いた周辺環境!
敷地内には2台分の駐車場が用意されております♪
~利用可能路線・駅~
都営三田線の白山駅まで徒歩で約4分と駅近!
他には東京メトロ南北線の本駒込駅まで徒歩で約10分になっています。
~周辺環境~
スーパーはまいばすけっと白山1丁目店や、まいばすけっと小石川植物園前店、コープ白山店などが徒歩圏内♪
24時間営業のコンビニ、セブンイレブン文京白山駅前店やローソンストア100白山駅前店、ファミリーマート文京白山駅前店などが利用可能です♪
あると便利なドラッグストアのくすりセイジョー白山店やドラッグストアいわい白山店、マツモトキヨシ白山五丁目店や、ホームセンターのOlympic白山店も至近です♪
充実した周辺環境の白山4丁目住宅を是非、1度ご覧ください♪
掲載情報について
    ※随時更新を心がけておりますが、掲載している物件が万が一成約している場合もございますので予めご了承下さいませ。
※駐車場・駐輪場・バイク置場の空き状況についてはお問い合わせ下さい。
※ペット飼育やSOHO利用・楽器使用の可否に関しては、建物の管理規約で可能になっていても、お部屋の所有者様によって禁止の場合もございますので御注意下さい。
詳細はメールやお電話にてスタッフまでご相談下さい。
※駐車場・駐輪場・バイク置場の空き状況についてはお問い合わせ下さい。
※ペット飼育やSOHO利用・楽器使用の可否に関しては、建物の管理規約で可能になっていても、お部屋の所有者様によって禁止の場合もございますので御注意下さい。
詳細はメールやお電話にてスタッフまでご相談下さい。
文京区白山4丁目住宅の周辺地図
文京区白山4丁目住宅のご成約済み部屋一覧
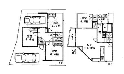
| 所在階 | 間取り | 面積 | 賃料 | 管理費 | 敷金 | 礼金 | お問い合わせ | ||||
|---|---|---|---|---|---|---|---|---|---|---|---|
| 1階 | 4LDK | 96.12㎡ | … | … | … | … | 契約済み | 所在階*** 間取り4LDK  | 
                            面積96.12㎡ 管理費***  | 
                            敷金*** 礼金***  | 
                            契約済み | 
