クレアホームズ小石川の賃貸情報
09/23クレアホームズ小石川の賃貸情報
09/23
クレアホームズ小石川の総合評価
総合評価
3
3
| セキュリティ | : |
築年数 | : |
| 建物設備 | : |
駅徒歩 | : |
| セキュリティ: | |
| 建物設備: | |
| 築年数: | |
| 駅徒歩: |
この物件について
| 物件名 | クレアホームズ小石川 | ||
|---|---|---|---|
| 住所 | 東京都文京区小石川5-35-8 | ||
| 最寄駅 |
東京メトロ丸ノ内線 茗荷谷駅 徒歩6分 都営三田線 千石駅 徒歩12分 |
||
| 学区 | 窪町小学校 | ||
| 構造 | RC | 総階数 | 地上9階建て |
| 賃料 | 管理費 | ||
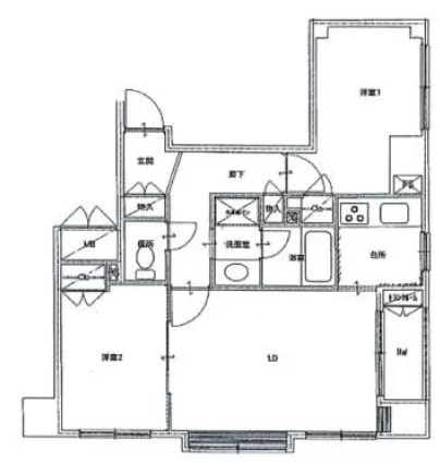
| 間取り | 面積 | ||
| 駐車場 | 要確認 | 築年月 | 1998年08月 |
| 問合番号 | 98190 | 更新日 | 2019/09/23 |
| 設備 | オートロック、バイク置場有、駐車場有、駐輪場有、宅配BOX、コンビニ近、CATV、光ファイバー、インターネット対応、専用ゴミ置場、防犯カメラ、TVモニター付インターホン、分譲賃貸、エレベーター、窪町小学校エリア、エアコン、室内洗濯機置場、収納、法人契約相談可 | ||
| 備考 | クレアホームズ小石川の賃貸情報です! 詳細閲覧ありがとうございます。最新の空室の確認、内覧のご予約はメール・電話にてお問い合わせください。 文京区の賃貸マンション・賃貸アパートはベステックスにおまかせください! | ||
物件概要
文京区小石川5丁目、人気の茗荷谷エリアから分譲マンション【クレアホームズ小石川】のご紹介です。
2LDK~4LDKのDINKS~ファミリー向けの間取りを揃えたマンションで、文京区内でも人気の高い『窪町小学校』の通学区域内ということもありお子様のいらっしゃるご家庭に非常にオススメです♪
他にも、『文教エリア』と言われるように『お茶の水女子大学』『跡見学園女子大学』『拓殖大学』といった有名大学も御座います!
『教育の森公園』や『小石川植物園』、『播磨坂さくら並木』などが周辺にあり、身近で自然や四季を感じることの出来る住環境も人気の要因で、『播磨坂さくら並木』では毎年『文京花の五大まつり』のひとつの『文京さくらまつり』が開催され、区内随一の桜の名所が徒歩圏内です!
最寄り駅の東京メトロ丸ノ内線『茗荷谷駅』からは徒歩6分の立地で、茗荷谷駅前にはスーパーマーケット『三徳』や『マルエツプチ』をはじめ、多くの飲食店やコンビニ・ドラッグストア・銀行などが揃っているので非常に便利です!駅前で買い物してから帰宅…といったイメージもしやすいエリア♪
物件の近くにもスーパー『肉のハナマサ』『ミニコープ』『まいばすけっと』や、『ファミリーマート』などのコンビニなどがあり、駅前まで行かなくとも物件周辺で買い物も済ませることが出来ます!
アクセスに関しては、『茗荷谷駅』からは東京メトロ丸ノ内線で『大手町駅』『東京駅』『銀座駅』まで15分以内、『霞ヶ関駅』には20分以内でアクセス可能なので通勤にも便利♪反対方面の『池袋駅』には2駅でなんと5分以内です!
徒歩12分の距離には都営三田線『千石駅』もあり、2駅2路線が利用可能♪
物件は1998年8月築、鉄筋コンクリート造地上9階建て。敷地内には、駐輪場はもちろん、駐車場も完備されたまさにファミリー向けといったマンションです。
共用部に設置された防犯カメラをはじめ、オートロックにTVモニター付きインターホンなど、セキュリティ面に関しても安心♪
便利な専用ゴミ置き場も完備されています!
教育環境・住環境ともに良好な人気エリアに立地の、落ち着いた佇まいの分譲マンション。是非お問い合わせください!
2LDK~4LDKのDINKS~ファミリー向けの間取りを揃えたマンションで、文京区内でも人気の高い『窪町小学校』の通学区域内ということもありお子様のいらっしゃるご家庭に非常にオススメです♪
他にも、『文教エリア』と言われるように『お茶の水女子大学』『跡見学園女子大学』『拓殖大学』といった有名大学も御座います!
『教育の森公園』や『小石川植物園』、『播磨坂さくら並木』などが周辺にあり、身近で自然や四季を感じることの出来る住環境も人気の要因で、『播磨坂さくら並木』では毎年『文京花の五大まつり』のひとつの『文京さくらまつり』が開催され、区内随一の桜の名所が徒歩圏内です!
最寄り駅の東京メトロ丸ノ内線『茗荷谷駅』からは徒歩6分の立地で、茗荷谷駅前にはスーパーマーケット『三徳』や『マルエツプチ』をはじめ、多くの飲食店やコンビニ・ドラッグストア・銀行などが揃っているので非常に便利です!駅前で買い物してから帰宅…といったイメージもしやすいエリア♪
物件の近くにもスーパー『肉のハナマサ』『ミニコープ』『まいばすけっと』や、『ファミリーマート』などのコンビニなどがあり、駅前まで行かなくとも物件周辺で買い物も済ませることが出来ます!
アクセスに関しては、『茗荷谷駅』からは東京メトロ丸ノ内線で『大手町駅』『東京駅』『銀座駅』まで15分以内、『霞ヶ関駅』には20分以内でアクセス可能なので通勤にも便利♪反対方面の『池袋駅』には2駅でなんと5分以内です!
徒歩12分の距離には都営三田線『千石駅』もあり、2駅2路線が利用可能♪
物件は1998年8月築、鉄筋コンクリート造地上9階建て。敷地内には、駐輪場はもちろん、駐車場も完備されたまさにファミリー向けといったマンションです。
共用部に設置された防犯カメラをはじめ、オートロックにTVモニター付きインターホンなど、セキュリティ面に関しても安心♪
便利な専用ゴミ置き場も完備されています!
教育環境・住環境ともに良好な人気エリアに立地の、落ち着いた佇まいの分譲マンション。是非お問い合わせください!
掲載情報について
※随時更新を心がけておりますが、掲載している物件が万が一成約している場合もございますので予めご了承下さいませ。
※駐車場・駐輪場・バイク置場の空き状況についてはお問い合わせ下さい。
※ペット飼育やSOHO利用・楽器使用の可否に関しては、建物の管理規約で可能になっていても、お部屋の所有者様によって禁止の場合もございますので御注意下さい。
詳細はメールやお電話にてスタッフまでご相談下さい。
※駐車場・駐輪場・バイク置場の空き状況についてはお問い合わせ下さい。
※ペット飼育やSOHO利用・楽器使用の可否に関しては、建物の管理規約で可能になっていても、お部屋の所有者様によって禁止の場合もございますので御注意下さい。
詳細はメールやお電話にてスタッフまでご相談下さい。

















