アマヴェル早稲田の賃貸情報
05/07アマヴェル早稲田の賃貸情報
05/07
アマヴェル早稲田の総合評価
総合評価
3
3
| セキュリティ | : |
築年数 | : |
| 建物設備 | : |
駅徒歩 | : |
| セキュリティ: | |
| 建物設備: | |
| 築年数: | |
| 駅徒歩: |
この物件について
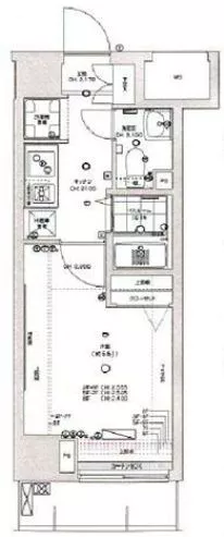
| 物件名 | アマヴェル早稲田 | ||
|---|---|---|---|
| 住所 | 東京都新宿区早稲田鶴巻町529-10 | ||
| 最寄駅 |
東京メトロ東西線 早稲田駅 徒歩2分 都営都電荒川線 早稲田駅 徒歩9分 東京メトロ有楽町線 江戸川橋駅 徒歩13分 |
||
| 学区 | |||
| 構造 | RC | 総階数 | 地上8階建て |
| 賃料 | 管理費 | ||
| 間取り | 面積 | ||
| 駐車場 | 築年月 | 2010年01月 | |
| 問合番号 | 544520 | 更新日 | 2015/05/07 |
| 設備 | オートロック、バイク置場有、駐輪場有、宅配BOX、コンビニ近、CATV、光ファイバー、インターネット対応、防犯カメラ、TVモニター付インターホン、分譲賃貸、エレベーター、コンロ二口以上、ガスキッチン、システムキッチン、エアコン、フローリング、独立洗面台、浴室乾燥、ウォシュレット、バストイレ別、室内洗濯機置場、収納、法人契約相談可 | ||
| 備考 | 【アマヴェル早稲田】の分譲賃貸マンション情報♪ ・バイク置場(3台)1,000円/月 ・駐輪場 300円/月 詳細閲覧ありがとうございます。最新の空室の確認、内覧のご予約はメール・電話にてお問い合わせください。 文京区の賃貸マンション・賃貸アパートはベステックスにおまかせください! | ||
物件概要
高級分譲賃貸【アマヴェル早稲田】のご紹介です☆
2010年1月築鉄筋コンクリート造。全1Kタイプからなる22戸。一際目を引くエントランスは、この物件の魅力☆
セキュリティをはじめとする各種設備も充実しており、
共用部にはオートロック、エレベータ、防犯カメラ(3台)もしっかり完備☆
室内設備では2口ガスシステムキッチン、TVモニター付インターホン、浴室乾燥機、独立洗面台が完備さており、水周りも安心の内容☆
スーパーのイトーヨーカドーやコンビ二まで徒歩約1分、
学生さんや社会人の方で賑わう飲食店も充実しており、大変住みやすい周辺環境となっております。
お気軽にお問い合わせください♪
2010年1月築鉄筋コンクリート造。全1Kタイプからなる22戸。一際目を引くエントランスは、この物件の魅力☆
セキュリティをはじめとする各種設備も充実しており、
共用部にはオートロック、エレベータ、防犯カメラ(3台)もしっかり完備☆
室内設備では2口ガスシステムキッチン、TVモニター付インターホン、浴室乾燥機、独立洗面台が完備さており、水周りも安心の内容☆
スーパーのイトーヨーカドーやコンビ二まで徒歩約1分、
学生さんや社会人の方で賑わう飲食店も充実しており、大変住みやすい周辺環境となっております。
お気軽にお問い合わせください♪
掲載情報について
※随時更新を心がけておりますが、掲載している物件が万が一成約している場合もございますので予めご了承下さいませ。
※駐車場・駐輪場・バイク置場の空き状況についてはお問い合わせ下さい。
※ペット飼育やSOHO利用・楽器使用の可否に関しては、建物の管理規約で可能になっていても、お部屋の所有者様によって禁止の場合もございますので御注意下さい。
詳細はメールやお電話にてスタッフまでご相談下さい。
※駐車場・駐輪場・バイク置場の空き状況についてはお問い合わせ下さい。
※ペット飼育やSOHO利用・楽器使用の可否に関しては、建物の管理規約で可能になっていても、お部屋の所有者様によって禁止の場合もございますので御注意下さい。
詳細はメールやお電話にてスタッフまでご相談下さい。
アマヴェル早稲田の周辺地図
アマヴェル早稲田のご成約済み部屋一覧
| 所在階 | 間取り | 面積 | 賃料 | 管理費 | 敷金 | 礼金 | お問い合わせ | ||||
|---|---|---|---|---|---|---|---|---|---|---|---|
| 6階 | 1K | 22.34㎡ | … | … | … | … | 契約済み | 所在階*** 間取り1K |
面積22.34㎡ 管理費*** |
敷金*** 礼金*** |
契約済み |
























