ティーリア小石川の賃貸情報
08/30ティーリア小石川の賃貸情報
08/30
ティーリア小石川の総合評価
総合評価
3
3
| セキュリティ | : |
築年数 | : |
| 建物設備 | : |
駅徒歩 | : |
| セキュリティ: | |
| 建物設備: | |
| 築年数: | |
| 駅徒歩: |
この物件について
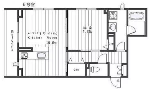
| 物件名 | ティーリア小石川 | ||
|---|---|---|---|
| 住所 | 東京都文京区小石川4-13-24 | ||
| 最寄駅 |
東京メトロ丸ノ内線 茗荷谷駅 徒歩10分 都営三田線 白山駅 徒歩13分 都営大江戸線 春日駅 徒歩15分 |
||
| 学区 | 柳町小学校 | ||
| 構造 | RC | 総階数 | 地上4階建て |
| 賃料 | 127,000円~159,000円 | 管理費 | 0円 |
| 間取り | 1LDK | 面積 | 41.00㎡~45.20㎡ |
| 駐車場 | 築年月 | 2015年03月 | |
| 問合番号 | 98460 | 更新日 | 2015/08/30 |
| 設備 | オートロック、バイク置場有、駐輪場有、コンビニ近、BS・CS、CATV、専用ゴミ置場、TVモニター付インターホン、エレベーター、柳町小学校エリア、コンロ二口以上、システムキッチン、エアコン、独立洗面台、追い焚き機能、浴室乾燥、ウォシュレット、バストイレ別、室内洗濯機置場、収納、礼金1以下、2人入居可、法人契約相談可 | ||
| 備考 | 【ティーリア小石川】の築浅賃貸マンション情報です! 駐輪場:無料 バイク置場:3,000円 詳細閲覧ありがとうございます。最新の空室の確認、内覧のご予約はメール・電話にてお問い合わせください。 文京区の賃貸マンション・賃貸アパートはベステックスにおまかせください! | ||
物件概要
小石川4丁目、閑静な住宅街に佇む築浅賃貸マンション【ティーリア小石川】のご紹介です!
2015年3月竣工。鉄筋コンクリート造の4階建て
丸ノ内線「茗荷谷駅」徒歩10分、都営三田線「白山駅」徒歩13分、都営大江戸線「春日駅」徒歩15分など複数の路線に囲まれた交通至便な好立地!
また、桜並木で有名な「播磨坂」も至近の、静かで落ち着きのある環境と築浅ならではの充実設備で快適な暮らしをしっかりサポート致します♪
もちろん、周辺にはスーパーやコンビニなど生活に欠かせない施設も揃っております!
~主な周辺環境~
・ショッピングセンター:ファッションセンターしまむら茗荷谷駅前店715m
・スーパー:まいばすけっと小石川植物園前店158m、肉のハナマサ小石川店297m、スーパーマーケット三徳茗荷谷店314m
・コンビニ:セブンイレブン文京植物園前店176m、ミニストップ茗荷谷店386m、ファミリーマート小石川五丁目店469m
・ドラッグストア:ドラッグストア一本堂小日向店439m、ドラッグストア一本堂茗荷谷駅前店633m
・飲食店:ほっともっと茗荷谷店510m、モスバーガー茗荷谷店518m、中華食堂日高屋茗荷谷店552m
・郵便局:小石川郵便局315m、小石川一郵便局604m、小石川五郵便局633m
・図書館:文京区立小石川図書館350m
・銀行:ゆうちょ銀行小石川店315m、りそな銀行茗荷谷支店637m、瀧野川信用金庫白山支店691m
・警察署・交番:富坂警察署674m
・公園:播磨坂さくら並木158m
お気軽にお問い合わせください!
2015年3月竣工。鉄筋コンクリート造の4階建て
丸ノ内線「茗荷谷駅」徒歩10分、都営三田線「白山駅」徒歩13分、都営大江戸線「春日駅」徒歩15分など複数の路線に囲まれた交通至便な好立地!
また、桜並木で有名な「播磨坂」も至近の、静かで落ち着きのある環境と築浅ならではの充実設備で快適な暮らしをしっかりサポート致します♪
もちろん、周辺にはスーパーやコンビニなど生活に欠かせない施設も揃っております!
~主な周辺環境~
・ショッピングセンター:ファッションセンターしまむら茗荷谷駅前店715m
・スーパー:まいばすけっと小石川植物園前店158m、肉のハナマサ小石川店297m、スーパーマーケット三徳茗荷谷店314m
・コンビニ:セブンイレブン文京植物園前店176m、ミニストップ茗荷谷店386m、ファミリーマート小石川五丁目店469m
・ドラッグストア:ドラッグストア一本堂小日向店439m、ドラッグストア一本堂茗荷谷駅前店633m
・飲食店:ほっともっと茗荷谷店510m、モスバーガー茗荷谷店518m、中華食堂日高屋茗荷谷店552m
・郵便局:小石川郵便局315m、小石川一郵便局604m、小石川五郵便局633m
・図書館:文京区立小石川図書館350m
・銀行:ゆうちょ銀行小石川店315m、りそな銀行茗荷谷支店637m、瀧野川信用金庫白山支店691m
・警察署・交番:富坂警察署674m
・公園:播磨坂さくら並木158m
お気軽にお問い合わせください!
掲載情報について
※随時更新を心がけておりますが、掲載している物件が万が一成約している場合もございますので予めご了承下さいませ。
※駐車場・駐輪場・バイク置場の空き状況についてはお問い合わせ下さい。
※ペット飼育やSOHO利用・楽器使用の可否に関しては、建物の管理規約で可能になっていても、お部屋の所有者様によって禁止の場合もございますので御注意下さい。
詳細はメールやお電話にてスタッフまでご相談下さい。
※駐車場・駐輪場・バイク置場の空き状況についてはお問い合わせ下さい。
※ペット飼育やSOHO利用・楽器使用の可否に関しては、建物の管理規約で可能になっていても、お部屋の所有者様によって禁止の場合もございますので御注意下さい。
詳細はメールやお電話にてスタッフまでご相談下さい。
ティーリア小石川の周辺地図
ティーリア小石川のご成約済み部屋一覧
| 所在階 | 間取り | 面積 | 賃料 | 管理費 | 敷金 | 礼金 | お問い合わせ | ||||
|---|---|---|---|---|---|---|---|---|---|---|---|
| 1階 | 1LDK | 45.20㎡ | … | … | … | … | 契約済み | 所在階*** 間取り1LDK |
面積45.20㎡ 管理費*** |
敷金*** 礼金*** |
契約済み |
| 1階 | 1LDK | 41.00㎡ | … | … | … | … | 契約済み | 所在階*** 間取り1LDK |
面積41.00㎡ 管理費*** |
敷金*** 礼金*** |
契約済み |
| 1階 | 1LDK | 45.20㎡ | … | … | … | … | 契約済み | 所在階*** 間取り1LDK |
面積45.20㎡ 管理費*** |
敷金*** 礼金*** |
契約済み |
| 1階 | 1LDK | 42.80㎡ | … | … | … | … | 契約済み | 所在階*** 間取り1LDK |
面積42.80㎡ 管理費*** |
敷金*** 礼金*** |
契約済み |
| 2階 | 1LDK | 45.20㎡ | … | … | … | … | 契約済み | 所在階*** 間取り1LDK |
面積45.20㎡ 管理費*** |
敷金*** 礼金*** |
契約済み |
| 2階 | 1LDK | 41.00㎡ | … | … | … | … | 契約済み | 所在階*** 間取り1LDK |
面積41.00㎡ 管理費*** |
敷金*** 礼金*** |
契約済み |
| 2階 | 1LDK | 45.20㎡ | … | … | … | … | 契約済み | 所在階*** 間取り1LDK |
面積45.20㎡ 管理費*** |
敷金*** 礼金*** |
契約済み |
| 3階 | 1LDK | 41.00㎡ | … | … | … | … | 契約済み | 所在階*** 間取り1LDK |
面積41.00㎡ 管理費*** |
敷金*** 礼金*** |
契約済み |
| 3階 | 1LDK | 45.20㎡ | … | … | … | … | 契約済み | 所在階*** 間取り1LDK |
面積45.20㎡ 管理費*** |
敷金*** 礼金*** |
契約済み |
| 3階 | 1LDK | 42.80㎡ | … | … | … | … | 契約済み | 所在階*** 間取り1LDK |
面積42.80㎡ 管理費*** |
敷金*** 礼金*** |
契約済み |
| 3階 | 1LDK | 45.20㎡ | … | … | … | … | 契約済み | 所在階*** 間取り1LDK |
面積45.20㎡ 管理費*** |
敷金*** 礼金*** |
契約済み |
| 3階 | 1LDK | 42.80㎡ | … | … | … | … | 契約済み | 所在階*** 間取り1LDK |
面積42.80㎡ 管理費*** |
敷金*** 礼金*** |
契約済み |
| 4階 | 1LDK | 41.00㎡ | … | … | … | … | 契約済み | 所在階*** 間取り1LDK |
面積41.00㎡ 管理費*** |
敷金*** 礼金*** |
契約済み |
| 4階 | 1LDK | 42.80㎡ | … | … | … | … | 契約済み | 所在階*** 間取り1LDK |
面積42.80㎡ 管理費*** |
敷金*** 礼金*** |
契約済み |
| 4階 | 1LDK | 45.20㎡ | … | … | … | … | 契約済み | 所在階*** 間取り1LDK |
面積45.20㎡ 管理費*** |
敷金*** 礼金*** |
契約済み |
| 4階 | 1LDK | 45.20㎡ | … | … | … | … | 契約済み | 所在階*** 間取り1LDK |
面積45.20㎡ 管理費*** |
敷金*** 礼金*** |
契約済み |
| 4階 | 1LDK | 42.80㎡ | … | … | … | … | 契約済み | 所在階*** 間取り1LDK |
面積42.80㎡ 管理費*** |
敷金*** 礼金*** |
契約済み |









