本郷台マンションの賃貸情報
03/12本郷台マンションの賃貸情報
03/12
本郷台マンションの総合評価
総合評価
3
3
| セキュリティ | : |
築年数 | : |
| 建物設備 | : |
駅徒歩 | : |
| セキュリティ: | |
| 建物設備: | |
| 築年数: | |
| 駅徒歩: |
この物件について
| 物件名 | 本郷台マンション | ||
|---|---|---|---|
| 住所 | 東京都文京区本駒込3-2-10 | ||
| 最寄駅 |
東京メトロ南北線 本駒込駅 徒歩1分 都営三田線 白山駅 徒歩6分 東京メトロ南北線 東大前駅 徒歩11分 |
||
| 学区 | 駒本小学校 | ||
| 構造 | RC | 総階数 | 地上8階建て |
| 賃料 | 管理費 | ||
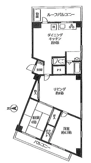
| 間取り | 面積 | ||
| 駐車場 | 築年月 | 1975年03月 2013年10月内装リフォーム | |
| 問合番号 | 79410110 | 更新日 | 2015/03/12 |
| 設備 | コンビニ近、CATV、光ファイバー、インターネット対応、TVモニター付インターホン、エレベーター、駒本小学校エリア、ガスキッチン、システムキッチン、エアコン、フローリング、追い焚き機能、バストイレ別、室内洗濯機置場、収納、法人契約相談可 | ||
| 備考 | ※2年間定期借家契約(再契約相談) 詳細閲覧ありがとうございます。最新の空室の確認、内覧のご予約はメール・電話にてお問い合わせください。 文京区の賃貸マンション・賃貸アパートはベステックスにおまかせください! | ||
物件概要
文京区本駒込3丁目に佇む賃貸マンション【本郷台マンション】のご紹介です☆
エレベーター、TVモニターホン、NTT Bフレッツマンションタイプ導入済(要別途契約)などの設備が付いています。
東京メトロ南北線【本駒込駅】徒歩1分、都営三田線【白山駅】徒歩6分、東京メトロ南北線【東大前】徒歩11分と好アクセス♪
◆周辺環境◆
【スーパー】スーパーマーケット三徳白山店 317m、コープとうきょう白山店 343m、まいばすけっと文京東大前店 618m【コンビニ】ファミリーマート本駒込駅前店 61m、セブンイレブン文京本駒込白山上店 270m、セブンイレブン文京動坂上店 304m【ドラッグストア】マツモトキヨシ白山五丁目店 333m、ドラッグストアいわい白山店 500m【レンタルビデオ】TSUTAYA白山店 476m【飲食店】オリジン弁当本駒込店 83m、はま寿司駒込白山店 268m、COCO’S駒込白山店 268m【病院】がん・感染症センター都立駒込病院 509m、日本医科大学附属病院 625m【郵便局】文京向丘二郵便局 217m、本駒込郵便局 349m、文京白山上郵便局 433m【図書館】本郷図書館 613m【銀行】三井住友銀行白山支店 213m、ゆうちょ銀行本店都営三田線白山駅出張所 435m、巣鴨信用金庫白山支店 566m
エレベーター、TVモニターホン、NTT Bフレッツマンションタイプ導入済(要別途契約)などの設備が付いています。
東京メトロ南北線【本駒込駅】徒歩1分、都営三田線【白山駅】徒歩6分、東京メトロ南北線【東大前】徒歩11分と好アクセス♪
◆周辺環境◆
【スーパー】スーパーマーケット三徳白山店 317m、コープとうきょう白山店 343m、まいばすけっと文京東大前店 618m【コンビニ】ファミリーマート本駒込駅前店 61m、セブンイレブン文京本駒込白山上店 270m、セブンイレブン文京動坂上店 304m【ドラッグストア】マツモトキヨシ白山五丁目店 333m、ドラッグストアいわい白山店 500m【レンタルビデオ】TSUTAYA白山店 476m【飲食店】オリジン弁当本駒込店 83m、はま寿司駒込白山店 268m、COCO’S駒込白山店 268m【病院】がん・感染症センター都立駒込病院 509m、日本医科大学附属病院 625m【郵便局】文京向丘二郵便局 217m、本駒込郵便局 349m、文京白山上郵便局 433m【図書館】本郷図書館 613m【銀行】三井住友銀行白山支店 213m、ゆうちょ銀行本店都営三田線白山駅出張所 435m、巣鴨信用金庫白山支店 566m
掲載情報について
※随時更新を心がけておりますが、掲載している物件が万が一成約している場合もございますので予めご了承下さいませ。
※駐車場・駐輪場・バイク置場の空き状況についてはお問い合わせ下さい。
※ペット飼育やSOHO利用・楽器使用の可否に関しては、建物の管理規約で可能になっていても、お部屋の所有者様によって禁止の場合もございますので御注意下さい。
詳細はメールやお電話にてスタッフまでご相談下さい。
※駐車場・駐輪場・バイク置場の空き状況についてはお問い合わせ下さい。
※ペット飼育やSOHO利用・楽器使用の可否に関しては、建物の管理規約で可能になっていても、お部屋の所有者様によって禁止の場合もございますので御注意下さい。
詳細はメールやお電話にてスタッフまでご相談下さい。
本郷台マンションの周辺地図
本郷台マンションのご成約済み部屋一覧
| 所在階 | 間取り | 面積 | 賃料 | 管理費 | 敷金 | 礼金 | お問い合わせ | ||||
|---|---|---|---|---|---|---|---|---|---|---|---|
| 5階 | 2LDK | 63.44㎡ | … | … | … | … | 契約済み | 所在階*** 間取り2LDK |
面積63.44㎡ 管理費*** |
敷金*** 礼金*** |
契約済み |









