アゼリアテラスの賃貸情報
10/15アゼリアテラスの賃貸情報
10/15
アゼリアテラスの総合評価
総合評価
3
3
| セキュリティ | : |
築年数 | : |
| 建物設備 | : |
駅徒歩 | : |
| セキュリティ: | |
| 建物設備: | |
| 築年数: | |
| 駅徒歩: |
この物件について
| 物件名 | アゼリアテラス | ||
|---|---|---|---|
| 住所 | 東京都文京区白山2丁目24-7 | ||
| 最寄駅 |
都営三田線 白山駅 徒歩5分 都営三田線 春日駅 徒歩6分 都営大江戸線 春日駅 徒歩7分 |
||
| 学区 | 指ケ谷小学校 | ||
| 構造 | RC | 総階数 | 地上5階建て |
| 賃料 | 管理費 | ||
| 間取り | 面積 | ||
| 駐車場 | 築年月 | 1985年05月 | |
| 問合番号 | 789415 | 更新日 | 2022/10/15 |
| 設備 | 法人契約相談可、コンビニ近、指ケ谷小学校エリア、2階以上、南向き、日当たり良好、エアコン、フローリング、独立洗面台、バストイレ別、室内洗濯機置場、収納 | ||
| 備考 | 【アゼリアテラス】の賃貸マンション情報♪ 詳細閲覧ありがとうございます。最新の空室の確認、内覧のご予約はメール・電話にてお問い合わせください。 文京区の賃貸マンション・賃貸アパートはベステックスにおまかせください! | ||
物件概要
文京区白山2丁目のマンション【アゼリアテラス】の賃貸のご紹介です♪
◆1985年5月築、鉄筋コンクリート造5階建てのマンション
◆白山駅・春日駅ともにほど近いので、その日の気分でどちらの駅を使用するかの使い分けができます♪
☆周辺環境☆
【スーパー】クイーンズ伊勢丹小石川店(254m)、グルメシティ小石川店(364m)【コンビニ】STORE100文京白山1丁目店(259m)、ローソン小石川1丁目店(386m)、サンクス小石川店(432m)【ドラッグストア】薬ヒグチ小石川店(257m)、どらっぐぱぱす小石川1丁目店(361m)、くすりセイジョー白山店(457m)【小学校】文京区立指ケ谷小学校(120m)【病院】(財)慈愛病院(615m)【郵便局】文京白山下郵便局(137m)、小石川一郵便局(142m)【図書館】文京学院大学短期大学本郷図書館(608m)【銀行】三井住友銀行小石川支店(342m)、瀧野川信用金庫白山支店(342m)、北陸銀行白山支店(417m)【警察署】富坂警察署(710m)
是非ご覧ください♪
◆1985年5月築、鉄筋コンクリート造5階建てのマンション
◆白山駅・春日駅ともにほど近いので、その日の気分でどちらの駅を使用するかの使い分けができます♪
☆周辺環境☆
【スーパー】クイーンズ伊勢丹小石川店(254m)、グルメシティ小石川店(364m)【コンビニ】STORE100文京白山1丁目店(259m)、ローソン小石川1丁目店(386m)、サンクス小石川店(432m)【ドラッグストア】薬ヒグチ小石川店(257m)、どらっぐぱぱす小石川1丁目店(361m)、くすりセイジョー白山店(457m)【小学校】文京区立指ケ谷小学校(120m)【病院】(財)慈愛病院(615m)【郵便局】文京白山下郵便局(137m)、小石川一郵便局(142m)【図書館】文京学院大学短期大学本郷図書館(608m)【銀行】三井住友銀行小石川支店(342m)、瀧野川信用金庫白山支店(342m)、北陸銀行白山支店(417m)【警察署】富坂警察署(710m)
是非ご覧ください♪
掲載情報について
※随時更新を心がけておりますが、掲載している物件が万が一成約している場合もございますので予めご了承下さいませ。
※駐車場・駐輪場・バイク置場の空き状況についてはお問い合わせ下さい。
※ペット飼育やSOHO利用・楽器使用の可否に関しては、建物の管理規約で可能になっていても、お部屋の所有者様によって禁止の場合もございますので御注意下さい。
詳細はメールやお電話にてスタッフまでご相談下さい。
※駐車場・駐輪場・バイク置場の空き状況についてはお問い合わせ下さい。
※ペット飼育やSOHO利用・楽器使用の可否に関しては、建物の管理規約で可能になっていても、お部屋の所有者様によって禁止の場合もございますので御注意下さい。
詳細はメールやお電話にてスタッフまでご相談下さい。
アゼリアテラスの周辺地図
アゼリアテラスのご成約済み部屋一覧
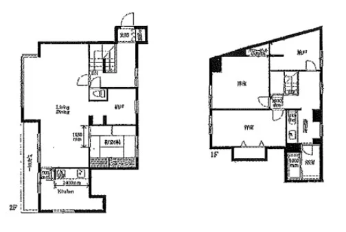
| 所在階 | 間取り | 面積 | 賃料 | 管理費 | 敷金 | 礼金 | お問い合わせ | ||||
|---|---|---|---|---|---|---|---|---|---|---|---|
| 1階 | 3SLDK | 139.90㎡ | … | … | … | … | 契約済み | 所在階*** 間取り3SLDK |
面積139.90㎡ 管理費*** |
敷金*** 礼金*** |
契約済み |
| 2階 | 1LDK | 43.04㎡ | … | … | … | … | 契約済み | 所在階*** 間取り1LDK |
面積43.04㎡ 管理費*** |
敷金*** 礼金*** |
契約済み |











