ニューハイムの賃貸情報
08/14ニューハイムの賃貸情報
08/14
ニューハイムの総合評価
総合評価
3
3
| セキュリティ | : |
築年数 | : |
| 建物設備 | : |
駅徒歩 | : |
| セキュリティ: | |
| 建物設備: | |
| 築年数: | |
| 駅徒歩: |
この物件について
| 物件名 | ニューハイム | ||
|---|---|---|---|
| 住所 | 東京都文京区本駒込3-10-10 | ||
| 最寄駅 |
東京メトロ南北線 本駒込駅 徒歩8分 都営三田線 白山駅 徒歩13分 東京メトロ千代田線 千駄木駅 徒歩15分 |
||
| 学区 | |||
| 構造 | 鉄骨 | 総階数 | 地上3階建て |
| 賃料 | 78,000円 | 管理費 | 0円 |
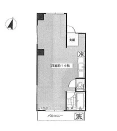
| 間取り | 1R | 面積 | 28.00㎡ |
| 駐車場 | 築年月 | 1975年月 | |
| 問合番号 | 6532300 | 更新日 | 2016/08/14 |
| 設備 | エアコン、フローリング、ウォシュレット、バストイレ別、洗濯機置場あり、礼金1以下、2人入居可、法人契約相談可 | ||
| 備考 | 【ニューハイム】の賃貸マンション情報♪ 詳細閲覧ありがとうございます。最新の空室の確認、内覧のご予約はメール・電話にてお問い合わせください。 文京区の賃貸マンション・賃貸アパートはベステックスにおまかせください! | ||
物件概要
文京区本駒込3丁目に佇む賃貸マンション【ニューハイム】のご紹介です♪
☆2012年全面改修済の大変綺麗な物件です♪
☆閑静な住宅街に立地の物件なので、静かな環境でのお暮しが可能です♪
☆複数路線利用可能な好立地で、通勤・通学に大変便利です♪
☆室内設備も新設で、これから始まる新生活をサポートします♪
☆是非一度、ご内覧下さい♪
【最寄駅】
東京メトロ南北線【本駒込】駅・徒歩8分,都営三田線【白山】駅・徒歩13分,東京メトロ千代田線【千駄木】駅・徒歩15分
☆周辺環境☆
【ショッピングセンター】文京グリーンコート・徒歩10分【スーパー】肉のハナマサ動坂店・徒歩6分【コンビニ】セブンイレブン文京動坂上店・徒歩1分【ドラッグストア】ユニバーサルドラッグ動坂店・徒歩6分【病院】がん・感染症センター都立駒込病院・徒歩2分【郵便局】本駒込郵便局・徒歩4分【銀行】みずほ銀行動坂支店・徒歩6分【警察署】駒込警察署・徒歩9分
☆2012年全面改修済の大変綺麗な物件です♪
☆閑静な住宅街に立地の物件なので、静かな環境でのお暮しが可能です♪
☆複数路線利用可能な好立地で、通勤・通学に大変便利です♪
☆室内設備も新設で、これから始まる新生活をサポートします♪
☆是非一度、ご内覧下さい♪
【最寄駅】
東京メトロ南北線【本駒込】駅・徒歩8分,都営三田線【白山】駅・徒歩13分,東京メトロ千代田線【千駄木】駅・徒歩15分
☆周辺環境☆
【ショッピングセンター】文京グリーンコート・徒歩10分【スーパー】肉のハナマサ動坂店・徒歩6分【コンビニ】セブンイレブン文京動坂上店・徒歩1分【ドラッグストア】ユニバーサルドラッグ動坂店・徒歩6分【病院】がん・感染症センター都立駒込病院・徒歩2分【郵便局】本駒込郵便局・徒歩4分【銀行】みずほ銀行動坂支店・徒歩6分【警察署】駒込警察署・徒歩9分
掲載情報について
※随時更新を心がけておりますが、掲載している物件が万が一成約している場合もございますので予めご了承下さいませ。
※駐車場・駐輪場・バイク置場の空き状況についてはお問い合わせ下さい。
※ペット飼育やSOHO利用・楽器使用の可否に関しては、建物の管理規約で可能になっていても、お部屋の所有者様によって禁止の場合もございますので御注意下さい。
詳細はメールやお電話にてスタッフまでご相談下さい。
※駐車場・駐輪場・バイク置場の空き状況についてはお問い合わせ下さい。
※ペット飼育やSOHO利用・楽器使用の可否に関しては、建物の管理規約で可能になっていても、お部屋の所有者様によって禁止の場合もございますので御注意下さい。
詳細はメールやお電話にてスタッフまでご相談下さい。
ニューハイムの周辺地図
ニューハイムのご成約済み部屋一覧
| 所在階 | 間取り | 面積 | 賃料 | 管理費 | 敷金 | 礼金 | お問い合わせ | ||||
|---|---|---|---|---|---|---|---|---|---|---|---|
| 3階 | 1R | 28.00㎡ | … | … | … | … | 契約済み | 所在階*** 間取り1R |
面積28.00㎡ 管理費*** |
敷金*** 礼金*** |
契約済み |












