ポワールヒロの賃貸情報
05/25ポワールヒロの賃貸情報
05/25
ポワールヒロの総合評価
総合評価
3
3
| セキュリティ | : |
築年数 | : |
| 建物設備 | : |
駅徒歩 | : |
| セキュリティ: | |
| 建物設備: | |
| 築年数: | |
| 駅徒歩: |
この物件について
| 物件名 | ポワールヒロ | ||
|---|---|---|---|
| 住所 | 東京都文京区千駄木5-27-11 | ||
| 最寄駅 |
東京メトロ千代田線 千駄木駅 徒歩7分 東京メトロ南北線 本駒込駅 徒歩11分 JR山手線 西日暮里駅 徒歩13分 |
||
| 学区 | |||
| 構造 | 軽量鉄骨 | 総階数 | 地上2階建て |
| 賃料 | 管理費 | ||
| 間取り | 面積 | ||
| 駐車場 | 築年月 | 年月 | |
| 問合番号 | 652231 | 更新日 | 2024/05/25 |
| 設備 | 法人契約相談可、東京大学自転車圏、日当たり良好、エアコン、室内洗濯機置場、収納 | ||
| 備考 | 【ポワールヒロ】の賃貸マンション情報♪ 詳細閲覧ありがとうございます。最新の空室の確認、内覧のご予約はメール・電話にてお問い合わせください。 文京区の賃貸マンション・賃貸アパートはベステックスにおまかせください! | ||
物件概要
文京区千駄木5丁目に佇む賃貸マンション【ポワールヒロ】のご紹介です♪
☆閑静な住宅街に立地なので、静かな環境でのお暮しが可能です♪
☆24時間緊急対応物件なので、建物によるトラブルにも安心です♪
☆大人気の谷根千エリアの物件です♪
☆複数路線利用可能な好立地で、通勤・通学に大変便利です♪
☆是非一度、ご内覧下さい♪
【最寄駅】
東京メトロ千代田線【千駄木】駅・徒歩7分,東京メトロ南北線【本駒込】駅・徒歩11分,JR山手線【西日暮里】駅・徒歩13分
上記の駅が徒歩圏内で、山手線のご利用も可能です。
☆周辺環境☆
【スーパー】サミットストア千駄木店・徒歩5分【コンビニ】セブンイレブン文京千駄木1丁目店・徒歩4分【ドラッグストア】クスリの一本堂千駄木店・徒歩5分【病院】がん・感染症センター都立駒込病院・徒歩5分【郵便局】文京千駄木三郵便局・徒歩5分【銀行】三菱東京UFJ銀行千駄木支店・徒歩5分
上記の駅が徒歩圏内で、スーパーやコンビニ以外にも病院や郵便局等も丁度いい距離に御座います。
お気軽にお問い合わせください。
☆閑静な住宅街に立地なので、静かな環境でのお暮しが可能です♪
☆24時間緊急対応物件なので、建物によるトラブルにも安心です♪
☆大人気の谷根千エリアの物件です♪
☆複数路線利用可能な好立地で、通勤・通学に大変便利です♪
☆是非一度、ご内覧下さい♪
【最寄駅】
東京メトロ千代田線【千駄木】駅・徒歩7分,東京メトロ南北線【本駒込】駅・徒歩11分,JR山手線【西日暮里】駅・徒歩13分
上記の駅が徒歩圏内で、山手線のご利用も可能です。
☆周辺環境☆
【スーパー】サミットストア千駄木店・徒歩5分【コンビニ】セブンイレブン文京千駄木1丁目店・徒歩4分【ドラッグストア】クスリの一本堂千駄木店・徒歩5分【病院】がん・感染症センター都立駒込病院・徒歩5分【郵便局】文京千駄木三郵便局・徒歩5分【銀行】三菱東京UFJ銀行千駄木支店・徒歩5分
上記の駅が徒歩圏内で、スーパーやコンビニ以外にも病院や郵便局等も丁度いい距離に御座います。
お気軽にお問い合わせください。
掲載情報について
※随時更新を心がけておりますが、掲載している物件が万が一成約している場合もございますので予めご了承下さいませ。
※駐車場・駐輪場・バイク置場の空き状況についてはお問い合わせ下さい。
※ペット飼育やSOHO利用・楽器使用の可否に関しては、建物の管理規約で可能になっていても、お部屋の所有者様によって禁止の場合もございますので御注意下さい。
詳細はメールやお電話にてスタッフまでご相談下さい。
※駐車場・駐輪場・バイク置場の空き状況についてはお問い合わせ下さい。
※ペット飼育やSOHO利用・楽器使用の可否に関しては、建物の管理規約で可能になっていても、お部屋の所有者様によって禁止の場合もございますので御注意下さい。
詳細はメールやお電話にてスタッフまでご相談下さい。
ポワールヒロの周辺地図
ポワールヒロのご成約済み部屋一覧
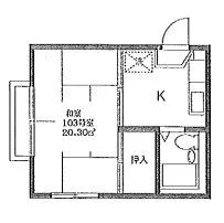
| 所在階 | 間取り | 面積 | 賃料 | 管理費 | 敷金 | 礼金 | お問い合わせ | ||||
|---|---|---|---|---|---|---|---|---|---|---|---|
| 1階 | 1K | 20.30㎡ | … | … | … | … | 契約済み | 所在階*** 間取り1K |
面積20.30㎡ 管理費*** |
敷金*** 礼金*** |
契約済み |
| 2階 | 1K | 19.41㎡ | … | … | … | … | 契約済み | 所在階*** 間取り1K |
面積19.41㎡ 管理費*** |
敷金*** 礼金*** |
契約済み |





