高関ビルの賃貸情報
12/07高関ビルの賃貸情報
12/07
高関ビルの総合評価
総合評価
3
3
| セキュリティ | : |
築年数 | : |
| 建物設備 | : |
駅徒歩 | : |
| セキュリティ: | |
| 建物設備: | |
| 築年数: | |
| 駅徒歩: |
この物件について
| 物件名 | 高関ビル | ||
|---|---|---|---|
| 住所 | 東京都文京区湯島1-12-6 | ||
| 最寄駅 |
東京メトロ丸ノ内線 御茶ノ水駅 徒歩8分 東京メトロ銀座線 末広町駅 徒歩6分 東京メトロ千代田線 湯島駅 徒歩9分 |
||
| 学区 | |||
| 構造 | SRC | 総階数 | 地上8階建て |
| 賃料 | 管理費 | ||
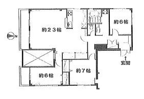
| 間取り | 面積 | ||
| 駐車場 | 築年月 | 年月 | |
| 問合番号 | 54128755 | 更新日 | 2014/12/07 |
| 設備 | TVモニター付インターホン、エレベーター、リノベーション、眺望良好、南向き、日当たり良好、カウンターキッチン、コンロ二口以上、フローリング、独立洗面台、追い焚き機能、バストイレ別、室内洗濯機置場、収納、2人入居可、法人契約相談可 | ||
| 備考 | 【高関ビル】の賃貸マンション情報♪ 詳細閲覧ありがとうございます。最新の空室の確認、内覧のご予約はメール・電話にてお問い合わせください。 文京区の賃貸マンション・賃貸アパートはベステックスにおまかせください! | ||
物件概要
文京区湯島1丁目に佇む賃貸マンション【高関ビル】の賃貸のご紹介です♪
☆フルリフォームの物件で水回り全て新品で大変綺麗ですよ♪
☆鉄骨鉄筋コンクリート造8階建てマンションです♪
☆複数路線利用可能な好立地で、通勤・通学に大変便利です♪
☆室内設備も充実の内容で、ご満足頂けます♪
☆是非一度、ご内覧下さい♪
【最寄駅】
東京メトロ丸ノ内線【御茶ノ水】駅・徒歩8分,東京メトロ銀座線【末広町】駅・徒歩6分,東京メトロ千代田線【湯島】駅・徒歩9分
☆周辺環境☆
【ショッピングセンター】エフワン末広町店・徒歩8分【スーパー】大丸ピーコック神田妻恋坂店・徒歩2分【コンビニ】ファミリーマート清水坂下店・徒歩1分【ドラッグストア】澤田宝仙堂・徒歩5分【ホームセンター】マルツパーツ館秋葉原店・徒歩5分【病院】(株)日立製作所小平記念東京日立病院・徒歩2分【郵便局】湯島二郵便局・徒歩4分【銀行】朝日信用金庫湯島支店・徒歩2分【公園】お茶の水公園・徒歩3分
☆フルリフォームの物件で水回り全て新品で大変綺麗ですよ♪
☆鉄骨鉄筋コンクリート造8階建てマンションです♪
☆複数路線利用可能な好立地で、通勤・通学に大変便利です♪
☆室内設備も充実の内容で、ご満足頂けます♪
☆是非一度、ご内覧下さい♪
【最寄駅】
東京メトロ丸ノ内線【御茶ノ水】駅・徒歩8分,東京メトロ銀座線【末広町】駅・徒歩6分,東京メトロ千代田線【湯島】駅・徒歩9分
☆周辺環境☆
【ショッピングセンター】エフワン末広町店・徒歩8分【スーパー】大丸ピーコック神田妻恋坂店・徒歩2分【コンビニ】ファミリーマート清水坂下店・徒歩1分【ドラッグストア】澤田宝仙堂・徒歩5分【ホームセンター】マルツパーツ館秋葉原店・徒歩5分【病院】(株)日立製作所小平記念東京日立病院・徒歩2分【郵便局】湯島二郵便局・徒歩4分【銀行】朝日信用金庫湯島支店・徒歩2分【公園】お茶の水公園・徒歩3分
掲載情報について
※随時更新を心がけておりますが、掲載している物件が万が一成約している場合もございますので予めご了承下さいませ。
※駐車場・駐輪場・バイク置場の空き状況についてはお問い合わせ下さい。
※ペット飼育やSOHO利用・楽器使用の可否に関しては、建物の管理規約で可能になっていても、お部屋の所有者様によって禁止の場合もございますので御注意下さい。
詳細はメールやお電話にてスタッフまでご相談下さい。
※駐車場・駐輪場・バイク置場の空き状況についてはお問い合わせ下さい。
※ペット飼育やSOHO利用・楽器使用の可否に関しては、建物の管理規約で可能になっていても、お部屋の所有者様によって禁止の場合もございますので御注意下さい。
詳細はメールやお電話にてスタッフまでご相談下さい。
高関ビルの周辺地図
高関ビルのご成約済み部屋一覧
| 所在階 | 間取り | 面積 | 賃料 | 管理費 | 敷金 | 礼金 | お問い合わせ | ||||
|---|---|---|---|---|---|---|---|---|---|---|---|
| 8階 | 3LDK | 108.14㎡ | … | … | … | … | 契約済み | 所在階*** 間取り3LDK |
面積108.14㎡ 管理費*** |
敷金*** 礼金*** |
契約済み |
