余郷邸の賃貸情報
04/11余郷邸の賃貸情報
04/11
余郷邸の総合評価
総合評価
3
3
| セキュリティ | : |
築年数 | : |
| 建物設備 | : |
駅徒歩 | : |
| セキュリティ: | |
| 建物設備: | |
| 築年数: | |
| 駅徒歩: |
この物件について
| 物件名 | 余郷邸 | ||
|---|---|---|---|
| 住所 | 文京区小石川2-12-1 | ||
| 最寄駅 |
東京メトロ丸ノ内線 後楽園駅 徒歩7分 都営三田線 春日駅 徒歩7分 東京メトロ東西線 飯田橋駅 徒歩15分 |
||
| 学区 | 礫川小学校 | ||
| 構造 | 木造 | 総階数 | 地上3階建て |
| 賃料 | 118,000円 | 管理費 | 3,000円 |
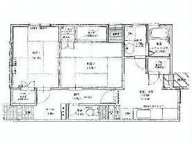
| 間取り | 2DK | 面積 | 50.09㎡ |
| 駐車場 | なし | 築年月 | 1994年07月 |
| 問合番号 | 78965 | 更新日 | 2016/04/11 |
| 設備 | 駐輪場有、コンビニ近、インターネット対応、礫川小学校エリア、エアコン、フローリング、バストイレ別、室内洗濯機置場、収納、礼金1以下、法人契約相談可 | ||
| 備考 | 【余郷邸】の賃貸マンション情報です。【株式会社ベステックス】詳細閲覧ありがとうございます。※住戸により、契約内容等が異なる場合、現況優先となります。 | ||
物件概要
【余郷邸】の賃貸マンション情報です。小石川2丁目の閑静な住宅街に位置し、住環境良好な建物です。エアコンなど設備あり。■「後楽園」駅徒歩7分:東京メトロ丸ノ内線■「春日」駅徒歩7分:都営三田線■「飯田橋」駅徒歩15分:東京メトロ東西線など複数路線利用可能で交通至便。周辺環境:ショッピングセンター【メトロ・エム後楽園494m】【紳士服コナカ文京白山店562m】スーパー【グルメシティ小石川店381m】【TESCO春日店382m】コンビニ【ローソン文京春日一丁目店91m】【ファミリーマート伝通院前店132m】ドラッグストア【スギ薬局小石川店376m】【どらっぐぱぱす小石川1丁目店431m】郵便局【文京春日郵便局468m】【小石川一郵便局552m】役所【文京区役所478m】警察署【富坂警察署56m】公園【礫川公園409m】是非ご内覧ください。
掲載情報について
※随時更新を心がけておりますが、掲載している物件が万が一成約している場合もございますので予めご了承下さいませ。
※駐車場・駐輪場・バイク置場の空き状況についてはお問い合わせ下さい。
※ペット飼育やSOHO利用・楽器使用の可否に関しては、建物の管理規約で可能になっていても、お部屋の所有者様によって禁止の場合もございますので御注意下さい。
詳細はメールやお電話にてスタッフまでご相談下さい。
※駐車場・駐輪場・バイク置場の空き状況についてはお問い合わせ下さい。
※ペット飼育やSOHO利用・楽器使用の可否に関しては、建物の管理規約で可能になっていても、お部屋の所有者様によって禁止の場合もございますので御注意下さい。
詳細はメールやお電話にてスタッフまでご相談下さい。
余郷邸の周辺地図
余郷邸のご成約済み部屋一覧
| 所在階 | 間取り | 面積 | 賃料 | 管理費 | 敷金 | 礼金 | お問い合わせ | ||||
|---|---|---|---|---|---|---|---|---|---|---|---|
| 1階 | 2DK | 50.09㎡ | … | … | … | … | 契約済み | 所在階*** 間取り2DK |
面積50.09㎡ 管理費*** |
敷金*** 礼金*** |
契約済み |
