キーワード検索

文京目白台ハイツの賃貸情報

   09/30

文京目白台ハイツの賃貸情報


  09/30
1/10

スタッフのコメント

スタッフ画像 宮城侑佑
【文京目白台ハイツ】は目白台エリアにございますマンションです。 複数路線利用可能な好立地◎ 東京方面はもちろん、渋谷・新宿・池袋等ターミナル駅へのアクセスも良好です! 物件周辺にはスーパーや、飲食店等ございますし、生活がしやすい環境です!治安がかなり良いエリアですので、一人暮らしの方はもちろん、ファミリーの方にもオススメです♪大通り沿いですが、交通量がすごく多いう道路ではないのでご安心ください!エントランスや共用部分はレトロで重厚感を感じる素敵なマンションです♪

LINEでお問い合わせはこちら
LINE問合せ
文京目白台ハイツの総合評価
総合評価
3
セキュリティ ☆☆☆☆☆   築年数 ☆☆☆☆☆  
建物設備 ☆☆☆☆☆   駅徒歩 ☆☆☆☆☆  
セキュリティ:    ☆☆☆☆☆
建物設備: ☆☆☆☆☆
築年数: ☆☆☆☆☆
駅徒歩: ☆☆☆☆☆

この物件について

物件名文京目白台ハイツ
住所東京都文京区目白台2-9-18
最寄駅 東京メトロ副都心線 雑司が谷駅 徒歩7分
東京メトロ有楽町線 護国寺駅 徒歩9分
都営都電荒川線 鬼子母神前駅 徒歩10分
学区
構造RC 総階数地上8階建て 
賃料 管理費
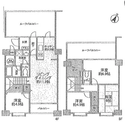
間取り 面積
駐車場なし 築年月1982年09月
問合番号132154 更新日2022/09/30
設備法人契約相談可、駐輪場有、コンビニ近、BS・CS、光ファイバー、インターネット対応、防犯カメラ、エレベーター、ガスコンロ設置可、ガスキッチン、エアコン、フローリング
備考詳細閲覧ありがとうございます。最新の空室の確認、内覧のご予約はメール・電話にてお問い合わせください。 文京区の賃貸マンション・賃貸アパートはベステックスにおまかせください! 

物件概要

文京区目白台2丁目の静かな住宅街に佇む【文京目白台ハイツ】の分譲賃貸のご紹介です。

1982年9月竣工!鉄筋コンクリート造8階建ての建物でございます。
単身向けの1DKタイプから、ファミリー向けの4LDKまで幅広くご用意しております!


~交通アクセス~

副都心線 『雑司が谷』駅   徒歩7分
有楽町線 『護国寺』駅    徒歩9分
都電荒川線『鬼子母神前』駅  徒歩10分

最寄り駅徒歩7分の好立地!
3路線徒歩10分圏内で都心部へのアクセスも良好の物件でございます!
有楽町線では東京方面に、副都心線打破、渋谷・新宿・池袋方面に簡単にアクセスできます◎
通勤、通学へ大変便利な路線がご利用いただけます。

~周辺環境~
スーパー「ミニコープ目白台店」「まいばすけっと目白台3丁目店 」「グルメシティ高田店」など複数のスーパーが利用可能♪
お買い物には困らない環境が整っております◎
お引越しの際には確認必須項目である【ファミリーマート】【セブンイレブン】などのコンビニ環境も充実しております!
さらに少し足を延ばせば、サンシャインもございますので、休日に気軽に買い物に行く事ができます♪
飲食店や、ドラックストアも近くにあり、かなり生活しやすい環境です!

クリーニング屋さんやコインランドリーも御座いますので衣替えの時期や洗濯物が乾いていない!なんて言ったトラブル時でも安心です♪

郵便局も御座います♪
郵送だけでなく各種お手続も行えます!
金融機関や歯医者さん、病院など近くにあると嬉しい施設が揃っております!

護国寺は緑が豊かな施設になっているので、都心にいながら緑を感じることの出来る周辺環境になっています♪
本殿は大迫力のお寺で文京区内でもトップクラスの広さが御座います。休日などには多くの参拝客の方が訪れる地となり、パワースポットとしても大変人気があります!


~不動産のプロから一言~

複数路線利用可能で、ターミナル駅までのアクセスも抜群!
周辺にはスーパーや飲食店等も揃っており、かなり生活しやすいエリアです!

賃貸マンション【文京目白台ハイツ】
ぜひ一度お問合せくださいませ!!
LINEでお問い合わせはこちら
LINE問合せ

掲載情報について

※随時更新を心がけておりますが、掲載している物件が万が一成約している場合もございますので予めご了承下さいませ。
※駐車場・駐輪場・バイク置場の空き状況についてはお問い合わせ下さい。
※ペット飼育やSOHO利用・楽器使用の可否に関しては、建物の管理規約で可能になっていても、お部屋の所有者様によって禁止の場合もございますので御注意下さい。
詳細はメールやお電話にてスタッフまでご相談下さい。

文京目白台ハイツの周辺地図

文京目白台ハイツのご成約済み部屋一覧

所在階 間取り 面積 賃料 管理費 敷金 礼金 お問い合わせ
2階 3LDK 72.49㎡ 契約済み 所在階***
間取り3LDK
面積72.49㎡
管理費***
敷金***
礼金***
契約済み
3階 2SLDK 65.49㎡ 契約済み 所在階***
間取り2SLDK
面積65.49㎡
管理費***
敷金***
礼金***
契約済み
4階 4LDK 90.83㎡ 契約済み 所在階***
間取り4LDK
面積90.83㎡
管理費***
敷金***
礼金***
契約済み
4階 1SLDK 57.40㎡ 契約済み 所在階***
間取り1SLDK
面積57.40㎡
管理費***
敷金***
礼金***
契約済み
5階 1SLDK 62.17㎡ 契約済み 所在階***
間取り1SLDK
面積62.17㎡
管理費***
敷金***
礼金***
契約済み
その他(全5件)を全て表示する

似た条件の物件

最近見た物件