ユートピアチェリーの賃貸情報
10/04ユートピアチェリーの賃貸情報
10/04
ユートピアチェリーの総合評価
総合評価
3
3
| セキュリティ | : |
築年数 | : |
| 建物設備 | : |
駅徒歩 | : |
| セキュリティ: | |
| 建物設備: | |
| 築年数: | |
| 駅徒歩: |
この物件について
| 物件名 | ユートピアチェリー | ||
|---|---|---|---|
| 住所 | 東京都文京区小石川4-15-9 | ||
| 最寄駅 |
東京メトロ丸ノ内線 茗荷谷駅 徒歩9分 都営三田線 白山駅 徒歩12分 東京メトロ有楽町線 江戸川橋駅 徒歩18分 |
||
| 学区 | 柳町小学校 | ||
| 構造 | RC | 総階数 | 地上8階建て |
| 賃料 | 管理費 | ||
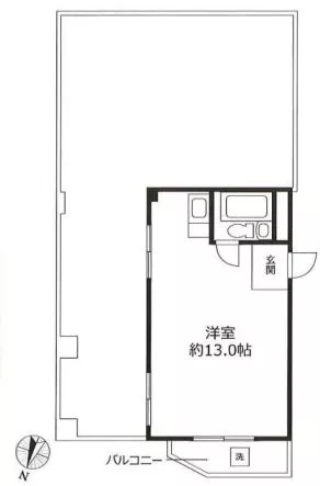
| 間取り | 面積 | ||
| 駐車場 | 無 | 築年月 | 1985年05月 |
| 問合番号 | 10201 | 更新日 | 2022/10/04 |
| 設備 | 法人契約相談可、光ファイバー、インターネット対応、東京大学自転車圏、エレベーター、柳町小学校エリア、エアコン、収納 | ||
| 備考 | 【ユートピアチェリー】の賃貸マンション情報! 詳細閲覧ありがとうございます。最新の空室の確認、内覧のご予約はメール・電話にてお問い合わせください。 文京区の賃貸マンション・賃貸アパートはベステックスにおまかせください! | ||
物件概要
文京区小石川の賃貸マンション【ユートピアチェリー】のご紹介です!
1985年築、鉄筋コンクリート造の8階建て。
遮音性と耐震性に優れ、住む方に安心感と高級感を与えてくれます♪
交通便は、東京メトロ丸ノ内線「茗荷谷駅」から徒歩10分、都営三田線「白山駅」など、複数路線が徒歩圏内に御座います。通勤や通学だけでなく、お出かけの際にもとても便利な好立地です。
また、「播磨坂桜並木」に面した物件で、こちらは春になると満開の桜が楽しめる名所でもあります。
緑が多く、散歩も楽しめる周辺環境です♪
共有部には、エレベーターやインターネット環境(光ファイバー)など便利で人気の設備が充実しております。
茗荷谷駅の周辺には24時間営業のスーパー「マルエツプチ」やレストラン「ジョナサン」「ガスト」などお買い物やお食事に便利な施設が多数ございます。
また、【ユートピアチェリー】から徒歩5分ほどの所にもスーパー「三徳」がありますので大変便利です。
そのほかにも、「小石川図書館」や「区営竹早テニスコート」など余暇を過ごすのにも適した施設もございます。
ぜひご覧下さいませ。
1985年築、鉄筋コンクリート造の8階建て。
遮音性と耐震性に優れ、住む方に安心感と高級感を与えてくれます♪
交通便は、東京メトロ丸ノ内線「茗荷谷駅」から徒歩10分、都営三田線「白山駅」など、複数路線が徒歩圏内に御座います。通勤や通学だけでなく、お出かけの際にもとても便利な好立地です。
また、「播磨坂桜並木」に面した物件で、こちらは春になると満開の桜が楽しめる名所でもあります。
緑が多く、散歩も楽しめる周辺環境です♪
共有部には、エレベーターやインターネット環境(光ファイバー)など便利で人気の設備が充実しております。
茗荷谷駅の周辺には24時間営業のスーパー「マルエツプチ」やレストラン「ジョナサン」「ガスト」などお買い物やお食事に便利な施設が多数ございます。
また、【ユートピアチェリー】から徒歩5分ほどの所にもスーパー「三徳」がありますので大変便利です。
そのほかにも、「小石川図書館」や「区営竹早テニスコート」など余暇を過ごすのにも適した施設もございます。
ぜひご覧下さいませ。
掲載情報について
※随時更新を心がけておりますが、掲載している物件が万が一成約している場合もございますので予めご了承下さいませ。
※駐車場・駐輪場・バイク置場の空き状況についてはお問い合わせ下さい。
※ペット飼育やSOHO利用・楽器使用の可否に関しては、建物の管理規約で可能になっていても、お部屋の所有者様によって禁止の場合もございますので御注意下さい。
詳細はメールやお電話にてスタッフまでご相談下さい。
※駐車場・駐輪場・バイク置場の空き状況についてはお問い合わせ下さい。
※ペット飼育やSOHO利用・楽器使用の可否に関しては、建物の管理規約で可能になっていても、お部屋の所有者様によって禁止の場合もございますので御注意下さい。
詳細はメールやお電話にてスタッフまでご相談下さい。
ユートピアチェリーの周辺地図
ユートピアチェリーのご成約済み部屋一覧
| 所在階 | 間取り | 面積 | 賃料 | 管理費 | 敷金 | 礼金 | お問い合わせ | ||||
|---|---|---|---|---|---|---|---|---|---|---|---|
| 2階 | 2DK | 47.50㎡ | … | … | … | … | 契約済み | 所在階*** 間取り2DK |
面積47.50㎡ 管理費*** |
敷金*** 礼金*** |
契約済み |
| 3階 | 1R | 20.30㎡ | … | … | … | … | 契約済み | 所在階*** 間取り1R |
面積20.30㎡ 管理費*** |
敷金*** 礼金*** |
契約済み |
| 4階 | 1R | 19.83㎡ | … | … | … | … | 契約済み | 所在階*** 間取り1R |
面積19.83㎡ 管理費*** |
敷金*** 礼金*** |
契約済み |
| 4階 | 1R | 25.92㎡ | … | … | … | … | 契約済み | 所在階*** 間取り1R |
面積25.92㎡ 管理費*** |
敷金*** 礼金*** |
契約済み |
| 6階 | 2DK | 47.50㎡ | … | … | … | … | 契約済み | 所在階*** 間取り2DK |
面積47.50㎡ 管理費*** |
敷金*** 礼金*** |
契約済み |
_id5009.webp)
_id5009.webp)
_id5009.webp)
_id5009.webp)
_id5009.webp)
_id5009.webp)
_id5009.webp)
_id5009.webp)
_id5009.webp)
_id5009.webp)