アール・ブリュット白山の賃貸情報
09/19アール・ブリュット白山の賃貸情報
09/19
アール・ブリュット白山の総合評価
総合評価
3.5
3.5
| セキュリティ | : |
築年数 | : |
| 建物設備 | : |
駅徒歩 | : |
| セキュリティ: | |
| 建物設備: | |
| 築年数: | |
| 駅徒歩: |
この物件について
| 物件名 | アール・ブリュット白山 | ||
|---|---|---|---|
| 住所 | 東京都文京区白山1-19-6 | ||
| 最寄駅 |
都営三田線 白山駅 徒歩6分 東京メトロ南北線 東大前駅 徒歩11分 都営大江戸線 春日駅 徒歩11分 |
||
| 学区 | |||
| 構造 | RC | 総階数 | 地上7階建て |
| 賃料 | 管理費 | ||
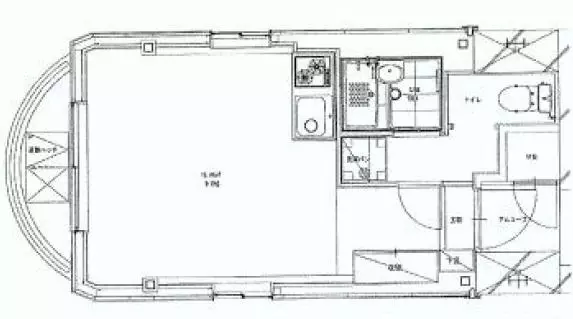
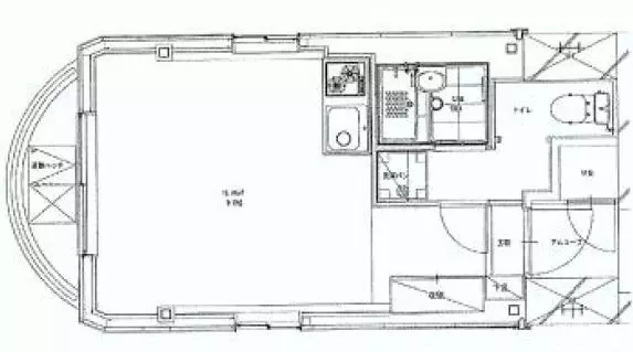
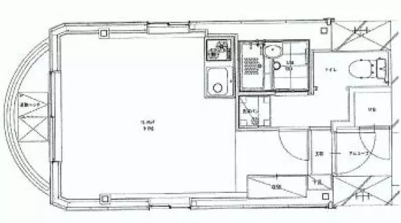
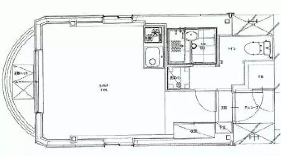
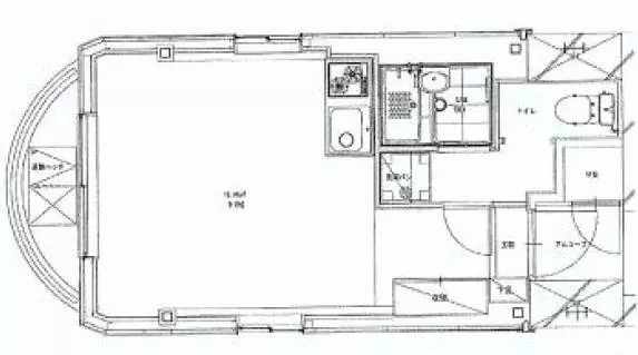
| 間取り | 面積 | ||
| 駐車場 | 無 | 築年月 | 2011年09月 |
| 問合番号 | 235 | 更新日 | 2025/09/19 |
| 設備 | オートロック、法人契約相談可、コンビニ近、BS・CS、CATV、光ファイバー、インターネット対応、TVモニター付インターホン、東京大学自転車圏、エレベーター、二面採光、コンロ二口以上、ガスキッチン、システムキッチン、エアコン、フローリング、バストイレ別、室内洗濯機置場、収納、角部屋、礼金1以下、保証会社利用 | ||
| 備考 | 詳細閲覧ありがとうございます。最新の空室の確認、内覧のご予約はメール・電話にてお問い合わせください。 文京区の賃貸マンション・賃貸アパートはベステックスにおまかせください! | ||
物件概要
文京区白山1丁目の【アール・ブリュット白山】のご紹介です!
2011年9月築の鉄筋コンクリート造地上7階建て賃貸マンション♪
1フロアに1部屋のみですので、全部屋が角部屋・複数面採光と開放感抜群の造りです!
◇交通アクセス
・都営三田線 白山駅 徒歩6分
・東京メトロ南北線 東大前駅 徒歩11分
・都営三田線 春日駅 徒歩11分
・都営大江戸線 春日駅 徒歩11分
・東京メトロ南北線 本駒込駅 徒歩13分
交通環境は、都営三田線「白山駅」徒歩6分、東京メトロ「東大前駅」「本駒込駅」、「春日駅」がご利用可能!
複数の駅・路線が徒歩圏内で、都心部へもアクセス良好なので通勤通学だけでなく、お出かけの際にもとても便利です♪
◇周辺環境
・まいばすけっと 白山1丁目店 徒歩2分
・文京白山下郵便局 徒歩2分
・キッチンオリジン 春日店 徒歩5分
・オリンピック 徒歩6分
・セブンイレブン 小石川白山通り店 徒歩6分
・スギ薬局 小石川1丁目店 徒歩6分
・クイーンズ伊勢丹 徒歩7分
・白山神社 徒歩9分
・コープ白山店 徒歩9分
・サントク 白山店 徒歩10分
・ダイエー小石川店 徒歩11分
物件から徒歩6分に位置する白山駅周辺には、
スーパーの【サントク】・【コープ】(23時迄営業)【ダイエー】(24時間営業)、ドラッグストア、コンビニ、
本屋、商店、その他飲食店など多数あり生活しやすい環境です♪
東京大学・東洋大学・京華学園などなど学生も多く賑わいのある町並みです♪
◇共用設備
・メールボックス
・エレベーター
・オートロック
・都市ガス
※バイク・自転車駐輪不可
お早めにお問い合わせ下さい!
2011年9月築の鉄筋コンクリート造地上7階建て賃貸マンション♪
1フロアに1部屋のみですので、全部屋が角部屋・複数面採光と開放感抜群の造りです!
◇交通アクセス
・都営三田線 白山駅 徒歩6分
・東京メトロ南北線 東大前駅 徒歩11分
・都営三田線 春日駅 徒歩11分
・都営大江戸線 春日駅 徒歩11分
・東京メトロ南北線 本駒込駅 徒歩13分
交通環境は、都営三田線「白山駅」徒歩6分、東京メトロ「東大前駅」「本駒込駅」、「春日駅」がご利用可能!
複数の駅・路線が徒歩圏内で、都心部へもアクセス良好なので通勤通学だけでなく、お出かけの際にもとても便利です♪
◇周辺環境
・まいばすけっと 白山1丁目店 徒歩2分
・文京白山下郵便局 徒歩2分
・キッチンオリジン 春日店 徒歩5分
・オリンピック 徒歩6分
・セブンイレブン 小石川白山通り店 徒歩6分
・スギ薬局 小石川1丁目店 徒歩6分
・クイーンズ伊勢丹 徒歩7分
・白山神社 徒歩9分
・コープ白山店 徒歩9分
・サントク 白山店 徒歩10分
・ダイエー小石川店 徒歩11分
物件から徒歩6分に位置する白山駅周辺には、
スーパーの【サントク】・【コープ】(23時迄営業)【ダイエー】(24時間営業)、ドラッグストア、コンビニ、
本屋、商店、その他飲食店など多数あり生活しやすい環境です♪
東京大学・東洋大学・京華学園などなど学生も多く賑わいのある町並みです♪
◇共用設備
・メールボックス
・エレベーター
・オートロック
・都市ガス
※バイク・自転車駐輪不可
お早めにお問い合わせ下さい!
掲載情報について
※随時更新を心がけておりますが、掲載している物件が万が一成約している場合もございますので予めご了承下さいませ。
※駐車場・駐輪場・バイク置場の空き状況についてはお問い合わせ下さい。
※ペット飼育やSOHO利用・楽器使用の可否に関しては、建物の管理規約で可能になっていても、お部屋の所有者様によって禁止の場合もございますので御注意下さい。
詳細はメールやお電話にてスタッフまでご相談下さい。
※駐車場・駐輪場・バイク置場の空き状況についてはお問い合わせ下さい。
※ペット飼育やSOHO利用・楽器使用の可否に関しては、建物の管理規約で可能になっていても、お部屋の所有者様によって禁止の場合もございますので御注意下さい。
詳細はメールやお電話にてスタッフまでご相談下さい。
アール・ブリュット白山の周辺地図
アール・ブリュット白山のご成約済み部屋一覧
| 所在階 | 間取り | 面積 | 賃料 | 管理費 | 敷金 | 礼金 | お問い合わせ | ||||
|---|---|---|---|---|---|---|---|---|---|---|---|
| 1階 | 1R | 22.23㎡ | … | … | … | … | 契約済み | 所在階*** 間取り1R |
面積22.23㎡ 管理費*** |
敷金*** 礼金*** |
契約済み |
| 2階 | 1R | 22.23㎡ | … | … | … | … | 契約済み | 所在階*** 間取り1R |
面積22.23㎡ 管理費*** |
敷金*** 礼金*** |
契約済み |
| 2階 | 1R | 22.23㎡ | … | … | … | … | 契約済み | 所在階*** 間取り1R |
面積22.23㎡ 管理費*** |
敷金*** 礼金*** |
契約済み |
| 3階 | 1R | 22.23㎡ | … | … | … | … | 契約済み | 所在階*** 間取り1R |
面積22.23㎡ 管理費*** |
敷金*** 礼金*** |
契約済み |
| 3階 | 1R | 22.23㎡ | … | … | … | … | 契約済み | 所在階*** 間取り1R |
面積22.23㎡ 管理費*** |
敷金*** 礼金*** |
契約済み |
| 4階 | 1R | 22.23㎡ | … | … | … | … | 契約済み | 所在階*** 間取り1R |
面積22.23㎡ 管理費*** |
敷金*** 礼金*** |
契約済み |
| 4階 | 1R | 22.23㎡ | … | … | … | … | 契約済み | 所在階*** 間取り1R |
面積22.23㎡ 管理費*** |
敷金*** 礼金*** |
契約済み |
| 4階 | 1R | 22.23㎡ | … | … | … | … | 契約済み | 所在階*** 間取り1R |
面積22.23㎡ 管理費*** |
敷金*** 礼金*** |
契約済み |
| 5階 | 1R | 22.23㎡ | … | … | … | … | 契約済み | 所在階*** 間取り1R |
面積22.23㎡ 管理費*** |
敷金*** 礼金*** |
契約済み |
| 5階 | 1R | 22.23㎡ | … | … | … | … | 契約済み | 所在階*** 間取り1R |
面積22.23㎡ 管理費*** |
敷金*** 礼金*** |
契約済み |
| 6階 | 1R | 22.23㎡ | … | … | … | … | 契約済み | 所在階*** 間取り1R |
面積22.23㎡ 管理費*** |
敷金*** 礼金*** |
契約済み |
| 6階 | 1R | 22.23㎡ | … | … | … | … | 契約済み | 所在階*** 間取り1R |
面積22.23㎡ 管理費*** |
敷金*** 礼金*** |
契約済み |
| 7階 | 1R | 22.23㎡ | … | … | … | … | 契約済み | 所在階*** 間取り1R |
面積22.23㎡ 管理費*** |
敷金*** 礼金*** |
契約済み |
| 7階 | 1R | 22.23㎡ | … | … | … | … | 契約済み | 所在階*** 間取り1R |
面積22.23㎡ 管理費*** |
敷金*** 礼金*** |
契約済み |




_id4971.webp)

















白山通り沿いのため夜遅く帰宅される方も大通り沿いのみで帰宅いただけます。
スーパーは白山駅に2軒(コープ、三徳)、物件近くにはまいばすけっとがございます。
白山駅は飲食店も豊富のため便利!
白山神社はあじさい祭りが有名でして毎年梅雨の6月ごろに行われております。
約3000株の多彩なあじさいが見どころ!!
本物件は人気設備<宅配ボックス>がございます。
日中在宅されていない方にもオススメ!
オートロックはございませんがモニター付きインターホン完備!
是非お問い合わせくださいませ。